Situació

Una vista de l’exterior de l’església des del costat sud-oest. Al mur de ponent hi és visible la porta d’entrada, sobre la qual hi ha una finestra cruciforme.
M. Anglada

La capella de Sant Bartomeu del Sitjar queda separada uns 100 m de la casa del Sitjar, situada a l’extrem sud-oriental de l’antic terme municipal de Freixenet de Camprodon, vora la collada del Sitjar, a 994 m d’altitud.
Mapa: 256M781. Situació: 31TDG501814.
Per anar-hi cal prendre una pista forestal en bon estat que surt del pont de les Rocasses o de can Bei, a menys d’l km abans d’entrar a la població de Camprodon, venint de Sant Joan de les Abadesses, i que arriba fins a Oix. El trajecte fins al Sitjar és de 5 km; cal desviar-se al trencall de mà dreta, 500 m abans d’arribar a la casa. Cal demanar la clau a la casa del Sitjar. (MAB)
Història
Pràcticament no hem pogut recollir cap notícia relativa a aquesta església.
La capella de Sant Bartomeu del Sitjar, construïda al segle XII, és situada al costat del mas del Sitjar, d’on pren el nom, que és documentat des del segle XIII. Havia pertangut en època medieval a una família de la petita noblesa, els Sitjar, emparentada amb els antics senyors de Creixenturri. (APF-MLIC)
Església

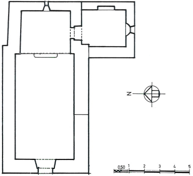
Planta, a escala 1:200, de l’església, petit edifici d’una nau, al qual fou afegida, a Ilevant, una sagristia.
M. Anglada
L’església és una construcció rural molt senzilla, de planta rectangular, amb una nau capçada a llevant per un absis quadrat, tots dos elements coberts amb volta de canó seguit.
El temple té una finestra absidal d’una sola esqueixada i una petita obertura cruciforme a la façana de ponent, indret on hi ha la porta adovellada, d’època posterior a l’església, amb dues fulles desiguals, ornades amb una bella ferramenta i forrellat.
A la façana de ponent hi ha un campanar de cadireta d’una sola arcada.
La capella presenta senyals evidents d’haver estat modificada i restaurada. A l’interior les voltes han estat enguixades i, en part, també les parets. Des de l’interior hom pot apreciar una junta al mur de migjorn.
L’aparell correspon a una maçoneria ordinària, amb carreus treballats a les cantonades, finestres i portes. Els carreuons han estat barrejats amb les pedres irregulars i tot plegat molt rejuntat amb morter de ciment, la qual cosa fa que el conjunt quedi, malgrat tot, molt ben conservat. (MAB)
Forja

Un detall de la porta d’entrada, decorada amb ferramenta, el model de la qual cal adscriure als exemplars típics de l’època.
M. Anglada
Ni que sigui breument, cal fer esment de la ferramenta que hi ha a la porta de l’església. Tal com podem veure avui, cal pensar que, si més no, alguns elements s’han perdut, puix que són molt pocs els que resten i encara alguns mutilats.
Es tracta de quatre peces constituïdes per una cinta estreta disposada horitzontalment, els extrems de la qual es cargolen vers l’interior i donen lloc a unes volutes oposades a cadascun dels extrems. Tant les mides com l’estat de conservació són desiguals, bé que tots ells responen a un mateix esquema compositiu, el qual segueix els mòduls usuals de l’època.
Lògicament, en època original tota la porta devia ésser coberta amb elements com aquests, destinats a l’ornament i al reforç de la fusta. Avui, però, són un simple testimoni, ple de rusticitat i senzillesa. (JVV)