Situació

Portada de ponent de l’església, amb dues arquivoltes suportades per columnes i capitells llisos.
ECSA-J.A. Adell

Petita església de nau única i absis que s’ha mantingut inalterada al llarg dels segles.
ECSA-J.A. Adell
L’església parroquial de Sant Pere es troba en un indret elevat a uns 100 m al NE del nucli de cases que formen el poble de Castellnou d’Ossó, situat al marge dret del Sió.
Mapa: 33-14 (360). Situació: 31TCG459263.
Per a arribar-hi cal seguir l’itinerari que s’ha indicat en la monografia precedent. (JNB)
Història
No s’han localitzat referències documentals d’aquesta església fins a la darreria del segle XIII. Consta que l’any 1279, en les relacions d’esglésies i parròquies que contribuïren a sufragar la dècima papal recaptada al bisbat d’Urgell, l’ecclesia de Castelnou, iuxta Acrimontem s’esmenta dins el deganat d’Urgell. En aquella ocasió el seu rector satisfeu la quantitat d’11 sous.
A la darreria del segle XIV, l’any 1391, el rector de la parròquia de Castellnou pagà 17 sous en la dècima col·lectada aquell any a la diòcesi urgellenca; d’aquest any es coneix el nom del rector, Joan Dianda, el qual compartia aquest càrrec amb l’església de Sant Miquel de Montfalcó d’Agramunt i gaudia d’un benefici a la parròquia de Santa Maria d’Agramunt.
Segons la visita canònica realitzada pel bisbe d’Urgell l’any 1515, l’església estava llavors en molt mal estat. Aleshores, el rector de la parròquia vivia a Montfalcó d’Agramunt. (JNB-MLIR)
Església

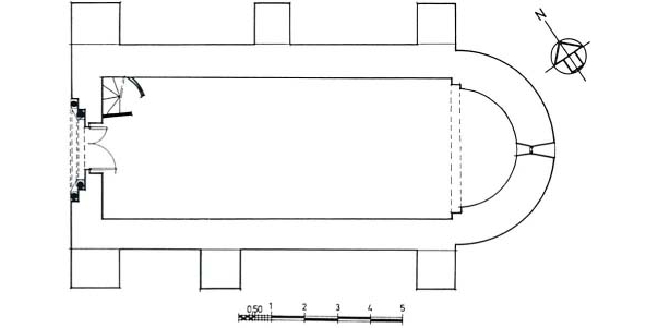
Planta de l’església, amb sis contraforts construïts gairebé simultàniament amb la resta de l’edifici per la gran deformació de la seva volta.
J.A. Adell
És un edifici d’una sola nau capçada a llevant per un absis semicircular precedit d’un estret arc presbiteral. La nau és coberta amb volta de canó, de perfil semicircular, que arrenca d’una senzilla imposta bisellada.
Al centre de l’absis hi ha una finestra de doble esqueixada i a la façana de ponent s’obre la porta, d’arc de mig punt emfasitzat per dues arquivoltes suportades per sengles columnes amb capitells llisos i bases molt simples. Aquesta façana oest és coronada per un campanar d’espadanya de dos ulls.
La volta de la nau és molt deformada. Aquesta patologia es devia produir poc després d’acabar l’edifici, car foren afegits a la nau sis contraforts amb coronament bisellat de construcció molt acurada.
A part de la porta, les façanes no presenten cap tipus de decoració, llevat del ràfec format per una motllura bisellada, present tant a la nau com a l’absis. Els paraments presenten un aparell de carreus escodats disposats molt ordenadament, la qual cosa palesa una construcció tardana, datable al segle XIII. (JAA)
Sarcòfag

Sarcòfag de pedra de mitjan segle XII conservat a l’interior de l’església.
ECSA-J. Gratacós
A l’interior de l’església es troba un sarcòfag exempt que es pot datar a mitjan segle XII, segons J.M. Miró (1974, pàg. 78). El sarcòfag està situat arran del mur sud de l’església i és de pedra grisa pròpia de la zona. Es compon de quatre peces: una caixa paral·lelepipèdica que fa la funció pròpiament dita de sarcòfag, amb decoració figurativa, d’1,60 m de llargada, 0,32 m d’alçada i 0,46 m d’amplada; i una tapa rectangular i dos peus amb forma d’arc triomfal també amb decoració esculpida.
La figuració que hi trobem es troba bastant erosionada pel temps, però s’endevina un estil arcaïtzant, molt senzill, irregular i esquemàtic; tota ella està feta, segons J.M. Miró (1974, pàgs. 77-78), amb la tècnica de fer relleu mitjançant el rebaixat de la superfície, previ disseny del contorn de les imatges. Tant l’estil com la tècnica fan pensar que el lapidari era un artesà autòcton que tenia prou nocions de simbologia i coneixia la darrera imatgeria romana tardana o bé l’hauria copiada d’algun altre element funerari, com veurem seguidament.
La decoració figurativa que hi trobem és repartida entre la caixa i els peus del sarcòfag. A la part frontal de la caixa, al centre, hi ha una creu esgrafiada dins un cercle, símbol cristològic i de redempció. A la seva esquerra, i dins d’un marc rectangular que està decorat a la part superior per una sèrie repetida d’incisions, trobem una escena on apareix un personatge que duu a la mà dreta una creu de tau o de sant Antoni —creu d’origen egipci que van adoptar els cristians coptes i que devia simbolitzar el triomf de la vida sobre la mort—, i a la mà esquerra sosté un ram de flors. Aquest personatge, segons J.M. Miró (1974, pàg. 76), es pot identificar amb un acòlit o escolanet per la seva representació amb el cap gros i el cos desproporcionadament prim, i es troba en un camp, cosa que ens ho fan notar les flors que sorgeixen de terra. A la dreta de la creu hi ha tres personatges en comitiva també emmarcats en un rectangle, el qual és decorat a la part superior per una banda en ziga-zaga. Aquests tres personatges són clarament identificables com a femenins gràcies a la indumentària que porten: faldilles llargues i mocador al cap. La dona de l’esquerra duu a la seva mà esquerra una creu, mentre que el seu braç dret s’aixeca en gest de desesperació, cosa que identifica aquest grup amb un grup de ploraneres (Miró, 1974, pàg. 77). La figura central té els braços en creu i d’aquesta manera aconsegueix connectar amb les dues dones que la flanquegen. La darrera figura, la de la dreta, també duu a la seva mà esquerra una creu de tau.

Detall del sarcòfag que es conserva a I’interior de I’església, amb una figuració esculpida forca curiosa.
ECSA-J. Gratacós
A la banda dreta de la caixa del sarcòfag hi ha sis pètals lanceolats inscrits dins un cercle, motiu de tradició funerària que ja trobem en altres sarcòfags com el de Linyà 1 (Vidal-Vilaseca, 1979, pàgs. 102 i 107) o el de Gualter (Puig i Cadafalch, Falguera, Goday, 1909-18, vol. II, pàg. 421 i fig. 366) o en algunes esteles funeràries (vegeu el volum XXII d’aquesta mateixa obra, pàgs. 58-59). El motiu també pot ser purament ornamental com és el cas d’un capitell a Santa Maria de l’Estany (Pladevall-Vigué, 1978, capitell 44b, pàgs. 520-521), però aquí evidentment la seva simbologia és funerària. Cal recordar que el número sis simbolitza l’ànima humana (Cirlot, 1985, pàg. 330). En aquest mateix costat i a la dreta d’aquest motiu, es pot apreciar que havia existit un text que posteriorment va ser esborrat amb alguna eina.
El peu esquerre té la figuració emmarcada en una ametlla just per sobre de l’arc triomfal que formen les dues potes del sarcòfag. Aquesta figura està flanquejada per dos cercles que complementen entre si la seva decoració; el de l’esquerra es compon de sis pètals lanceolats d’estructura radial i relleu sortint, mentre que el de la dreta té la mateixa decoració però amb el relleu entrant. Segons J.M. Miró (1974, pàg. 77), aquesta complementació d’oposats, juntament amb el fet que en alquímia la flor sigui el símbol del Sol, fa pensar que el primer dels cèrcols seria la representació del Sol mentre que l’altre seria la de la lluna. El mateix autor creu que la figura emmarcada en ametlla és una dona, amb la qual cosa identifica el conjunt figuratiu d’aquest peu amb el símbol de l’eternitat de tradició romana que es troba en monedes d’aquesta època; d’altra banda, aquesta decoració ja es troba en relleus visigòtics com els de Quintanilla de las Viñas.
El peu dret conté una decoració de set cercles entrelligats que podrien representar, segons J.M. Miró (1974, pàg. 77), les esferes planetàries, és a dir, la representació celest, o bé l’eternitat en un sentit pagà de considerar-la com atribut de l’Ésser; aleshores els cercles simbolitzarien l’estada del difunt amb l’Ésser suprem, és a dir Déu, en una clara sacralització cristiana d’aquesta interpretació pagana. També podríem incloure una altra simbologia lligada amb els números, ja que el número set és símbol també del dolor (Cirlot, 1985, pàg. 330), cosa a considerar si tenim en compte la proximitat d’aquesta figuració amb la de les ploraneres. (JGP)
Bibliografia
Bibliografia sobre l’església
- Rius, 1946, vol. I, pàg. 182; Bertran, 1979, vol. II, pàgs. 319-327; Vidal-Vilaseca, 1981, pàgs. 318-319; Novell, 1985a.
Bibliografia sobre el sarcòfag
- Puig i Cadafalch, Falguera, Goday, 1909-18, vol. I, pàg. 421, fig. 366; Miró, 1974, 15, pàgs. 76-79.