Situació

Aspecte extern del temple des de l’angle sud-oest.
ECSA-X. Solé
L’església parroquial de Sant Andreu és dins el petit nucli de Montblanquet, situat al pla del Baró, prop del termenal amb el municipi dels Omells de na Gaia.
Mapa: 33-16 (417). Situació: 31TCF427955.
Per a arribar-hi, cal prendre des de Belianes en direcció sud la carretera L-220 cap a l’Espluga de Francolí i a uns 10 km, en arribar als Omells de na Gaia, s’ha d’agafar un trencall en direcció a llevant, a uns 3,5 km del qual es troba el poble de Montblanquet. (XSB)
Història
Segons J.M. Sans i Travé, cal identificar aquest temple amb l’església del Tallat, que el 1150 Ramon de Cervera i la seva muller Ponceta, senyors de Montblanquet, donaren al capellà Pere de Pinós. Cal dir que en aquesta època el lloc de Montblanquet rebia també el nom del Tallat, i el fet que el santuari de Santa Maria del Tallat fos fundat al segle XIV fa pensar que l’església del Tallat donada per Ramon de Cervera i Ponceta fou, amb moltes probabilitats, l’església de Sant Andreu de Montblanquet.
A la darreria del segle XIII l’església de Montblanquet, juntament amb la de Montesquiu, consta en la relació d’esglésies i parròquies que contribuïren a la dècima papal recaptada a l’arxidiòcesi de Tarragona els anys 1279 i 1280.
L’església de Montblanquet era sufragània de la parròquia de Sant Llorenç de Rocallaura i al segle XV era de col·lació de l’abadessa de Santa Maria de Vallbona. (MMFG)
Església

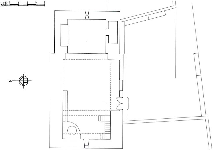
Planta de l’església, amb el presbiteri rectangular.
X. Solé
Es tracta d’un edifici d’una sola nau, sense absis diferenciat, coberta amb volta de canó de perfil apuntat. L’absis és precedit de dos arcs presbiterals, també de perfil apuntat, el darrer dels quals forma la volta de l’absis. Sobre la volta feta amb carreus, que arrenca d’unes impostes que ressegueixen els murs laterals de la nau i l’absis, una única teulada de dues aigües cobreix tot l’edifici. A la banda nord de l’absis hi ha una imatge sota un arc de mig punt buidat al mateix mur, i a la banda sud, una porta amaga la sagristia construïda també dins el mur.
A l’extrem oposat de la nau hi ha el cor, suportat per dos arcs rebaixats, sota del qual es troba la pica baptismal, assentada sobre una base de pedra que es prolonga com a banc fins a la meitat del mur nord.
A la façana de migjorn s’obre la porta d’accés al temple; és feta en arc de mig punt, de grans dovelles, i al seu costat i un xic enlairat, hi ha un rosetó de clara factura gòtica. Al centre de l’absis hi ha una finestra d’arc de mig punt i de doble esqueixada. A la façana de ponent, i visible des de lluny, s’alça un notable campanar d’espadanya d’un sol ull, coronat per un arc adovellat amb coberta de dues aigües; en aquesta mateixa façana hi ha una finestra rectangular d’una sola esqueixada que il·lumina el cor. La cornisa que corona la part superior dels murs perimetrals és sustentada per mènsules que neixen dels mateixos murs, coincidents amb les de l’interior de l’església. L’aparell és de carreus regulars i disposats en filades amb tendència a la uniformitat, tant a l’interior com a l’exterior de l’església, la qual es pot datar a la fi del segle XII o ja dins el segle XIII. (XSB)
Bibliografia
- Rius, 1946, vol. I, pàgs. 153 i 159; Sans, 1987, pàgs. 26-27; Altisent, 1993, vol. I, doc. 131, pàgs. 120-121.