Situació

Vista exterior de l’edifici des de llevant, on són visibles les dues capçaleres corresponents a les dues esglésies; a mà dreta, corresponent a la de tramuntana, l’absis semicircular; a mà esquerra, corresponent a migjorn, l’absis poligonal.
F. Tur

L’església de Santa Maria de Vilajoan és situada a l’extrem de tramuntana del nucli del poblet de Vilajoan, vora la riba esquerra del Fluvià, a l’espai batejat recentment amb el nom de plaça de Catalunya.
Mapa: 296M781. Situació: 31TDG947683.
Hom pot arribar-hi per la carretera N-II, des de la qual, després de passar la vila de Bàscara i el Fluvià en direcció a la frontera, un camí a mà dreta amb un recorregut d’1,5 km porta fins al poble. La clau de l’església és guardada en una casa veïna (JBH)
Història
El poble de Vilajoan actualment és un dels agregats al municipi de Garrigàs, però encara al segle XIX formava un terme independent amb el poble veí d’Ermedàs, avui integrat també en l’esmentat municipi. Santa Maria de Vilajoan, antiga parròquia independent, avui és sufragània de la de Santa Maria d’Ermedàs.
Segons l’historiador Pere Vayreda i Olivas, l’església de Santa Maria de Vilajoan fou donada l’any 1093 al priorat augustinià de Santa Maria de Lledó pel prevere Arnau Gausbert. Des de l’any anterior aquest monestir ja posseïa l’església propera de Santa Maria d’Ermedàs, donada per Adalbert Gausbert —que devia ésser el mateix senyor de Navata que l’any 1089 havia impulsat la fundació del priorat— en compliment de la voluntat testamentària del seu germà Arnau. És molt probable que l’esmentat clergue Arnau Gausbert fos de la mateixa nissaga. L’església de Vilajoan, tanmateix, no figura com a domini de Santa Maria de Lledó en la butlla de confirmació dels béns d’aquest cenobi concedida pel papa Calixt II l’any 1124. Així i tot, l’historiador esmentat afirma que havia trobat notícies segons les quals encara al segle XVIII el priorat obtenia les primícies d’aquesta parròquia.
Ermessenda, vescomtessa de Besalú, en el testament de l’any 1119 incloïa un alou de Vilajoan entre les nombroses possessions que llegà al monestir de Santa Maria de Ripoll, on manà que l’enterressin.
Al mur meridional de l’església de Santa Maria de Vilajoan, i encastada al parament exterior, hi ha la làpida sepulcral de Garsenda, senyora de Vilajoan, que morí el 23 de maig de l’any 1270, i del seu espòs, Bernat de Pontós.
Amb aquest matrimoni la senyoria del castell i el lloc de Vilajoan degueren passar del llinatge dels Vilajoan —de qui no es coneixen altres dades— als Pontós, dels quals hi ha notícia com a senyors del lloc durant els segles XIV i XV. Al segle XVI tenien aquest domini els Rocabruna, i més tard el castell passà a llinatges d’altres cognoms. El castell de Vilajoan (un castell palau gòtic) fou dreçat a l’extrem de migdia del poble.
L’església parroquial de Santa Maria de Vilajoan pertanyia a l’ardiaconat d’Empúries segons el censos de les Rationes decimarum dels anys 1279 i 1280, i segons els nomenclàtors de la diòcesi del segle XIV. L’any 1316 consta que fou redimit el dret de bovatge del lloc i la parròquia de Vilajoan al comte Malgaulí d’Empúries.
El culte a santa Magdalena també ha estat important en aquesta església i en època tardana hi esdevingué el més popular, però sense que es perdés l’antiga titularitat. Cal tenir en compte que ja des d’època romànica aquest temple fou ampliat i passà a tenir dues naus i dos absis i, per tant, dues advocacions d’importància semblant.
En 1984-85 els serveis de la diputació de Girona feren obres de restauració a l’església. Alguns anys abans ja havia estat anul·lat el vell cementiri parroquial, què formava un espai als costats de migjorn i de llevant del temple, limitat per parets de tanca, fetes amb còdols i morter, les quals seguien la trama del camí que arribaal poble. Quan hom derruí totalment el cementiri, desaparegueren els murs i d’altres elements tradicionals que les intervencions de diferents èpoques havien introduït al voltant del temple; així es degradà un conjunt arquitectònic molt suggeridor. Probablement també es perdé la possibilitat de fer excavacions arqueològiques en aquest terreny, ja que el nivell en fou considerablement rebaixat. Després els responsables de l’esmentada restauració han agençat aquest espai amb parterres i petits murs d’obra i graons, amb un criteri i un encert molt discutible. (JBH)
Església

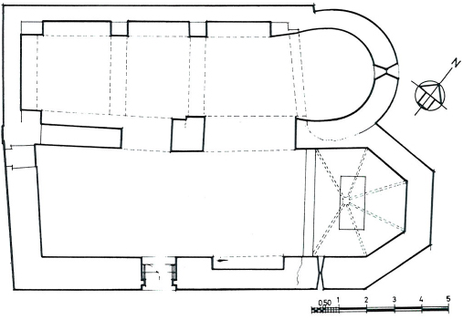
Planta, a escala 1:200, de la construcció. Més que d’una església amb dues naus, es tracta pròpiament de dues esglésies juxta-posades; la de tramuntana, anterior, amb l’absis semicircular ultrapassat; i la de migjorn, construïda posteriorment, bé que també dintre l’època romànica, amb un absis poligonal, de cinc cares.
J. A. Adell
L’església de Santa Maria de Vilajoan és un edifici que consta de dues naus rectangulars, capçades a llevant per sengles absis i comunicades mitjançant arcs formers. Les naus tenen unes mides molt semblants, la meridional una micamés ampla. Són, evidentment, d’èpoques diferents: originàriament aquest temple era d’una sola nau, que és l’actual del costat de tramuntana, a la qual, posteriorment, encara en època romànica, fou afegida la de migdia. Es a dir que, en comptes d’esmentar una església de dues naus, més aviat hem de parlar de dues esglésies unides o unificades.
La nau del costat de tramuntana, la més antiga, és rematada a llevant per un absis de planta semicircular ultrapassada o de ferradura, que s’aixeca sobre un basament o podi molt destacat de planta rectangular.
L’absis té una volta de quart d’esfera i comunica amb la nau per un doble plec de mig punt. La nau és coberta per una volta de canó sobre tres arcs torals de mig punt —un dels quals, a l’extrem de ponent, resta adossat al frontis— que arrenquen directament dels murs, un d’ells amb impostes bisellades. Aquesta volta de la nau és suportada per uns regruixos fets als murs laterals a base de tres grans arcades cegues sobre pilars adossats i impostes bisellades. Resten senceres les tres arcades del costat de tramuntana; a migdia foren destruïdes pels dos arcs formers, més grossos, construïts en afegir una nova nau en aquest costat. Hi queden, però, per sobre els arcs formers esmentats, testimonis de les arcades cegues, de mig punt, que eren simètriques a les de tramuntana.
Sembla clar que aquestes arcades laterals responen a una estructura que fou afegida per modificar el cobriment original de la nau; és a dir, per construir la volta que actualment hi veiem. Aquesta volta arrenca del regruix dels murs aconseguit en construir les arcades. Es molt probable que, originàriament, la nau tingués una coberta de fusta. Sembla que també ho indica així el gruix reduït dels murs, que és d’uns 50 cm (comprovable al costat de tramuntana).
Altrament, en observar la unió interna de l’absis amb la nau també es comprova ben clarament que aquestes arcades cegues —i, consegüentment, l’actual volta de la nau— pertanyen a una reforma de l’estructura primitiva de l’edifici. En aquest punt, els muntants de les arcades foren construïts davant el doble plec de l’embocadura de l’absis, que resta cobert o amagat en ambdós costats. Aquests muntants o regruixos de l’extrem de llevant de la nau, en unir-se al mur de l’absis, constribueixen a tancar molt la curvatura de la planta a l’interior. Així, s’accentua d’una manera molt pronunciada l’ultrapassament de radi de l’absis, que, si bé ja existia originàriament, era molt menys marcat.
La planta de l’absis l’absis té una altra particularitat que cal esmentar: el gran basament o la plataforma rectangular d’obra, visible a l’exterior.
És un element que fou posat al descobert no fa gaire temps quan rebaixaren el nivell del terreny; fins aleshores estava soterrat. El basament s’enlaira actualment uns 50 cm del sòl. De bon antuvi hom podria suposar que som davant la resta d’un primitiu absis carrat anterior a l’actual. Tanmateix, una observació atenta fa pensar més aviat que potser es tracta d’una plataforma de fo-namentació feta ja amb la intenció d’aixecar-hi damunt l’actual capçalera de planta semicircular. No podem descartar, de tota manera, que el basament respongui a un projecte inicial de construcció d’un absis carrat de tradició pre-romànica. En aquest cas, però, hom hauria variat la primera idea tot just començada l’obra per bastir l’absis semicircular o de ferradura.
Cal prendre en consideració que l’aparell del basament es pràcticament idèntic al de tota la resta del parament de l’absis. A causa de la diferència de plantes el basament sobresurt o s’avança respecte al mur curvilini de l’absis en formar els angles. Així i tot, hom procurà lligar en aquests punts els murs de diferent traçat amb uns curts plans inclinats. D’altra banda, als costats hi ha una continuïtat gairebé perfecta entre els aparells d’ambdós sectors.
S’han conservat dues finestres de diversa estructura en aquesta església primitiva; una s’obre al centre del frontis i l’altra al fons de l’absis. La porta d’entrada devia ésser a migdia, d’on desaparegué en afegir una altra nau en aquest costat.
La finestra de ponent és d’un sol vessant, però d’una amplada considerable; és a dir que l’obertura té força llum. L’arc és de mig punt i monolític, tallat en una llinda grossa. Els muntants són fets amb carreus grossos molt voluminosos, disposats al llarg i de través, ben escairats. Tots els elements són de pedra sorrenca o gres. Aquesta finestra pertany clarament a la tradició pre-romànica; és una obertura característica —en aquest cas, potser, quelcom evolucionada i rústega— de l’arquitectura religiosa empordanesa arrelada a la segona meitat del segle X, dins un tipus de finestres que trobem —en dimensions més grans— a la basílica de Sant Pere de Rodes i en edificis que s’hi relacionen estretament com ara Santa Maria de Vilanant. En el cas de Vilajoan respon a una influència o un reflex dins una construcció simple i de caràcter més popular, igual que la finestra de l’església veïna de Santa Maria d’Ermedàs.
La finestra de l’absis, en canvi, és d’una tipologia més evolucionada, ja plenament romànica. Es de doble biaix i arcs de mig punt fets amb dovelles estretes i curtes, tallades en gres, com els dos carreus llargs i estrets que formen els brancals.
L’única cornisa que té o conserva l’església primitiva corona el parament extern de l’absis. És de secció bisellada, tallada en pedra sorrenca.
Els aparells no presenten diferències significatives entre els diferents sectors dels murs perimetrals de l’edifici; on es poden veure més bé és a la cara externa dels paraments conservats. Són fets majoritàriament amb pedres de riera de mides diferents, en general voluminoses, i amb pedra calcària. Moltes d’aquestes pedres han estat trencades o escapçades però també n’hi ha sense cap treball; han estat barrejades amb altres blocs de pedra tallats bastament com a petits carreus. Foren col·locades amb tendència a formar filades seguides, però l’aparell resultant és marcadament irregular i d’aspecte molt tosc. A la base del mur de tramuntana hi ha alguns rengles de còdols que foren col·locats inclinats.
A l’absis, la barreja de tipus de pedra és més gran: còdols i petits carreus de pedra calcària, pedra sorrenca, basalt i pedres tosques i de travertí. Aquesta varietat s’explica per la proximitat del Fluvià, ja que en gran part deuen ésser materials d’arrossegament del riu.
El morter és abundant i ben visible entre les pedres. A la cara externa de l’absis hi ha uns quants pocs testimonis de l’existència anterior de juntes amb incisions que imiten un aparell de carreus.
L’aparell descrit lliga amb cantonades fetes amb carreus de pedra sorrenca excepcionalment grossos i voluminosos, amb tendència a les formes quadrangulars, ben escairats i força alli-sats, que han estat disposats al llarg i de través. La tipologia arcaica d’aquests angles accentua l’aspecte primitiu de la construcció
Als paraments externs del mur septentrional i sobretot del frontis hi ha vestigis d’una capa d’arrebossat segurament molt vell.
El frontis fou sobrealçat al costat de migdia quan les dues naus de l’església foren cobertes amb una sola coberta, que actualment és de teula àrab. Se n’identifica però, el doble vessant primitiu. Al mur de tramuntana, sota el ràfec de teules, sobresurt una filada de lloses, força gruixudes, d’una coberta antiga.
L’esmentat frontis, o la façana de ponent, incorpora, encastats en el parament i a la meitat de migdia, vestigis d’una construcció desapareguda, sobre els quals la façana esmentada recolza en part. Malgrat la migradesa de les restes i la seva ferma integració en el mur de l’església, són visibles fins a un nivell superior a la meitat de l’alçada del frontis. Hi sobresurt molt poc un fragment de mur que devia ésser perpendicular al frontis romànic; a la part inferior és visible la unió amb un altre tros reduït de mur que hi formava angle. Aquests vestigis també són identificables perquè tenen més carreus de pedra sorrenca que la part restant de la façana. Tot sembla indicar que es tracta de la romanalla d’un edifici anterior a la part més primitiva del temple actual. És evident, però, que només una excavació en podria aclarir l’època i altres detalls, com ara la seva relació amb l’església.
A l’interior l’aparell només és visible als murs que han estat repicats; al costat de tramuntana, ho és als espais que emmarquen les arcades cegues que s’hi afegiren. Els pilars i els carcanyols d’aquestes arcades laterals han estat construïts amb carreus de mida petita, ben escairats, de pedra sorrenca; les dovelles són també petites i força ben tallades, igual que les dels arcs torals de la volta, que són llargues i estretes.
La volta de la nau roman encara coberta d’un arrebossat modern. A les arrencades, començades a “netejar”, es veuen les empremtes d’un escanyissat.
Les obres de restauració romanen inacabades al sector de l’interior d’aquesta església septentrional; la volta de la nau té uns apuntalaments provisionals; de l’absis o espai presbiteral que havia estat convertit en sagristia, hom n’ha enderrocat els envans que el separaven de la resta del temple, i també ha estat tapiada la porta que el comunicava amb l’absis de migdia; totes aquestes transformacions són de datació relativament moderna.

Interior de la nau primitiva, del costat de tramuntana, capçada a llevant per un absis semicircular, ultrapassat. Hom pot veure a mà esquerra els arcs de comunicació amb la nau posterior, del costat de migjorn.
F. Tur
Tot l’interior de l’absis de tramuntana resta, també, cobert per una capa de calç que en diferents punts ha caigut. A sota hi ha vestigis, força esborrats, de decoració mural romànica. L’exigència indefugible d’un estudi d’intervenció per part de tècnics competents amb la finalitat de recuperar i restaurar les pintures sembla que ha estat el motiu pel qual hom no ha continuat la campanya de restauració en aquesta part de l’edifici.
Quan hom construí la segona nau al costat de migdia de l’església, fou comunicada amb la nau preexistent per mitjà de dos arcs formers de mig punt, molt grossos; són de mides diferents, i el de ponent té més llum.
Els arcs són coetanis, com és lògic, de l’església meridional i perforen el mur de migdia de l’església septentrional més antiga. Foren bastits amb dovelles grosses, ben tallades i polides. El mur, en els pilars de separació i part dels carcanyols, presenta un aparell que hi lliga, de grans carreus ben escairats. En alguns espais de la part superior apareix també l’aparell propi de l’església septentrional, i al costat que dóna a l’interior de la nau hi ha fragments de les arcades cegues laterals.
En aquests arcs formers hi ha una única imposta, de secció ex-curvada, en el de llevant. Més de la meitat de l’obertura de l’arc former de ponent resta tapada per un mur d’època tardana que caldria derruir.
La nau romànica del costat de migdia ha perdut la capçalera original. Actualment és capçada a llevant per un absis de la mateixa amplada, de planta poligonal, de cinc cares, fruit d’una reforma d’època postmedieval, molt tardana.
L’interior de la nau és lliure d’arrebossats. Durant les obres recents hi fou eliminat un cor afegit a l’extrem de ponent. L’absis tardà manté un encalcinament acolorit amb blavet.
Aquesta naués coberta amb una volta de canó seguida, construïda amb lloses tallades de forma allargada que es disposen en filades longitudinals, la qual arrenca d’una cornisa de quart de cercle excurvat, molt destacada. Damunt mateixde la cornisa, als punts d’arrencada de la volta, hi ha sengles filades de grans encaixos quadrangulars.
L’entrada és situada al mur de migdia. És una porta de dos arcs de mig punt en gradació, adovellats, que té un timpà i una llinda monolítics. Una motllura horitzontal, incurvada, forma les impostes dels arcs i segueix correguda entre la llinda i el timpà. Al timpà, centrant-lo, hi ha una creu grega inscrita dins un cercle, esculpida. El relleu ha estat parcialment malmès. La llinda té com a únic detall tres línies paral·leles finament incises a la meitat inferior. Els batents de fusta de la porta tenen elements de forja.
La nau constava d’una altra porta, molt petita, a ponent. Curiosament fou oberta a l’extrem de tramuntana d’aquesta façana, just a tocar del punt d’unió amb el frontis de l’església més antiga. Aquest emplaçament fou motivat possiblement pel desig de centrar l’entrada dins el conjunt del frontis format per les dues naus. La petita porta és d’un sol arc de mig punt fet amb dovelles de mida petita ben tallades. Fou tapiada ja fa molt temps amb pedres i morter. S’inscriu dins el grup de portes secundàries que, en un nombre molt elevat, hi ha a les esglésies pre-romàniques i romàniques de l’Empordà.
Al centre d’aquest frontis de la nau meridional hi ha una finestra de doble esqueixada i arcs de mig punt monolítics. És probable que una altra finestra de característiques força semblants situada a migdia de l’absis tardà hagi estat feta amb elements recuperats d’una obertura romànica del sector de capçalera desaparegut.
El mur meridional és coronat per una cornisa excurvada prominent.
A l’extrem de ponent de la nau, a frec del frontis, es dreça el campanar, que és un torricó amb un teulat de doble vessant, d’estructura molt tardana; en un carreu hi ha gravat l’any 1855. Només la base d’un pilar i alguns carreus podria sésser que fossin d’un campanar d’espadanya primitiu.
El parament de la cara externa dels murs romànics presenta un aparell de carreus més aviat grossos, ben ajustats en filades uniformes i també ben escairats i polits. Als paraments interns l’aparell és més descurat; s’hi barregen els carreus esmentats amb blocs de pedra només desbastats.
La capçalera refeta en època tardana fou construïda amb pedruscall que lliga amb carreus d’angle; té una volta d’arestes. Tot l’interior del temple és pavimentat amb rajols.
A l’església de Santa Maria de Vilajoan, hi podem assenyalar testimonis d’etapes constructives d’èpoques diverses:
- L’edifici més antic és l’església del costat de tramuntana que, originàriament era d’una nau, segurament coberta amb fusta i amb un absis de planta semicircular una mica ultrapassada, cobert amb una volta i aixecat sobre un alt basament carrat. Els elements arquitectònics conservats són el reflex d’un marcat arcaisme: el pla absidal, rústec lligat amb angles de carreus grossos, una finestra de tipus arcaic i una altra de més evolucionada. Hom pot considerar que aquesta primera església és d’un moment molt inicial del segle XI —si no és, encara, del final de la centúria anterior. És un testimoni de l’arquitectura religiosa d’aquest espai geogràfic (comtats nord-orientals de Catalunya), anterior a l’adopció de les formes llombardes i que manté pervivències una mica evolucionades de l’art anterior, del pre-romànic local.
- La nau de la primitiva església fou coberta posteriorment amb la volta que hi ha actualment. Per construir-la hom l’hagué de proveir d’un suport de més gruix que els primitius murs laterals. Amb aquesta finalitat foren afegides les arcades cegues de mig punt, adossades a la cara interna dels murs esmentats. Les estructures d’aquesta reforma, les arcades i la volta de la nau septentrional poden ésser datades, probablement, vers la meitat del segle XI.
- L’església meridional, afegida a la primitiva, amplià l’edifici a dues naus. L’actual nau de migdia i els arcs formers que la comuniquen amb la de tramuntana són d’aquesta etapa. No se n’ha conservat l’absis. Per les característiques formals i d’estil —volta i aparells, tipus d’obertures—, la nau meridional pot ésser datada ja dins el segle XII.
- Hi ha, finalment, les refeccions i els afegitons d’èpoques més tardanes. L’única d’aquestes reformes realment important fou la substitució de l’absis romànic de migdia per l’actual capçalera poligonal al segle XVII o al XVIII. L’estructura actual del campanar correspon al segle XIX. Alguns afegitons molt Wdans de l’interior foren anul·lats arran de les obres recents.
L’estat de conservació de l’edifici actualment és força bo, si bé és convenient acabar d’una manera adequada la restauració actualment interrompuda. En aquesta intervenció hom ha consolidat la fonamentació de l’edifici, la qual cosa permeté d’enderrocar —de manera molt positiva— uns grossos contraforts que amagaven una bona part del mur de migdia. Al mateix mur, i ja amb un criteri molt més discutible, per no dir desencertat, també ha estat eliminada una petita construcció amb volta, tardana, però de caràcter popular i no gens mancada d’atractiu, la qual protegia la làpida sepulcral del segle XIII que és encastada vers l’extrem de ponent.
Pintura

Un detall del mur interior de l’absis de l’església del costat de tramuntana, on són visibles restes de decoració mural, en la qual intervenen els colors negre, groc i vermellós. L’estat actual de les pintures no permet de fer-ne cap interpretació.
F. Tur
A l’interior de l’absis septentrional d’aquesta església hi ha restes de decoració mural romànica. Són poc visibles sota la capa d’encalcinat moderna, en alguns espais on la calç ha caigut. Aquesta capa de calç amaga, sens dubte, altres vestigis més o menys importants. En qualsevol cas, els pocs que avui s’identifiquen apareixen molt malmesos i esborrats: sovint són simples taques de colors. És impossible qualsevol intent d’interpretació dels temes representats.
La configuració actual del mur demostra que, a la part inferior de l’absis, ben poques restes hi deuen quedar de l’antiga decoració, a que el parament ha estat, en una bona part, rebaixat o malmès.
Vers l’extrem de migdia de l’hemicicle hom pot veure un fragment amb rastres de pintures: franges de color groc entre ratlles negres. Més amunt, ja en part a la curvatura de la volta, n’hi ha més vestigis amb els colors vermell, blau i groc.
Al centre de l’absis, a ambdós costats i damunt la finestra, hi ha una franja amb un dibuix sinuós en negre i colors groguencs i vermellosos entre línies negres que pertanyen hipotèticament a vestits de personatges. Al costat de tramuntana és visible un altre fragment molt petit de pintura.
Aquestes restes de decoració pintada esperen, des de ja fa massa temps, el treball de descoberta total i de restauració. Malgrat l’estat precari pels fragments visibles actualment, no és impossible que aparegui alguna part més ben conservada sota els gruixos de calç. (JBH)
Grafits
A la portada romànica, situada a la façana de migdia de l’església, hi ha alguns caràcters incisos o grafits.
La llinda d’aquesta porta té tres línies incises, horitzontals i paral·leles a la meitat inferior.
Hi ha altres incisions als carreus del muntant esquerre de l’arc exterior de la portada. De baix a dalt, hi ha un dibuix format per cinc ratlles paral·leles partides per un altra de transversal, una petita creu de 4 × 4 cm i un dibuix que, gairebé segur, pot ésser interpretat com un rellotge de sol. És bastant esborrat, però s’assembla molt al rellotge, també gravat a la pedra, que hi ha a la part superior del mateix mur i que duu inscrit l’any 1527.
En un carreu del muntant dret del mateix arc hi ha unes ratlles inconnexes molt desgastades.
En un carreu angular de l’absis meridional, que és una construcció del segle XVII o XVIII, hi ha una creu incisa que fa 15 × 10 cm. No és impossible que el carreu procedeixi de la capçalera romànica que fou substituïda per l’absis esmentat. (JBH)
Pica

Pica beneitera conservada a l’interior de l’església. La seva decoració l’emparenta amb d’altres que hi ha a l’Empordà, de mida més grossa, i que cal situar a la segona meitat del segle XII.
F. Tur
A l’interior de la nau de l’església de Santa Maria de Vilajoan hi ha una pica romànica molt petita. És una peça tallada en un bloc de pedra sorrenca, en forma de copa poc bombada i sense peu, que actualment reposa sobre una peça troncocònica, ben tallada en pedra sorrenca, que té un encaix al centre del pla superior.
El perfil del cub té les dues terceres parts superiors que cauen verticalment, mentre que el diàmetre de la tercera part inferior minva a mesura que s’acosta a la base, i dóna lloc a un perfil oblic.
A l’extrem superior, i a tot el volt, corre un fris esculpit, format per petits arcs cecs de mig punt. Al centre, dins alguns d’aquests arcs hi ha un relleu en forma de llàgrima, com un penjoll; d’altres no tenen aquest element. El fris consta de deu arquets amb aquesta seqüència: tres arcs amb penjoll, tres sense penjoll, un altre amb penjoll i tres sense, possiblement, ja que, del darrer grup, n’hi ha dos de malmesos. Un reduït fragment del contorn superior de la pica ha estat refet amb ciment.
La pica té 36 cm d’alçària; el diàmetre exterior, a la part superior i més ampla, és de 39 cm; el diàmetre interior és de 27 cm. La base mesura 17 cm de diàmetre. El fris ornamental fa 11 cm d’alçària.
Aquesta peça té un aspecte tosc, rústec. Amb relació a això, cal recordar el que diuen Lojendio i Rodríguez quan estudien les piques baptismals romàniques de Castella, algunes de les quals són situades en una zona intermèdia, on el romànic s’uneix amb l’art popular, i que defineixen com a manifestacions “d’un art popular i local, inspirat en el romànic” (L. M. Lojendio I A. Rodríguez: Castilla/2, dins La España romànica, vol. III, Ediciones Encuentro, Madrid 1979, pàg. 345).
Aquesta rusticitat i aquest treball elemental que exhibeixen aquest tipus de peces poden fer pensar en una antiguitat que no tenen. Per això mateix és molt difícil, si no hi ha documents sobre això, datar aquest tipus de peces. Per la semblança amb altres piques, en general de mides molt més grosses, podem apuntar, hipotèticament, la segona meitat del segle XII. (JBH-GYCP)
Forja
La porta d’entrada a l’església de Vilajoan ha conservat algunes peces de ferro que deuen ésser el que ha restat d’un conjunt més complet. Als dos batents de fusta hi ha un parell de tires o cintes a la part inferior i un altre parell a la meitat superior; sobre aquestes darreres hi ha, encara, dos picaportes, tot disposat —segurament recol·locat tardanament— de manera simètrica.
Les cintes clavetejades a la fusta, destinades a ajustar i fixar les posts de la porta, difereixen una mica per llurs mides. Totes tenen el disseny característic de dobles espires o volutes que es bifurquen a cada extrem i es cargolen en sentits oposats. Les cintes són força amples i presenten un acanalat central, simple, tret d’una d’elles, la més grossa, que és treballada amb diferents mot-llures paral·leles i amb volutes més destacades.
Són interessants els dos petits picaportes a la part superior dels batents. Ambdós són agafats a la fusta per un pom rodó, amb un ressalt molt sobresortint, del qual neix una ampla anella d’on penja l’argolla movible. Les plaquetes que formen les dues anelles tenen una decoració senzilla però diversa. La que és situada a mà esquerra té tres franges paral·leles amb incisions dentades o d’espiga; la del picaporta de la dreta té també tres franges amb petits forats circulars.
No és possible apuntar una datació precisa per a aquestes peces de forja, de tipus romànic, que perduraren durant molt de temps seguint fidelment uns mateixos esquemes. (JBH)
Treballs de restauració
L’any 1993, la Generalitat de Catalunya, conjuntament amb la Diputació de Girona i el bisbat gironí, es féu càrrec de les obres de restauració d’aquest edifici religiós. Els treballs realitzats en l’obra consistiren en la consolidació de la volta de la nau preromànica i la reconstrucció de la teulada. (MLIR)
Bibliografia
- Francesc Monsalvatje i Fossas: Noticias históricas, vol. XV, Olot 1908, pàg. 332; vol. XVI, Olot 1908, pàg. 247.
- Pere Vayreda i Olivas: El priorat de Lledó i les seves filials, Biblioteca Balmes, Barcelona 1931, pàg. 141.
- Miquel Oliva i Prat: Noticias sobre Iglesias prerromànicas gerundenses, “Revista de Gerona”, núm. 20, Girona 1962, pàg. 80.
- Pere Català i Roca, Miquel Oliva i Prat i Miquel Brasó i Vaqués: Castells d’Arenys, Tonyà i Vilajoan, dins Els castells catalans, vol. II, Rafael Dalmau, Editor, Barcelona 1969, pàg. 417-418.
- Jaume Marquès i Casanovas: El castillo de Vilajoan, “Revista de Gerona”, núm. 47, Girona 1969, pàg. 7-10.
- Joan Badia i Homs: L’arquitectura medieval de l’Empordà, vol. I, Diputació Provincial de Girona, Girona 1977, pàg. 46 i 55; vol. II-A, Girona 1978, pàg. 191-193; vol. II-B, Girona 1985, 2a. ed., Notes a la segona edició, pàg. 558.
- Xavier Barral i Altet: L’art pre-romànic a Catalunya. Segles IX-X, Edicions 62, Barcelona 1981, pàg. 272.