Situació

L’església des del costat sud-est, amb la petita i singular absidiola que s’obre en aquest costat, prop la capçalera.
ECSA-X. Solé
L’església parroquial de Sant Pere és situada al nucli de població de Santa Fe de Segarra, un xic apartada vers migdia i envoltada a l’est i sud per l’antic cementiri.
Mapa: 34-14 (361). Situació: 31TCG639178.
Per a anar a Santa Fe de Segarra des de Cervera, s’ha de seguir la carretera N-141 que porta a Sant Ramon, i un cop fets uns 6 km es pren la carretera LV-1004, a mà dreta, que en 1,5 km mena directament al poble. (XSB)
Història
El lloc de Santa Fe, esmentat des del 1025, formà part del comtat de Berga, i degué ser conquerit als sarraïns a la primera meitat del segle XI. De la seva església es té fins a l’actualitat molt poca informació del seu passat medieval; tot i això, la duplicitat de sants de l’hagiotopònim, l’un com a titular de l’església i l’altre com a toponímic del poble, fa pensar en una anterior advocació de l’església d’aquest lloc, que devia correspondre a santa Fe, la qual cosa pot indicar un origen antiquíssim d’aquesta parròquia.
L’església del poble de Santa Fe formà part del bisbat d’Urgell fins a la darreria del segle XVI, època en què passà a formar part de la nova diòcesi de Solsona.
El 1391 el capellà de la parròquia de Santa Fe consta en la relació de la dècima papal recaptada al bisbat d’Urgell aquell any, segons la qual pagà 20 sous. Aquesta parròquia formava part del deganat de la vall de Lord i fou visitada l’any 1358 pel bisbe de Vic, Ramon de Bellera.
Al Museu Diocesà i Comarcal de Solsona es guarda un retaule gòtic procedent d’aquesta parròquia, que representa escenes de la vida de santa Fe. (ABR)
Església

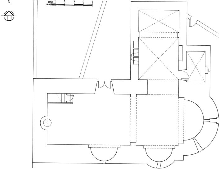
Planta de l’església, originàriament trevolada, amb l’absidiola nord substituïda per una gran capella.
ECSA-X. Solé
És un notable edifici d’una sola nau, coberta amb volta de canó seguit reforçada per un arc toral, que arrenca de sengles pilastres, i capçada a llevant amb un absis de planta semicircular cobert amb volta de quart d’esfera que s’obre a la nau mitjançant un arc presbiteral en degradació. L’església ha estat modificada i engrandida amb cossos afegits en època posterior.
Al costat sud de la nau hi ha una absidiola oberta en el gruix del mur per mitjà d’un arc de mig punt en degradació, mentre que al mur de la banda nord hi ha una capella de planta rectangular, coberta amb volta de creueria; aquesta capella, afegida en època tardana, és oberta a la nau mitjançant un arc de mig punt, i des d’aquesta s’accedeix a la sagristia, coberta també amb volta d’aresta. Aquesta capella deu substituir una absidiola, que probablement devia completar una capçalera trevolada.
La pica baptismal és dins un arcosoli en forma d’absidiola que s’obre al mur de ponent de l’església, i, a l’angle nord-oest, una escala dona accés al cor i al campanar de torre de quatre obertures, d’època tardana. La porta d’entrada, amb llinda, és posterior al romànic i s’obre al mur de tramuntana, on sobresurt el cos de la capella amb una coberta independent de dues aigües, més baixa que la de la nau, després del qual una porta dona accés al recinte de l’antic cementiri.
Adossat al semicilindre absidal hi ha el cos que forma la sagristia, amb coberta d’un sol pendent, el qual és il·luminat per una petita finestra amb llinda, mentre que l’absis, de la mateixa alçada de la nau, té dues finestres, una al centre amb arc de mig punt monolític i d’una sola esqueixada, i una altra situada al costat sud.
Al mur de migjorn sobresurt exteriorment una absidiola que fa la mateixa alçada de la nau, amb una finestra d’arc de mig punt monolítica i d’esqueixada simple, i en aquest mateix mur, vers ponent, hom hi veu una altra obertura més alta i allargassada que il·lumina l’interior de la nau. Una altra finestra d’arc de mig punt adovellat, situada al mur de ponent, il·lumina el cor, mentre que un ull de bou dona llum a la nau. L’aparell de l’església és fet de carreuó ben escairat i irregular, propi del segle XII, disposat en filades amb tendència a la uniformitat a la nau, absis i campanar, mentre que, a la capella afegida al mur nord i a la sagristia, l’aparell és de carreus i carreuons irregulars disposats desordenadament. (XSB)
Bibliografia
- Bertran, 1979, II, pàg. 299; Vidal-Vilaseca, 1981, pàgs. 261-262.