Situació

A uns 5 km al nord-est del municipi de Rabós d’Empordà i vora el vell camí del coll de Banyuls, s’aixequen les ruïnes de l’antic monestir benedictí de Sant Quirc o Sant Quirze de Colera. Aquest important cenobi, fundat a la capçalera de la vall de la riera de Sant Quirc o la Requerada, que neix a la carena de l’Albera, prop del coll de la Perdiu, ofereix encara un aspecte impressionant i les seves restes presenten vestigis d’èpoques diverses. Es trata d’un dels monuments medievals més notables de l’Empordà i, sens dubte, de tot el país.

Vista de conjunt del monestir des del costat sud-est. A mà esquerra, l’església de Santa Maria, a pocs metres del cenobi.
J. Todó-TAVISA

Una vista aèria del monestir des del costat nord-est. A primer terme, l’església de Santa Maria.
J. Todó-TAVISA
Mapa: 220M781. Situació: 31TEG049761.
Per anar-hi actualment el millor camí és el que surt del poble de Vilamaniscle. Hom pot agafar també el camí que hi porta des de Rabós d’Empordà, que enllaça amb el primer. El monestir és a 5 km, aproximadament, d’ambudes poblacions, recorregut que cal fer per una pista de terra. (JBH-MLIR)
Història
Els orígens del monestir de Sant Quirc de Colera han estat molt controvertits per tal com l’únic document que els explica ha estat considerat, des de fa uns anys, un document fals. Analitzat el text, els anacronismes que serveixen per a titllar-lo d’apòcrif es concentren en una sola part de la declaració dels testimonis aportats pel monestir, juntament amb algunes de les signatures, i una frase que hom pot considerar, si no una interpolació clara, sí dubtosa. La resta és tot versemblant, sense cap anacronisme i impossible de falsificar amb tanta precisió al segle XIII, ja que la data, els personatges i el lloc concorden, fins i tot el tipus d’aprisió, única i la més primitiva.
Per tant, segons l’esmentat document, sense les interpolacions, clares o dubtoses, la fundació de Sant Quirc de Colera fou així: segurament després del traspàs del domini sarraí de la ciutat de Girona l’any 785, una família, encapçalcada per dos germans, Libenci i Assenari, fundà un monestir, i amb els seus familiars i servents i altres homes que volien fer vida cenobítica o simplement disposar d’unes terres per traballar-les, aprisiaren les valls de l’Albera, on hi havia hagut el castell de Toló. Abans de l’any 815 acudiren a la cort imperial i obtingueren un precepte de Carlemany. El que declararen els testimonis és el que van veure i escoltar en aquest document que els devia ésser llegit. Per ell l’emperador Carles donà el seu fisc a Libenci, abat (per tant, el monestir ja havia estat organitzat), i al seu germà Assenari, el castell de Toló, amb els seus confins i adjacències, i tota la terra, les muntanyes i les valls de Leocarcari, també amb els seus confins i adjacències, amb el pacte que a les valls fos erigit i edificat el monestir de Sant Quirc i Sant Andreu. De fet el monestir ja devia ésser edificat, però, com succeïa en altres llocs, l’autoritat volgué passar per ésser-ne la fundadora. Tanmateix, a les altres fund ions, primer hom comprova com són fetes les aprisions i una primera fundació i després hom cerca la protecció imperial o bé reial.
Després d’aquest precepte vingueren les grans aprisions i les fundacions de parròquies per tota la vall. Primerament la de Sant Martí del castell de Toló o de Peralada, després les de Santa Eulàlia de Noves, Sant Romà de Delfià, Sant Cebrià de Mollet, Sant Martí de Masarac, Sant Climent Sescebes, Sant Esteve de Ca allops, Santa Maria de Requesens, Sant Martí de Baussitges, Sant Genís d’Esprac, Sant Julià de Rabós, Sant Jaume d’Espolla i Santa Maria de Tornabule, que probablement cal identificar amb Santa Maria de Colera.

Possessions del monestir.
Aquesta activitat creadora de nuclis de població que es converteixen en parròquies o en els quals s’estableixen cel·les, també es detecta en altres monestirs gironins d’aquesta època. Per tant la fundació del monestir i aquestes fundacions de parròquies són totalment versemblants per aquesta època del final del segle VIII i del començament del IX.
Després de passar més de quaranta anys de la primera fundació, la particular, els fundadors, l’abat Libenci i el seu germà Assenari, que tenien el monestir com a propietat particular per tal com n’eren els fundadors, donaren els seus drets al monestir i als monjos que hi viurien, i segurament establiren que un membre de la seva família en fos l’abat. Per això el monjo Guiemund, fill d’Assenari, fou el representant del monestir, malgrat que no es titulés abat, quan hagué de defensar els drets del monestir enfront les interferències del comte Alaric.
El comte Alaric d’Empúries fou un personatge molt gelós de les seves prerrogatives. Ja l’any 842 perdé un plet amb el bisbe Gotmar de Girona, perquè conculcava els drets episcopals als comtats d’Empúries i Peralada. De manera semblant, el comte Alaric no volgué reconèixer els drets del monestir de Sant Quirc de Colera, ja que els monjos no podien, com el bisbe gironí, pr entar cap document reial que avalés els seus drets, però sí que en tots dos casos presentaren testimonis que havien vist aquests documents i explicitaren el seu contingut, i el comte hagué de renunciar a les seves pretensions. En el cas de Sant Quirc de Colera, el monjo Guiemund, fill d’un dels fundadors, acudí l’any 844 a Sant Serni de Tolosa, on el rei Carles es trobava assetjant la ciutat on s’havia refugiat el rebel Bernat de Septimània. Hi acudiren molts abats catalans a recaptar preceptes per als seus m estirs: l’abat Dòmnul per al monestir de Sant Pere d’Albanyà, l’abat Adulf per al monestir de les Escaules, l’abat Guilera per al monestir d’Amer, l’abat Elies per al monestir de Banyoles, l’abat Frodiscle per al monestir de Sureda, l’abat Agila per al monestir de Senterada, l’abat Recesind per al monestir d’Arles i el prepòsit Sintremund per al monestir de Sant Climent de Reglella. També s’hi trobava present el bisbe Gotmar de Girona, que fou un dels jutges del judici de Sant Quirc de Colera, el qual obtingué del rei Carles la confirmació d’un precepte de Carlemany i del seu fill, Lluís el Piadós.
Judici sobre els béns del monestir de Sant Quirc de Colera (24 de maig de 844)
Judici presidit pel bisbe Gotmar de Girona, pel qual el monjo Guiemund del monestir de Sant Quirc de Colera s’enfronta amb el comte d’Empúries Alaric sobre l’alou del monestir, situat al territori de Toló, a Peralada, apr iat pels fundadors del monestir.
"Mota fuit quæstio in præsentia domini gloriossimi Caruli regis in civitate prope Tolosam in monasterio Sancti Saturnini inter domino Alaricho comite ex una parte et Giemundo monacho et su monasterio Sancti Cirici et Sancti Andrae sito in territorio Tolonense ex alia parte. Et data judices a dicto Carolo rege scilicet Guondemaro Gerundensis episcopo Eienricho comite Pictasensi Gacfero Burdalensi comite et Servo Dei judex et Petri arxilevitæ Sancti Stephani Tolosæ ut audiamus judicemus ac diffiniamus hanc causam. Venit in nostra præsentia ubi dictus Giemundus monachus et petivit dicto Alarico comite pro suo monasterio Sancti Cirici et Sancti Andræ dicens: quod Libentius avunculus meus una cum genitore meo nomine Assinario per preceptum dompni gloriossisimi Caroli imperatoris prendiderunt primi homines castro Tolon et fines et adjacentias suas et tota terra illa et mo aneas et valies Leocarcari et ibi plantaverunt et edifficaverunt monasterio Sancti Cirici et Sancti Andræet in castro Tolon domo Sancti Martini f erunt et ibi villam mansos mansatas vilarunculos poblaverunt et pa ochiam constituerunt et postea nomen Petralata ibi miserunt quæantea a paganis Tolon sive Terra Mortua vocaverunt. Et in tota terra illa et mo aneas et valies Leocarcari villas vilarunculos mansos mansatas poblaverunt et ecclesias fecerunt et parrochias constituerunt habuerunt et tenuerunt et judicaverunt totum hoc predictum secundum ipsorum voluntatem per XL annos et amplius et ad mortem illorum totum hoc predictum dimiserunt liberi ac solidi dicto monasterio vel ad illi qui ibi vitam monasticam vivebant. Et dum erimus ibi domini possessores post mortem illorum per X annos et amplius sic venit dictus Alarius comes et depotestavit nos injuste et contra lege et multa malas exacciones extorsit ab hominibus qui erant populati in omnibus dictis locis. Nos supradicti judices interrogavimus dicto Alarico c ite quid respondit ad ea quaæ sibi aponunt. Ille dictus comes ita respondit: Iste castro Tolon cum fines et adjacentias earum et tota terra illa et mo aneas et valles Leocarcari quod iste Giemundus monachus mihi requirit pro suo monasterio Sancti Cirici et Sancti Andreae infra meo comitatu est et debeo habere et possidere et judicari quasi res proprias de meo comitatu et non credo ullo modo quod a divæ memoriæ Carolo imperatore donacio fuisset facta jam dicto Livencio abba ved ad suo fratre nomine Assenario m acho sive a dicto monasterio et nunc potui credere quod omnia predicta essent aprisiones de illis dictis nec illis essent populatores de omnibus pr ictis locis. Nos supradicti judices interrogavimus dicto Giemundo monacho si haberet firmas scripturas et bene corroboratas vel testes boni testimonii ut ea quæ dicis in veritate mittere posis et si facere nequivis de jure vox tua extincta sit de hac re et ea amplius non resolves. Qui statim dictus Gi undus monachus protulit nobis testes veraces IIII presbiteri et IIII milites et VI paienses. Nos judices statuimus eos testes jurare super altare cons rato in honore Sanctæ Mariæ virginis in ecclesia Sancti Saturnini et super reliquias dicti Sancti Saturnini et super quator evangelia et ita hæc fecerunt. Et post sacramentos nos dicti judicies singuli ac discussi sicut lex docet e uisimus ab illis rei veritatem et omnes dicti testes concorditer quasi una voce protestabant hunc testimonium ita: Nos vidimus et audivimus et pr entes fuimus quando domno gloriossisimo Carolo imperatorie dedit de fi ho suo Libentio abbato et ad suo germano Assenario monacho castro T on cum fines et adjacentias suas et tota terra illa et montaneas et valles Leocarcari cum fines et adjacentias eorum tali pacto ut in ipsas valles pla ent et edifficent monasterium Sancti Cirici et Sancti Andrae. Item postea vidimus et audivimus et presentes fuimus quando Libentius abba una cum Assenario monacho prendiderunt primi homines post mortem Galaffre et Biuxan filio eius et aliorum sarracenorum, dicto castro Tolon cum fines et adjacentias et tota terra ila et montaneas et valles Leocarcari cum fines et adjacentias eorum et ibi in dictas valles plantaverunt et edifficaverunt m asterio Sancti Cirici et Sancti Andrae et in casstro Tolon domo Sancti Ma ini fecerunt et ibi villa mansos mansatas vilarunculos poblaverunt et pa ochiam constituerunt et postea nomen Petralata ibi miserunt qui antea a Paganis Tolon sive Terra Mortua voccaverunt et in tota terra illa et mo aneas et valles Leocarcari mansos mansatas villas vilarunculos poblaverunt et fecerunt ecclesias scilicet in Novis Sancta Eulaliæet in Dalfiano Sancti Romani et in Moleto Sancti Cipriani et in Maseracho Sancti Martini et juxta rivo Agneti Sancti Clementi et in Cantalupis Sancti Stephani et in Rech indo Sancta Mariæ et in Baucigis Sancti Martinis et juxta rivulo Urline Sancti Genesii et in Rabedoso Sancti Juliani et in Spodilia Sancti Jacobi et in Tornebule SanctæMaris et parrochias constituerunt in dictas ecclesias et postea fecerunt cellulas sanctorum in dictas parrochias habuerunt ac jud averunt omnia predicta secundum illorum voluntatem. Item postea vidimus et audivimus et presentes fuimus quando dompno gloriossisimi Ludovicho filio Dompno Carolo Imperatore venit ad expugnandos omnes sarracenos qui erant in Barchinona et cepit ea et ibi dimisit genitori de isto dicto Alaricho comite domin[i]o super totam Cataloniam. Et vidimus et audivimus et pr entes eramus quando dictus Ludovichus mandavit atque precipiendo dixit dicto comite quod non tangat neque capiat vel judicet nullam rem de rebus vel honoribus dicti monasterii Sancti Cirici et Sancti Andrea quia de fischo Patri mei est hereditatus sed manuteneas ac deffendas quasi res proprias de fischo genitori meo habuerunt et possederunt ac judicaverunt in bona pace totum hoc predictum heremum et condirectum: pratis pascuis silvis garricis aquis aquarumque molendinis et molinaris piscatories ruppes petras fontes plano monte vieductibus vel reductibus. Omnia et omnibus quicquid visum est habere infra fines et terminis de omnibus predictis locis per XL annos et amplius et postea totum hoc predictum liberi dimiserunt predicto m asterio et ad illi qui ibi vitam monasticam vivebant. Et dum essent domini possessores post mortem illorum per X annos et amplius nos videntibus sic venit dictus Alaricus comes et depotestavit illos injuste et contra lege et mu as exactiones judicando sive rapiendo injuste extorsit ab hominibus qui erant populati in omnibus predictis locis et hodie plus […]tur omnibus pr ictas parrochias cum fines et adjacentias et terminis eorum a isto Giemu o monacho et ad suo monasterio sive ad illis qui ibi vitam monasticas vivent ad expletandum et regendum ac judicandum quam a nullo alio homine v enti. Nos supradicti judices interrogavimus dicto Alarico comite si voluit nec potuit nulla bona ratione ponere contra istos testes ut ea quæ testantur invalidum sit. Et comes Alaricus ita respondit: Nollo ponere ulla ratione contra illos testes. Et nos supradicti judices pariter ac diligente exquisivimus hanc causam rey veritatem. Auditis rationibus allegationibus renunciatione exinde facta donavimus hanc diffinitivam sententiam ita ut dictus comes Alaricus pleniter reddat dicto monasterio Sancti Cirici et Sancti Andreae et ad suorum monachorum tam presentium quam futurorum dicto castro T on cum fines et terminis adjacentias suas et tota terra illa et predictas pa ochias cum fines et terminis adjacintiis eorum habeant heremum et co irectum quantum visum est infra fines et terminis adjacentiis de omnibus predictis locis et possideant regant et judicent et per alodium teneant in perpetuum de fischo imperatoris sive regis totum hoc predictum sine omni retentu et servicio et judicio ac justitia quod ibi in omnibus prædictis locis dictus comes necne alii non habeant vel capiant pro ulla ratione. Item pl iter reddat in triplo omnia mobilia quæ habuit receptas pro vi sive gratis vel aliqua alia ratione in omnibus predictis locis sicut eas certas sive veras poterint hostendere in presentia dicto Gondemaro episcopo quando fuerit presens in dicto monasterio.
Data fuit hæc sentenia in civitate Tolosa in dicto monasterio Sancti Saturnini VIII kalendas junii anno IV regnante dompno Carolo rege.
Gondemarii Gerundensis episcopi +. Sig+num Eyenrici Pictavensi comiti. Sig+num Gauferi Burdolensi comiti. +Petri archilevitæ Sancti Stephani Tolosæ. Pe+ tro iudex ordinarius in curia regis.
Nos judices mandato Carolo rege hanc sententiam donamus et co oboramus. Sig+num Gaucperti de Castronovo. Sig+num Gaucerandi de Avalrino. Sig+num Eymerici Castellanus de Castro Tolom quem vocant P elada. Si+num Samarelli presbiteri. Sig+num Ugo presbiteri. Sig+num Falcuchii presbiteri. Sig+num Salomoni presbiteri. Sig+num Rodulfi. Sig+num Novelli. Sig+num Eriberti. Sig+num Sancii. Sig+num Clementi. Sig+num Roberti. Nos testes producti in hac causa confirmamus sententia data. Sig+num Giberti Domino Terragonœ. Sig+num Eymerici Domini Naarbonœ. Sig+num Bocardi de Portaclusa. Sig+num Esquivi de Caput Stagni. Sig+num Umberti de Accuta. Sig+num Fulchi de Sancto Martino testes rei Huius.
Ilerus presbiter et publicus scriptor in civitate Tolosa in burgo Sancti S urnini rogatus a predictis judicis scripsit die et anno pre+fixo.
Gondemarii Gerundensis episcopi præscripta sententia sigillari + feci. Servo Dei judex ordinarius Carolo regi + similiter feci."
(Transcripció: Albert Benet i Ciarà)
Original: Perdut.
Còpia interpolada: Perduda. Abans era a l’Arxiu antic de la col·legiata de Sant Pere de Besalú.
Còpia interpolada del segle XIII: Arxiu Episcopal de Girona, vol. XXIV, Feudorum Curiae Episcopalis Gerundensis.
Extracte interpolat del segle XIX: Arxiu de la Mensa Episcopal de Vic, lligall 2059, plec VIII a.
Jaume Villanueva i Astengo: Viage literario a las iglesias de España, vol. XIII, Madrid 1850, apèndix IV.
Francesc Monsalvatje i Fossas: Noticias históricas del condado de Besalú, vol. VIII, Olot 1898, apèndix.
Nota: Aquest document ha estat considerat fals o, almenys, molt alterat en època baix-medieval. El text que publiquem és el de J. Villanueva; les parts que són clarament interpolades, les posem en cursiva.
Traducció
"Se suscità una qüestió en presència del gloriosíssim Caries, rei, prop de la ciutat de Tolosa, al monestir de Sant Sadurní, entre el senyor Alaric, comte, d’una part, i Guiemund, monjo, i el seu monestir de Sant Quirc i Sant Andreu, situat al territori de Toló, d’altra part. I l’esmentat Carles, rei, donà els jutges següents: Gotmar, bisbe de Girona, Enric, comte de Poitou, Gaufred, comte de Bordeus, Servent de Déu, jutge, i Pere, arx evita de Sant Esteve de Tolosa, perquè escoltem, jutgem i definim aquesta causa. Allí vingué, davant la nostra presència, l’esmentat Guiemund, mo o, i reclamà a l’esmentat Alaric, comte, el seu monestir de Sant Quirc i Sant Andreu, tot dient que Libenci, oncle seu, amb el seu pare, de nom Assenari, per un precepte del gloriosíssim senyor Carles, emperador, feren aprisió del castell de Toló i dels seus confins i adjacències, i tota la seva terra, muntanyes i valls de Leocarcari, i allí plantaren i edificaren el m estir de Sant Quirc i Sant Andreu, i al castell de Toló construïren la casa de Sant Martí i allí poblaren una vila, masos, masades i vilarets i la con ituïren parròquia. Després li posaren el nom de Peralada, bé que abans era anomenada pels habitants del lloc Toló o Terra Morta. I tota aquella terra i les valls de Leocarcari, tot això ho poblaren de viles, vilarets, masos i masades i hi feren esglésies, les constituïren parròquies i hi tingueren i administraren justícia en tots aquests llocs esmentats, segons la seva volu at, per més de quaranta anys. Després de la seva mort, tot l’esmentat ho donaren lliure i sòlid al monestir i als qui allí visquessin en vida monàstica. I mentre estàvem allí com a senyors i possessors durant més de deu anys després de la mort dels donadors, vingué l’esmentat Alaric, comte, i ens prengué la potestat injustament i contra tota llei, i extorsionà amb moltes exaccions els homes que habitaven en tots els llocs esmentats.
Nosaltres, els damunt dits jutges, interrogàrem l’esmentat Alaric, comte, el qual respongué així: “Aquest castell de Toló amb els seus confins i les seves adjacències, i aquella terra i muntanyes i valls de Leocarcari, que aquest Guiemund, monjo, em reclama per al seu monestir de Sant Quirc i Sant Andreu, situat al meu comtat, l’he de tenir i posseir i jutjar com a cosa pròpia del meu comtat i no crec, de cap manera, que la donació hagués estat feta per l’emperador Carles, de divina memòria, al ja esmentat Libenci abat o al seu germà, de nom Assenari, monjo, o al seu monestir, i ara no puc creure que tot l’esmentat siguin aprisions seves, ni que ells siguin els repobladors de tots els llocs esmentats”. Nosaltres, els susdits jutges, inte ogàrem el dit Guiemund, monjo, si tenia escriptures signades i ben co oborades, o bons testimonis, de manera que això que dius ho puguis provar veraçment, i si no pots fer-ho com és de dret, que la teva veu s’apagui en aquest afer i no ho reclamis més. Tot seguit Guiemund, monjo, ens presentà testimonis vàlids, quatre preveres, quatre cavallers i sis pagesos. Nosaltres, els jutges, establirem que aquests testimonis juressin sobre l’altar consagrat en honor de santa Maria, verge, a l’església de Sant Sadurní i sobre les relíquies d’aquest Sant Sadurní i sobre els quatre evangelis. I així ho feren. I després d’aquests sagraments, nosaltres, els jutges esmentats, cadascun i per separat, com la llei ensenya, indagàrem d’ells el que era veritat, i tots aquests testimonis, concordant gairebé unànimement, respongueren aquest testimoni d’aquesta manera: “Nosaltres ho veiérem i ho sentírem i hi fórem presents quan el gloriosíssim senyor Carles, emperador, donà del seu fisc a Libenci, abat, i al seu germà Assenari, el castell de Toló amb els seus confins i les seves adjacències i tota la terra, muntanyes i valls de Leocarcari, amb els seus confins i les seves adjacències, amb el pacte que a les valls hi pla essin i edifiquessin el monestir de Sant Quirc i Sant Andreu. Igualment, després veiérem, oírem i hi fórem presents quan Libenci, abat, amb A enari, monjo, foren les primeres persones a ocupar, després de la mort de Galaire i Biuxam i els seus fills i d’altres sarraïns, l’esmentat castell de Toló amb confins i les seves adjacències i tota la terra i muntanyes de Leocarcari amb els seus confins i les seves adjacències, i a les dites valls plantaren i edificaren el monestir de Sant Quirc i Sant Andreu, i al castell de Toló edificaren la casa de Sant Martí i la poblaren amb una vila, masos, masades, vilarets i la constituïren parròquia, i després li posaren el nom de Peralada, que abans els habitants del lloc anomenaven Toló o Terra Morta; i tota la terra i les muntanyes i valls de Leocarcari, les poblaren amb masos, m ades, viles i vilarets i hi feren esglésies com les de Santa Eulàlia de Noves, Sant Romà de Delfià, Sant Cebrià de Mollet, Sant Martí de Masarac, Sant Climent, junt al riu Anyet, Sant Esteve de Cantallops, Santa Maria de R uesens, Sant Martí de Baussitges, Sant Genís, vora el riu Orlina, Sant Julià de Rabós, Sant Jaume d’Espolla i Santa Maria de Tornavells. En aquestes esglésies constituïren parròquies i després hi feren cel·les de sants, i en aquestes parròquies tingueren i jutjaren tot el que ha estat dit segons la seva voluntat. Igualment veiérem, oírem i fórem presents quan el gloriosíssim Lluís, fill del senyor Carles, emperador, vingué a combatre tots els sarraïns que eren a Barcelona, i un cop conquerida aquesta, allí donà al pare del dit comte Alaric el domini sobre tot Catalunya. I veiérem i oírem i hi érem pr ents quan el dit Lluís manà i digué, ordenant l’esmentat comte: “no toquis, ni prenguis, ni tampoc jutgis cap afer dels béns i honors de l’esmentat castell de Sant Quirc i Sant Andreu, perquè és heretat del fisc del meu pare, sinó que el mantinguis i el protegeixis com si fossin béns propis del fisc del meu pare”. Ho tingueren i posseïren i jutjaren en bona pau, tot el damunt dit erm i conreu, prats, pastures, boscs, garrigues, aigües i dret d’aigües, molins i m inàrs, dret de pescar, roques, pedres, fonts, pla i muntanya, viaductes i recs. Tot això, tota qualsevol cosa que pogués ésser vista dins els confins i te es de tots els susdits llocs, ho tingueren per més de quaranta anys, i de rés tot el damunt dit lliurement ho donaren a l’esmentat monestir i als qui allí visquessin en vida monàstica. I vist per nosaltres encara en foren senyors possessors després de la seva mort, per més de deu anys. I així vingué el dit Alaric, comte, i els desposseí injustament i contra llei i exto ionà amb moltes exaccions, jutjant i arrabassant injustament els homes que poblaven tots els llocs esmentats, i avui més (…) totes les susdites pa òquies amb els seus confins, adjacències i termes a dit Guiemund, monjo, i al seu monestir, i també als qui allí viuen en vida monàstica, per obtenir fruits, per regir i jutjar sense intervenció de cap altre home vivent”. No ltres, els damunt dits jutges, preguntàrem al dit Alaric, comte, si volia o podia posar alguna bona raó contra aquests testimonis que invalidés això que havien testificat. I el comte Alaric així respongué: “No puc posar cap raó contra aquests testimonis”. I nosaltres, els susdits jutges, conjuntament i amb diligència, indagàrem, per aquest motiu, la veritat de l’afer. Esco ades les raons, al·legacions i la renúncia feta després, donàrem aquesta se ència definitiva: “Que el dit comte Alaric restitueixi plenament al dit monestir de Sant Quirc i Sant Andreu i als seus monjos, tant presents com futurs, el dit castell de Toló, amb els confins, els termes i les seves adjaències, i que tinguin l’erm i el conreu, tot el que es vegi dintre els confins, termes i adjacències de tots els llocs esmentats, i ho posseeixin i jutgin i ho tinguin per alou perpetu del fisc de l’emperador o del rei, tot això esmentat, sense cap retenció de servei, judici i justícia que allí, en tots els susdits llocs, el dit comte o qualsevol altre no ho tinguin ni se n’apropiïn per cap causa. Igualment, que restitueixi el triple de tots els béns mobles que hagi rebut en tots els susdits llocs, per la força o voluntàriament, o per qualsevol altra raó que es pugui demostrar com a certa i vera, en presència de l’esmentat Gotmar, bisbe, quan sigui present al monestir”. Aquesta sentència fou d ada a la ciutat de Tolosa, al dit monestir de Sant Sadurní, a vint-i-quatre de maig de l’any quart del regnat del senyor Carles, rei.
Gotmar, bisbe de Girona. Signatura d’Enric, comte de Poitou. Signatura de Gauter, comte de Bordeus. Pere, arxilevita de Sant Esteve de Tolosa. Pere, jutge ordinari de la cúria del rei. Nosaltres, jutges, per manament de Carles, rei, donem i corroborem aquesta sentència. Signatura de Gausfred de Castellnou. Signatura de Galceran d’Avaltí. Signatura d’Eimeric, castellà del castell de Toló, que anomenen Peralada. Signatura de Somarell, prevere. Signatura d’Hug, prevere. Signatura de Falcuc, prevere. Signatura de Solomó, prevere. Signatura de Rodolf. Signatura de Novell. Signatura d’Eribert. Signatura de Sanç. Signatura de Climent. Signatura de Robert. Nosaltres, testimonis presentats en aquesta causa, confirmem la sentència donada. Signatura de Geribert, senyor de Tarragona. Signatura d’Eimeric, senyor de Narbona. Signatura de Bocard de Portaclusa. Signatura d’Esquiu de Cabestany. Signatura d’Umbert d’Aguda. Signatura de Folc de Sant Martí, testimonis d’aquestes coses. Iler, prevere i escrivà públic a la ciutat de T osa, al burg de Sant Sadurní, pregat pels esmentats jutges ho escrigué el dia i any prefixats. Gotmar, bisbe de Girona, feu segellar la damunt escrita sentència. Servent de Déu, jutge ordinari de Carles, rei, igualment ho féu."
(Trad.: Albert Benet i Ciarà)
El procurador del monestir, el monjo Guiemund, digué que el seu pare i el seu oncle havien aprisiat el terme del castell de Toló, que després fou anomenat Peralada, i que havia estat confirmat per un precepte de l’emperador Carles, la qual cosa negava el comte Alaric. A manca del document de l’emperador, que degueren perdre en alguna de les incursions sarraïnes produïdes de rés del pas de Girona i Barcelona al domini franc, o durant la revolta d’Aissó —ni el bisbe de Girona no el conservavaè—, aleshores presentaren testimonis vàlids, que per separat declararen el mateix. Únicament que en presentar aquest document en un judici posterior, hi introduïren algunes interpolacions. La de la intervenció del rei Lluís el Piadós ho és clarament, així com algunes de les signatures; no és tan clara la referència a una antiga ocupació del lloc per uns sarraïns, la qual, si bé és estranya, no és descartable del tot. (ABC)
Després d’aquest fet es produeix un lapse de més de vuitanta anys sense que hom tingui notícies documentals del monestir, la qual cosa pot ésser motivada per una devastació del territori, que podria ésser la de Guillem, fill de Bernat de Septimània, qui, des de l’any 847 al 850, devastà els territoris dels comtats de Barcelona, Girona i Empúries. Així, a partir de l’any 927 recomencen les notícies del monestir, quan hom parla d’un abat anomenat Manuel, que protagonitzà l’inici d’un període d’engrandiment i pro eritat per al cenobi. Del mateix any esmentat són la donació d’una vinya al monestir de Sant Quirc de Colera i al seu abat Manuel i una altra escriptura traslladada l’any següent.
L’any 931 els executors testamentaris del comte Gausbert d’Empúries-Rosselló lliuraren al cenobi uns importants alous que el comte havia llegat. Comprenien algunes valls de la serra de l’Albera i arribava fins a la mar: “…quantum ipse habebat in Clerzellos, seu in valle Frexano et in valle Collera…”.
L’any 935, el bisbe Guiu de Girona, a precs de l’abat Manuel, consagrà l’església del monestir dedicada a sant Quirze, sant Andreu i sant Benet, que havia estat reedificada. En el text s’indica que hom enderrocà parts inútils de l’església fins als fonaments i es mantingueren les parts aprofitables; es parla dels ornaments reparats, dels canals i de les construccions útils reformades, de les campanes i les robes refetes amb el propi treball. Hi figura també que l’església havia estat reedificada per l’abat Manuel gràcies a la munificència de Galí, Ramon, Tassi i altres fidels: “Nimirum fideles quosque comperientes serie tota mentibus devotis de propriorum acceptione propria voluntate largiti sunt munera. G indus videlicet, Raimundus et Tassio cum ceteris fidelibus religiosis…” A continuació són fixats els límits del terme del cenobi i de les terres que foren donades pel comte Gausbert.
Ambdues possessions representaven el domini de l’abadia sobre un territori extens —la consolidació del seu terme jurisdiccional— que s’estenia per l’Albera i que comprenia, ja en aquest moment, el tram de litoral que, aproximadament, coincideix amb el que avui pertany als municipis de Portbou i Colera.
Per aquesta acta podem deduir que la important dotació de Gausbert havia estat atorgada el 9 de gener de l’any 928.
El comte Gausfred, fill i successor de Gausbert, confirmà i segurament amplià força les donacions del seu pare al monestir entre els anys 965 i 966, en temps de l’abat Guillem. El mateix comte l’any 977 cedí al cenobi un alou a l’Albera, situat al coll del Torn, a les valls des Leocarcari, que també venia a completar les possessions dels monjos a la rodalia.
També sembla important la donació feta pel comte Gausfred al monestir, en el testament de l’any 989, que incloïa alous que completaven el territori a les terres properes de l’Albera: “et ad domum Sancti Chirici cenobii, ipsa mea valle que dicunt Fraxano, qui est inter loca et ipsas portas et ipsa revoria de Luba et ipsas vineas qui sunt inter collo de Spilius et Fraxano, quod Agudinus plantavit cum fratribus suis”.
Aques text fa referència, entre d’altres indrets propers, al coll dit avui de Banyuls, abans d’Espills —actual topònim Pils— (Spilius) i a la vall de Freixe de l’actual terme municipal d’Espolla, que cal no confondre amb la vall de Freixe, homònima per tant, del document de Gausbert del 931 que s’identifica amb l’actual vall de Garbet, oberta al mar, al terme de Colera.
Sant Quirc de Colera fou, juntament amb Sant Pere de Rodes i Santa Maria de Roses, un dels monestirs que foren decididament protegits i dotats amb esplendidesa pel comte Gausfred —seguint una política ja iniciada pel seu pare Gausbert—, durant el seu llarg govern, de trenta anys. No hi fou gens aliè Sunyer, bisbe d’Elna, germà de Gausfred. En el protagonisme de la casa comtal d’E úries-Rosselló en la consolidació monàstica que exigia la conjuntura político-religiosa, no és un fenomen gens estrany la renovació i reconstrucció de monestirs fundats en època anterior.
L’any 1012 se celebrà un judici públic davant les portes de l’església de Sant Martí de Peralada, on fou dictada sentència a favor dels interessos de l’abadia de Sant Quirc i contra el vescomte Dalmau. El vescomte hagué de reconèixer que havia ocupat sense dret el vilar d’Abellars (Abiliarios), les restes del qual són a l’actual municipi de Cantallops. Es veié obligat a restituir-lo a l’abat Amblart que havia acudit al comte Hug d’Empúries en petició de justícia.
De l’abat Amblart hi ha una altra notícia de l’any 1019, quan figura en l’acta fundacional o de reforma de la canònica de la seu de Girona.
D’un lot de documents que procedeixen de l’arxiu de Sant Pere de Besalú, com a pertanyents a Sant Quirc de Colera, redescoberts fa pocs anys, se’n poden extreure notícies interessants. Cal destacar especialment l’escriptura del darrer quart del segle XI —datable entre el 1078 i el 1091— d’alous propis del monestir amb els noms dels cavallers que els tenien en feu. Veiem que les molt nombroses propietats que hi són anomenades s’estenien majoritàriament pel vessant empordanès de l’Albera i les terres properes del comtat de Peralada; n’hi ha també algunes al vessant de tramuntana de l’Albera, al comtat de Rosselló, especialment als termes actuals d’Argelers i Banyuls, a més d’uns pocs alous al Vallespir i a Besalú. Entre els cavallers que posseïen alous en feu de l’abadia de Sant Quirc hi ha Guillem Ramon, que hi és an enat vescomte “castri Birtini”, un esment primerenc del ve omtat de Rocabertí. Unes altres notícies del personatge l’anomenen vescomte de Verges o de Peralada. També hi figura Dalmau Berenguer, el qual, com a hipòtesi, es podria identificar amb el germà i successor de l’anterior. També identifiquen entre els feudataris de l’abadia els comtes Hug II d’Empúries i Guislabert II de Rosselló, Pere Ramon de Canet, i el vescomte de Tatzó, entre d’altres cavallers. De molt, el vescomte Guillem Ramon era de tots ells, qui tenia més possessions en feu del cenobi.
L’octubre de l’any 1091 l’abat Pere, de Sant Quirc, i els seus monjos assistiren, junt amb altres nombroses dignitats eclesià iques i civils, al judici que fou celebrat a l’església de Santa Maria de Castelló per resoldre un litigi entre els monestirs de Banyoles i de Sant Pere de Rodes sobre el domini de quatre esglésies del pagus de Peralada.
Al començament del segle XII hi hagué un nou plet entre el monestir i la casa vescomtal. El vescomte Dalmau Berenguer, senyor de Quermançó, Rocabertí i Peralada, hagué de reconèixer que havia usurpat unes terres de la parròquia de Sant Jaume d’Espolla que pertanyien a l’abadia de Sant Quirc, que aleshores regia l’abat Berenguer. Jeroni Pujades donà notícia del document al segle XVII; Francesc Monsalvatje ha assenyalat la seva datació l’any 1110.
L’esmentat abat Berenguer assistí al sínode celebrat a la catedral de Santa Eulàlia d’Elna on es tractà de la possessió de l’e lésia de Sant Pere de Torrelles que es discutia entre els monestirs de Sant Miquel de Cuixà i Santa Maria d’Arles. També fou present en la consagració de l’església de Sant Andreu de Sureda el novembre de l’any 1121.
En temps d’aquest abat, l’octubre de l’any 1123, se celebrà una nova consagració a Sant Quirc de Colera. El bisbe Berenguer de Girona, en presència d’Arnau, bisbe de Carcassona, de Pere, bisbe d’Elna i de molts altres personatges, religiosos i laics, consagrà l’església: “…que sita est in pago Petralatensi in honore sancti Cirici et sancti Andree sanctique Benedictí”.
Acta de consagració de l’església de Sant Quirc de Colera (935)
"Cum profutura Domino annuente sanctis divulgata est sublimitas in apo olorum firmatione ortodoxorum caterva universorum prolata est gloria d atata est sophia confirmata est eclesia ut hii qui in eisdem consistunt r imine multiplicentur honore. Conspicientibus his qui catholice firmantur viscera ut in futuro cum agminibus sanctis propter intentionem obsequii helectorum vite adipiscat premia. Quapropter anno incarnationis Domini nostri Jesuchristi DCCCCXXXV indicione VIII accidit adventus episcopi pr rii sedis Gerundensis eclesie domini Wigoni videl cet cum plerisque supl ationibus proprii abbatis Manuel eclesiarum sancti Cirici sancti Andree et sancti Benedicti reedificatione sumpsit exordium. Subsequens profecto a atibus prioribus qui eisdem sepe familiaritate acti sunt qui funditus ab e lesiis inutilia dejecit et reparationis copie ornamenta reparavit caucibus et petris utilitas reformavit lucris quibus imperavit signorum pallioroum et un ersorum opibus proutquivit laboribus propriis hostavit. Ideoque intuendus perspiciens proptius episcopus prelibatus ab abbate proprio nominato r atus adhesit et æclesiarum notatione devota ante benedictione adepta consecravit hujus facta. Nimirum fideles quosque comperientes serie tota me ibus devotis de propriorum acceptione propria voluntate largiti sut munera. Galindus videlicet Raimundus et Tassio cum ceteris fidelibus religiosis unde et ego humilis episcopus Wigo regimen tenens sanctae Mariae episcopii ce ens tanta beneficia detuli ad sanctas eclesias notatas decimarum quoque et primiciarum copia quibus continentur hæc terminia. Ab ipsa calmilia ad r am Taradellaria et inde pervenit usque ad collum de collaria et descendit usque ad ipsum ribulum qui inde discurrit. Deinde ascendendo ascendit usque ad collum delfianensi. Deinde pervenit ad collum Trosovario et de endit per terminum maurescegens, atque pervenit ad ipso villare de co arato. Indeque pergendo pervenit ad strata qui pergit ad alfianos sive rabidoso. Deinde ascendit per ipsum terminum de vilare que dicunt Guad iro et ascendit ad ipsum pugium de Galindo sive ad ipsa archa et ascendit ad ipsum pugium quem nuncupant mediano vel ad ipsas accutas indeque pervenit ad montem latum sicque ascendit ad ipsas cabannas que dicunt Adaulfo et descendit ad ipsum collum de balneolis et inde ascendit ad… urium de lupis et villare de clerzels et valíem frexani et valíem quam vocant colera cum ipsa guardia de mauris et ipsos portos que pertinent ad jamdictas valles que autem omnia dedit Gaucbertus comes prelibato cenobio propter remedium anime sue totum ab integro cum omnibus finibus vel adjacentiis suis quorum termini sunt isti de parte orientis in suo proprio mari terminatur preditum mare cum suis portis ab illo capite de dremone usque ad capud latronis et inde vadit et pervenit usque ad colum de marvano et ascendit inde de parte meridia per ipsam serram que dicitur frexani vel ad ipsum surellia… vel ad ipsa serra quam vocant bistrigones de occiduo in ipsa roch… terminio sancti Stephani monasterii de Balneolis de circio vero afrontat in jam dicta rochia taradellaria vel ipso pugio quod vacant monte petrosum vel in terminio de jam dicto monasterio sancti Cirici vel ad ipsam paradam quam vocant de eliano et pergit per ipsa serra usque in profundo mari vel ad ipsum caput de dremone totum ab integro cum omnibus finibus vel adjacentiis suis ut ammodo et deinceps teneant possideant jure perhenni et inviolabiliter permaneant ab his datis semper omni tempore et ut firmius habeatur et inconvulsa permaneat absque ullo impedimento ex omnibus h inibus manu propria subter firmare studui et… acta roboravi. Redibici es quoque istius cenobii non formidetur nisi ab episcopo proprio secundum canonica auctoritate et regula proprii abbatis et monachorum veneranter. Decime quas habebant dudum æclesie iste propri abbatis et monachorum copia maneat illis deinceps potestas firmata. Data V. idus januarii anno VI regnante Radulfo rege. + Wigo sancte Gerundensis æclesie humilis epi opus. Sonifredus archilevita. Ennego archilevita Gondemarus levita. E enricos levita. Oriolus presbiter. Ervigius levita. Guido subdiaconus. Bera. Suniefredus. Tassius. Galindo presbiter. Sermoigius presbiter. Iter presbiter. Majus presbiter. Adaulfus. Ato. Leufredus presbiter qui hanc d em rogitus scripsit et + die et anno quo supra."
Francesc Monsalvatje i Fossas: Noticias históricas, vol. VIII, XXX.
Traducció
"Mitjançant el voler del Senyor, ha estat divulgada pels sants l’eterna gra esa; sobre el fonament dels apòstols s’ha estès la multitud dels qui arreu professen la fe veritable; s’ha escampat la saviesa, s’ha consolidat l’Església, de manera que aquells que segueixen les seves normes veuen acrescut el seu honor. Això cal que ho tinguin present aquells que estan arrelats a les entr yes de l’església universal de manera que, intensificant les ofrenes, assoleixin en el futur el premi de la vida dels elegits juntament amb els estols dels sants. Per això l’any 935 de l’encarnació de nostre Senyor Jesucrist, indicció vuitena, s’escaigué la visita del bisbe de la seu de Girona, el senyor Guiu per les nombroses súpliques de l’abat Manuel que emprengué la recon rucció de les esglésies de Sant Quirc, Sant Andreu i Sant Benet. En succeir els abats anteriors que havien tingut amb ell un tracte assidu tragué de soc el les coses inútils de les esglésies i les reparà amb gran nobre d’orname acions, en restaurà l’ús amb carreus i pedres, i amb els recaptes que ordenà, així com amb el seu propi treball, les agençà d’imatges, de casulles i de totes les coses necessàries. En veure això, l’esmentat bisbe en persona s’hi adherí, pregat per l’abat damunt dit, i havent examinat devotament les esglésies, després de donar la benedicció consagrà aquestes obres. Alguns fidels per la seva banda, en comprovar totes aquestes coses, amb esperit de devoció i per pròpia voluntat oferiren donacions dels seus propis béns. Aquests són Galí, Ramon i Tassi junt amb altres pietosos fidels. Per això jo, Guiu, bisbe humil que governa el bisbat de Santa Maria, veient tan grans beneficis, he concedit a les santes esglésies esmentades tots els delmes i primícies que s’originen dintre d’aquests termes: des de la calma fins a la roca de Taradella i d’allà va fins al coll de Colera, i davalla fins al rierol que passa per allà. Després, pujant, s’enfila fins al coll de Delfià. D’allà va cap al coll de Trovar, davalla pel terme de Moroseugues i arriba fins al vilar de Comparat. D’allà continua fins al camí que mena a Delfià i Rabós. Després puja pel terme del vilar anomenat de Guadamir i s’enfila cap al puig de Galí i a l’arca i arriba fins al puig que anomenen mitjà i a les agudes, després va cap al mont ample, puja cap a les cabanes que en diuen d’Adaulf, davalla cap al coll de Banyuls i d’allà puja cap al lloc on s’apleguen els llops i al vilar de Clerzells, i a la vall de Freixe i la vall anomenada de Colera i la guàrdia dels moros i als ports que pertanyen a les esmentades valls. Totes aquestes coses les donà el comte Gausbert a l’esmentat cenobi per a remei de la seva ànima, tot íntegrament amb tots els seus límits i adjacències i amb els seus termes que són aquests: per la banda de llevant amb el mateix mar; te eneja amb el susdit mar amb els seus ports des del cap de Dremó fins al cap del Lladro, d’allà va fins al coll de Marvà i per la banda de migdia puja per la serra anomenada de Freixe fins als Surells… i a la serra que en diuen dels dos triangles; pel cantó de ponent termeneja amb la roca… al límit del monestir de Sant Esteve de Banyoles; pel cantó de tramuntana limita amb l’esmentada roca de Taradell, amb el puig que anomenen mont Pedrós i amb el límit de l’esmentat monestir de Sant Quirc, amb la parada que en diuen d’Elià i continua per la carena fins al fons del mar al cap de Dremó. Ho concedeixo tot íntegrament amb tots els seus termes i adjacències pe uè d’ara endavant ho tinguin, ho posseeixin de ple dret per sempre, i d’una manera inviolable puguin residir-hi en tot temps des d’aquesta donació. I per tal que això sigui mantingut en ferm i romangui intocable sense imp iment per part de cap persona, ho he volgut sotseriure amb la meva pròpia mà i… he corroborat el document. A més, les rendes d’aquest monestir no han de sofrir cap temor llevat de la intervenció del mateix bisbe d’acord amb l’autoritat canònica i la regla de l’abat i dels monjos amb tot el respecte. Els delmes que abans tenien aquestes esglésies aplegats per l’abat i pels monjos que continuïn pertanyent-los un cop confirmada la potestat.
Donat el dia cinquè dels idus de gener de l’any sisè del regnat del rei Radulf. Guiu bisbe humil de la santa església de Girona. Gonifred, arx evita. Ènnec, arxilevita. Gondemar, levita. Ermenric, levita. Oriol, pr ere. Ervigi, levita. Guiu, sotsdiaca. Berà. Sunifred. Tassi. Galí, prevere. Sermoïgi, prevere. Iter, prevere. Majó, prevere. Adaulf. Ató. Leufred, prevere, que ha escrit, a petició, aquesta dotació i l’ha subscrita el dia i l’any esmentats."
(Trad.: Joan Bellès i Sallent)
A petició del comte Ponç d’Empúries, del vescomte Dalmau Berenguer i d’altres nobles, el bisbe confirmà les possessions antigament concedides al monestir, de la mateixa manera que ho havia fet el seu antecessor Guiu, i concedí els delmes, primícies i oblacions dels fidels. Es precisen els límits del territori jurisdi ional del cenobi, fent constar la dotació del comte Gausbert de manera pràcticament idèntica al text de l’acta de l’any 935, només amb insignificants canvis de grafia en algun topònim. A continuació hom fa al·lusió a les terres que havia cedit el comte Gau red l’any 977.
En l’acta de consagració es fa referència molt concreta a l’e lésia de Santa Maria, situada davant les portes del monestir i es fa constar que l’altar d’aquest temple és traslladat a l’església de Sant Quirc on es procedeix a consagrar-lo: “Altare quoque sancte Marie quod fundatum fuerit in ecclesiola ante ianuas ipsius monasterii in ecclesiam sancti Cirici translutimus et in honorem sancte Marie consecravimus…”.
D’aquesta explicació sembla desprendre’s que el motiu principal de l’acte —a part els molt probables político-econòmics, de redreçament o afermament dels interessos de la comunitat monàstica— fou la consagració de l’altar de Santa Maria. Sembla obeir a l’inici de l’obra d’un nou temple de Santa Maria, ja que així s’explica el trasllat dins l’església de Sant Quirc del seu altar, per a consagrar-lo. Segons Antoni Pladevall l’església de Santa Maria de Colera devia ésser novament consagrada l’any 1135. Cal suposar, doncs, que devia ésser construïda aproximadament entre els anys 1123 i 1135. No és impossible, tanmateix, que en aquest moment hom consagrés uns nous altars de la basílica monàstica i, al mateix temps, el de Santa Maria. Cal tenir en compte que la capçalera i una bona part de l’estructura d’aquesta basílica de Sant Quirc, pels trets arquitectònics, poden ésser considerades de mitjan segle XI.
És interessant la doble al·lusió que es fa en aquesta acta de l’any 1123 d’un precepte reial que havia estat concedit al monestir, en confirmar els béns “quae antiquitus concessa sunt atque collata jam dictae ecclesiae Sancti Cirici a regibus et comitibus sive aliis bonis hominibus et a predecessore nostro Guigone episcopo, sicut in alia dote et preceptis regalibus resonat…”.
Ramon d’Abadal, convençut que el text del judici de l’any 844 que al·ludeix a un diploma de Carlemany és una “falsificació ev ent”, suposà que el precepte esmentat l’any 1123 fou recaptat per l’abadia del rei Carles el Simple l’any 922, quan el bisbe Guiu acudí a la cort i obtingué diferents instruments reials. També ha estat remarcat que el precepte no és anomenat per res en l’acta de consagració de Sant Quirc de l’any 935, feta precisament pel bisbe Guiu, la qual cosa pot indicar que el precepte fou recaptat en una data indeterminada, posterior al 935.
Acta de consagració de l’església del monestir de Sant Quirc de Colera (1123)
"Anno Dominice Incarnatione C. vigesimo tercio post millesimum ind ione I. venit domnus Berengarius gratia Dei sancte Gerundensis ecclesia episcopus cum reverentissimis ac nobissimis viris videlicet domno Arnallo Carcassonensi et Petro Helenensi episcopis et eum aliorum multorum h inum caterva tam clericorum quam et laicorum ad consecrandam eccl iam que sita est in pago Petrajatensi in honore sancti Cirici et sancti Andree sanctique Benedicti. In qua nimirum consecrationis die ego jam dictus B enguerius humillimus episcopus precibus ete supplicationibus magnatum scilicet domni Poncii Ugonis hujus territorii comitis et Dalmacii Berangarii vicecomitis necnon et aliorum multorum hominum laudo et confirmo omnia que antiquitas concessa sunt atque collata jamdicte ecclesie sancti Cirici a regibus et comitibus sive alliis bonis hominibus et a predecessore nostri Gu one episcopo sicut in alia dote et preceptis regalibus resonat. Dono etiam prefate ecclesie decimus et primicias et oblationes fidelium que execut et continentur infra subscribendos terminos scilicet ab ipsa calmilia usque ad rocham taradellariam et inde pervenit usque ad collem de colera et decendit usque ad ipsam rivulum qui inde discurrit. Deinde ascendendo ascendit u ue ad collem daltianensem et inde pervenit ad collem de trasovario et de endit per terminum maurescegensem atque pervenit ad ipsum villare de… arato. Indeque pergendo pervenit ad stratam que ducit ad dalfianum sive rabidosum. Deinde ascendit per ipsum termimum de villare quod dicunt guadamirum et ascendit ad ipsum podium de galindo sive ad ipsam rocham et ascendit ad aliam podium quod nuncupatur medianum sive ad ipsas a utas et ex inde pervenit ad montem latum sicque ascendit ad ipsas cabannas quas dicunt Adaulfi et descendit ad ipsum collem de balniulis et inde a endit ad digestorium de lupis et villare de clerzels et vallefrexani et valle quam vocant colera cum ipsa guardia de mauris et ipsos portos qui pertinent ad jam dictos valies que autem omnia dedit Gaucbertus comes prelibato cenobio propter remedium anime sue totum ab integro cum omnibus finibus vel adjacentiis suis quorum terminini sunt isti de parte orientis in sue proprio mari. Terminatur autem predictum mare cum suis portis ab illo capite de dremone usque ad capud latronis… vadit et pervenit usque ad calam de marvano et ascendit inde de parte meridie per ipsam serram que dicitur frexani usque ad ipsum surellum vel in ipsa serra quam vocant de bis tr ones. De Occiduo in ipsa rocha vel in ipso terminio sancti Stephani monasterii de Balneolis. De circio vero afrontat in jamdicta rocha taradellaria vel in ipso pugio quod vocant montem petrosum vel in terminia de jamdicto monasterio sancti Cirici vel ad ipsam paradam quam vocant de heliano et pergit per ipsam serram usque in profundo mari vel ad ipsum jam dictum capud de drenione totum ad integro cum omnibus finibus vel adjacentiis suis. Preterea sub ecclesiastica tuicione ac defensione pontificali auctoritate ponimus atque constituimus omne allud alodium quod Gaucfredus comes condam dedit prelibato cenobio sancti Cirici et sancti Andree sanctique B edicti sicut in scriptura donacionis quam ipse fecit eidem ecclesie resonat que sic continetur. Dono ego Gaufredus comes cenobio sancti Cirici de al e meo proprio quod est in comitatu petralafensi in suburbio castro tolone et infra terminos vel fines prenominati monasterii sancti Cirici in cacumine ipsorum montium et in loco quem dicunt ad ipsumternum infra ipsam ca iliam et digestorium de lupis sic dono ipsas artigas que ibidem sunt totas ab integro sepedicto cenobio et afrontat ipsum alodium a parte orientis in ipso rivulo qui pergit ad ipsam rumicem vel in ipso curtale quod est in capite de ipsaruira et pervadit per ipsam serram ad ipsum fictorium et pervadit ad ipsas laceras. A parte meridiana afrontat sursum in ipsa calmilia et pervadit ad ipsum ternum. Ab occidentali etiam parte afrontat in cacumine montis quem vocant digestorium de lupis. A parte vero circii afrontat in ipsa serra de lupo spinoso et sic pervadit ad ipsam olelam. Quod etiam domnus S iarius episcopus laudavit adque firmavit. Nos itaque Berengarius geru ensis episcopus Petras clenensis episcopus Arnallus carcasonensis episc us pontificali sulti auctoritate qui ad consecrationem humillimis precibus Berengarii religiosi viri ejusdem cenobii abbatis venimus sub ecclesiastica tuicione defensione ac municione ponibus jam dicta omnia que huic m asterio pia devocione sunt et erant collata ita ub hodierna die et deinceps jure perhenni teneant et possideant habitatores pretitulati cenobii hec o ia secure et quiete omni tempore sine inquietudine et absque impedimente ullius hominis vel femine. Redibiciones quoque et exactiones ullas ab ipso cenobio alique persone non requirant nisi Gerundensis episcopus secundum cannonicam auctoritatem et regulam sancti Benedicti Decimas et primicias et oblationes fidelium quas usque… habuit et tenuit prefatum monasterium ei asserimus observamus atque concedimus cum illis etiam decimis et pr iciis et oblationibus que exeunt vel exire debent ex prenominatis alodiis que Gaucefredus comes concessit jamdicto monasterio. Altare quoque san e Marie quod fundatum fuerat in ecclesiola anate januas ipsius monasterii in ecclesiam sancti Cirici transtulimus et in honorem sante Marie consecr imus ut ibi a monachis et ab omni populo honorabilius habeatur et teneatur perhenniter. Acta sunt II Kalendas octobris anno XV regni Ledovici regis. + Berengarius Dei gratia Gerundensis ecclesie episcopus. + Arnallus ca assensis episcopus. + Petras elenensis episcopus. + Poncius monachus presbiter. + Petras monachus presbiter. + Berdardus monachus presbiter. + Bernardus monachus presbiter. + Petras monachus presbiter. + Petrus monachus. + Berengarius monachus. + Arnallus monachus. + Raimundus Arnalli presbiter monachus. + Petrus presbiter. + Bernardus Berengarii. + Arnallus presbiter et monachus. + Berengarius sancti Felicis abbas et petralatensis archilevita. + Ista suprescripta Bernardus firmo sacrista. + Arnallus Johannis sacrista secundus. + Berengarius caputscole sedis G undensis. + Petras presbiter qui hoc rogatus scripsi sub + die et anno quo supra."
Francesc Monsalvatje i Fossas: Noticias históricas, vol. VIII, cap. XXXI, pàgs. 188-191.
Traducció
"L’any 1123 de l’encarnació del Senyor, indicció primera, vingué el senyor Berenguer, per la gràcia de Déu bisbe de la santa església de Girona, co untament amb els molt reverends i molt nobles barons el senyor Arnau, bisbe de Carcassona, i el senyor Pere, bisbe d’Elna, amb un seguici de molts altres homes, tant clergues com laics, per consagrar una església situada al pagus de Peralada, en honor de sant Quirze, Sant Andreu i sant Benet. Ju ament en el dia de la consagració, jo, l’esmentat Berenguer, humil bisbe, mogut pels precs i les súpliques dels prohoms, el senyor Ponç Hug, comte d’aquest territori, i Dalmau Berenguer, vescomte, com també de molts a res homes, aprovo i confirmo totes les coses que des d’antic foren conc ides i conferides a l’esmentada església de Sant Quirc pels reis, els comtes i altres persones de bé, i pel nostre predecessor, el bisbe Guigó, tal com figura en un altre document de dotació i en els preceptes reials. Dono també a l’esmentada església els delmes i les primícies i les oblacions dels fidels que s’originen i queden compresos dins els termes que es descriuen a co inuació: Des de de la Calmella fins a la roca Taradella i d’allà va cap al coll de Colera i davalla fins al riu que passa per allà. Després puja cap al coll de Delfià, d’allà va cap al coll de Traüc, davalla pel terme de Mor eugues i arriba fins al vilar de Comparat. Des d’allà continua cap al camí que mena a Delfià i a Rabós. Després s’enfila pel terme del vilar anomenat Guadamir, puja cap al puig de Galí i a l’arca i continua pujant cap a un altre puig que anomenen mitjà i cap a les Agudes, d’allà va cap al turó ample i així puja fins a les cabanes que en duien d’Adaulf, davalla cap al coll de Banyuls, s’enfila cap al lloc on defequen els llops, el vilar de Clerzells i la vall de Freixe i la vall que anomenen de Colera amb la torre dels moros i els ports que pertanyen a aquestes valls. Totes aquestes coses les donà el comte Gausbert a l’esmentat cenobi per a remei de la seva ànima amb tots els seus termes i adjacències. Els termes són aquests: Pel cantó de llevant, fins al mateix mar. El mar fa de terme amb els seus ports des del cap de Dremó fins al cap del Lladro… va i arriba fins al coll de Marvà, d’allà puja pel cantó de llevant cap a la serra que s’anomena de Freixe fins al Surell i a la serra que en diuen dels dos triangles. Pel cantó de ponent termeneja amb la roca i el terme de Sant Esteve del monestir de Banyoles. A tr untana limita amb l’esmentada roca Taradella, el puig que anomenen puig Pedrós, els confins de l’esmentat monestir de Sant Quirc, la parada que en diuen d’Helià, i continua per la serra fins que s’endinsa en el mar al ja esmentat cap de Dremó; tot això íntegrament, amb tots els seus termes i adjacències. A més posem sota la tutela eclesiàstica i la protecció de l’a oritat pontifical tot aquell alou que el difunt comte Gausfred donà a l’e entat monestir de Sant Quirc, Sant Andreu i Sant Benet, tal com figura en el document de donació que ell feu a aquesta església i que diu així: jo, Gausfred, comte, dono al cenobi de Sant Quirc un alou que tinc en pr ietat al comtat de Peralada, suburbi del castell de Toló i dins els termes i confins de l’esmentat monestir de Sant Quirc, al cim de les muntanyes, al lloc que en diuen el term entre la Calmella i el lloc on defequen els llops; així dono íntegrament a l’esmentat monestir totes les artigues que hi ha. El terme de l’alou per la banda de llevant és el riu que va cap al bardissar i el cortal que hi ha al començament de la roureda, i va per la serra cap al Fitor i arriba fins a les llaceres. Per la banda de migjorn termeneja per dalt amb la Calmella i arriba fins al Torn. Pel cantó de ponent limita amb el cim del mont que anomenen el lloc on defequen els llops. Pel cantó de tramuntana limita amb la serra Llop espinós i va fins a l’Olella. La qual cosa també fou aprovada i confirmada pel senyor Sunyer, bisbe. Així, doncs, nosaltres, B enguer, bisbe de Girona, Pere, bisbe d’Elna, Arnau, bisbe de Carcassona, que investits amb l’autoritat pontifical hem vingut a fer aquesta consagració moguts per les humils súpliques del pietós baró Berenguer, abat d’aquest monestir, posem sota l’empara, protecció i defensa de l’Església totes les coses damunt dites que han estat o que seran donades a aquest monestir per pietosa devoció, de tal manera que d’avui endavant els qui habiten aquest monestir tinguin i posseeixin totes aquestes coses amb calma i s uretat en tot moment, sense que cap home ni cap dona els inquieti ni els ho impedeixi. A més, que cap persona no exigeixi rendes ni tributs de cap mena al monestir, llevat del bisbe de Girona, d’acord amb l’autoritat c ònica i la regla de Sant Benet. Els delmes i les primícies i les oblacions del fidels que fins… ha tingut i posseït l’esmentat monestir els hi mantenim, confirmem i concedim juntament amb els delmes i les primícies i les obl ions dels fidels que surten o sortiran dels alous susdits que el comte Gau red concedí a l’esmentat monestir. L’altar de Santa Maria que havia estat fundat en una esglesiola que hi ha davant les portes del monestir, l’hem transferit també a l’església de Sant Quirc i l’hem consagrat en honor de Santa Maria perquè sigui mantingut amb tots els honors per part dels mo os i de tot el poble per sempre. Això ha estat fet el dia segon de les calendes d’octubre de l’any quinzè del regnat del rei Lluís.
Berenguer, per la gràcia de Déu bisbe de l’església de Girona. Arnau, bisbe de Carcassona. Pere, bisbe d’Elna. Ponç, monjo prevere. Pere, monjo prevere. Berdard, monjo prevere. Bernat, monjo prevere. Pere, monjo pr ere. Pere, monjo. Berenguer, monjo. Arnau, monjo. Ramon Arnau, prevere monjo. Pere, prevere. Bernat Berenguer. Arnau, prevere i monjo. Berenguer, abat de Sant Feliu i arxilevita de Peralada. Bernat, sagristà, signa aquestes coses escrites més amunt. Arnau Joan, sagristà segon. Berenguer, cabiscol de l’església de Girona. Pere, prevere, que ha estat pregat d’e riure-ho el dia i l’any abans esmentats."
(Trad.: Joan Bellès i Sallent)
La revalorització del document de l’any 844, que cal acceptar, doncs, almenys pel que fa al judici amb el comte Alaric i a una bona part del que fa referència a la fundació del cenobi, ens ha d’inclinar a considerar que l’any 1123, hom feia al·lusió, efect ament, al diploma concedit per Carlemany abans del 815, als fundadors Libenci i Assenari.
Al nostre entendre, les interpolacions —evidents en algunes parts del text— que ha sofert el document autèntic de l’any 844 també inclouen probablement la relació d’esglésies suposadament erigides i convertides en parroquials pels monjos de Sant Quirc, que abans devien haver repoblat el territori. Són deu esglésies de la vall de l’Albera (Leocarcari), a més de Sant Martí de Peralada. La història posterior del cenobi i d’aquestes esglésies —almenys per les dades que hom en té— indica que l’abadia posseí no roses propietats, efectivament, en terres del comtat de Peralada i sobretot als vessants de l’Albera. Tanmateix, si bé es comprova que tingué drets possessoris sobre alguna d’aquestes esglésies, de la majoria d’elles no és pas així. El fet seria una mica estrany si la sentència de l’any 844 hagués inclòs les esmentades esglésies reconeixent-ne la fundació als monjos de Sant Quirc i confirmantne el domini al monestir. Així, se sap que el grup d’esglésies no és confirmat, ni esmentat per a res, en les dues actes de consagració esmentades. Potser també cal tenir en compte que imm iatament després del paràgraf que fa al·lusió a les esglésies de l’Albera, el document del 844 es refereix a la poc creïble actuació de Lluís el Piados a favor del monestir, el qual, a més, inclou la frase “super totam Cataloniam”. Entenem, doncs, que l’alteració del document original feta al segle XIII comprendria també, molt probablement, la referència concreta a aquestes esglésies de l’A era i a Peralada i els seus església i castell, la qual cosa converteix en molt dubtosa una part important del text.
Un altre element a tenir en compte és la confirmació de les esglésies que dominava el monestir, que figura en una butlla papal del segle XIII de la qual s’ha conservat un trasllat del segle XVI. Hom creu que és del papa Honori III i de l’any 1219, si bé hi ha dubtes de si podria pertànyer a Honori IV i, per tant, datar del final del segle XIII. En aquest instrument són confirmats al cenobi de Sant Quirc els drets sobre les esglésies que en aquell moment posseïa. Dues d’aquestes set esglésies són de difícil identificació: Sant Esteve de Costa i Santa Maria “de insula” (segurament Santa Maria de Colera). Les altres que s’esmenten són Sant Miquel de Colera, Sant Miquel de Freixe, Sant Nazari de Noves, Sant Martí de Baussitges i Santa Maria de “Turniulis”. Només les dues da eres pertanyen a la relació del document de l’any 844. Si aquesta relació fos autèntica, caldria acceptar, doncs, que el monestir, tot i que no sembla haver viscut cap crisi profunda, devia perdre el domini d’un nombre important d’esglésies abans de l’obtenció de la butlla del segle XIII. Aquest fet sembla improbable i de poca lògica.
L’església de Santa Maria de “Turniulis” que apareix citada en la butlla és, evidentment, la mateixa de Santa Maria de “Turn ule” de la relació espúria del document del 844. No es pot r acionar, de cap manera, amb Santa Maria de Colera, ni amb cap altra església empordanesa, ja que es tracta de Santa Maria de Torreneules o de Tornabells, situada al comtat de Rosselló, actual terme d’Argelers, l’única del grup que es troba al vessant de tramuntana de l’Albera. En aquest cas la pertinença a Sant Quirc és ben atestada amb posterioritat. Precisament, els monjos cistercencs de Fontfreda fundaren a Torreneules l’any 1242 el monestir de Santa Maria de Vallbona, després de comprar l’església del lloc i el seu alou a l’abadia de Sant Quirc de Colera.
Poc després de la consagració del 1123 que acabem de comentar, el territori del monestir s’amplià vers tramuntana, pel vessant septentrional de l’Albera. El comte Gausfred de Rosselló l’any 1135 cedí a l’abadia un alou situat al terme de Sant Joan de Banyuls, al lloc dit “Lupespini”. La propietat limitava per ponent amb el territori que ja posseïa el monestir.
L’any 1198 el comte Ponç III d’Empúries confirmà la donació del seu avantpassat el comte Gausfred, de l’any 931.
El mes de març de l’any 1223, l’abat Bernat Guerau signà una concòrdia amb Joan Mullés, senyor de Vilamaniscle, la qual concretava a l’abat i el monestir de Sant Quirc tota la vall de Colera amb els seus homes, dones, censos, ports de mar, fortaleses, etc., pacte que fou aprovat pel comte d’Empúries. Uns quants anys més tard, el 1242, el noble Ramon d’Empúries vengué al susdit abat la vila de Rabós i tot el terme en franc i lliure alou, perpètuament i amb tots els honors, pel preu de 4 280 sous melgoresos. Amb aquesta compra el monestir de Sant Quirc fou senyor directe del terme de Rabós i posseí la facultat d’exercir-hi jurisdicció civil. Aquesta jurisdicció fou confirmada l’any 1246 per una butlla del papa Innocenci IV, la qual també confirmava els drets de l’abadia sobre les esglésies properes de Baussitges i Freixe.
Pere de Castellnou, bisbe de Girona, aprovà i confirmà, l’any 1258, les donacions, concessions, laudacions, aprovacions i confirmacions fetes al monestir de” Sancti Cirici de Colera”, que era regit aleshores per l’abat Pere.
Un altre punt important pel que fa a la puixança del poder temporal del cenobi fou la compra feta al comte Ponç IV, l’any 1255, de tots els masos, les terres, els censos i altres drets que encara tenia a la vall i parròquia de Sant Quirc; aquesta venda fou confirmada i aprovada per Hug d’Empúries, fill de Ponç IV, l’any 1264. El comte, però, es reservà l’alta justícia, dret que fou l’esca de litigis amb el bisbe de Girona, que acabaren però amb una concòrdia signada l’any 1270.
El mes de juny de l’any 1285 el monestir de Sant Quirc de Colera fou testimoni de la invasió de Felip d’Ardit. El rei francès, que amb el seu exèrcit es diposava a penetrar a Catalunya pel coll de Panissars, fou aturat per les tropes del rei Pere el Gran. Davant aquesta dificultat els francesos cercaren un altre pas que, segons conta Ramon Muntaner, fou el coll de la Maçana, perquè era un indret poc vigilat. Sembla que l’entrada els fou facilitada per un personatge que alguns textos contemporanis anomenen “el bord del Rosselló”; per contra, segons Bernat Desclot, fou l’abat de Sant Pere de Rodes, mentre que Muntaner afirma que fou el de Sant Andreu de Sureda.
Tanmateix, el pas de l’exèrcit invasor pel coll de la Maçana fa suposar a d’altres autors que foren els monjos de Sant Quirc els qui facilitaren el pas als francesos. L’exèrcit “croat” acampà al costat del monestir i el rei decidí de romandre-hi vuit dies fins que totes les seves forces haguessin passat el coll i fins que el seu estol hagués ocupat el port de Roses, des d’on havia d’avituallar les tropes invasores. Ramon Muntaner també explica que, quan el rei Pere amb l’infant Alfons, els comtes de Pallars i d’Urgell i els vescomtes de Cardona i de Rocabertí i altres eren a Peralada, reberen un missatge del monestir de Sant Quirc dient que el rei de França hi era amb tota la cavalleria. Els esdeveniments posteriors que acabaren amb l’anihilació de les tropes franceses i amb la mort de Felip l’Ardit ja no afectaren d’una manera directa la història del monestir de Sant Quirc de Colera.
Poc temps més tard, l’estiu del 1288, el cenobi sofrí els efectes d’una nova invasió de Jaume de Mallorca amb un fort contingent de tropes franceses que s’agruparen al monestir, com ho conten els Gesta Comitum Barcinonensium. Quan es produïren aquests esdeveniments, el monestir era regit per l’abat Ramon de Bianya, el qual, per la seva làpida sepulcral, sabem que morí el mes de novembre de l’any 1296. Una altra làpida que s’ha conservat fins avui és la del seu successor, l’abat Berenguer de Vilatenim, que morí l’any 1320. En el seu epitafi trobem altres notícies sobre els estralls produïts per les tropes franceses, ja que s’hi diu que aquest abat reparà en part el monestir, que havia sofert desperfectes per gentem francorum, i que dotà l’església de llànties, llibres i molts ornaments.
El comte Ponç V d’Empúries i el seu fill i hereu, Huguet, vescomte de Cabrera, reconegueren i confirmaren, mitjançant un privilegi atorgat des de Sant Miquel de Fluvià el mes de març del 1303, els drets que l’abadia de Sant Quirc tenia a les parròquies de Sant Julià de Rabós, Cabanes, Baussitges, Colera, etc., i que, per concessió de llurs avantpassats, el monestir era eximit de prestar hosts, cavalcades, tragines, obres, quèsties, serveis forçats, guàrdies i altres serveis feudals. Posteriorment aquest privilegi fou confirmat pel rei Martí. El comte Ponç el mes d’octubre del mateix any 1303, per un altre document, reconeixia que els abats del cenobi posseïen el dret d’exercir jurisdicció civil i criminal a tot el terme de Sant Quirc de Colera i que, per aquesta jurisdicció, gaudien de la facultat de tenir un castell termenat.
L’abat Pere s’hagué d’enfrontar amb l’infant Ramon Berenguer, comte d’Empúries, que havia promogut un plet reclamant la jurisdicció civil de Rabós. La sentència, dictada l’abril del 1349, fou favorable a l’abat.
Hi ha notícia, en aquesta època, de l’abat Donorori, del qual se sap que morí l’any 1356 per la làpida sepulcral que hi havia al monestir que va veure Jeroni Pujades al començament del segle XVII, i que s’ha perdut.
L’any 1375 el monestir adquirí a Ramon de Castellbisbal per 4 000 sous melgoresos, la vall de Freixenet (al nord de Freixe, actual terme d’Espolla) amb els homes i les dones, els dominis directes i les jurisdiccions. A l’esmentat personatge, els dominis en aquest territori li pervenien del llinatge Satrilla-Llançà. El 1278 consta que el comte d’Empúries vengué la jurisdicció de Baussitges a Berenguer de Llançà i d’aquest passà al seu gendre Simó Satrilla a qui, l’any 1284, la comprà el monestir de Santa Maria de Vallbona. Al segle XIV els Castellbisbal entroncaren amb els Satrilla-Llançà; sembla que aquest Ramon de Castellbisbal havia heretat els drets sobre aquesta rodalia del seu germà Bernat (àlies Berenguer De Llançà), l’any 1365.
En temps de l’abat Guillem (1390-1399) el comte Joan d’Empúries feu una donació al monestir, qualificada d’important per Francesc Monsalvatje. Aquest abat, el mateix any, presidí en relresentació del bisbe de Girona el trasllat de les monges augustinianes de Sant Bartomeu de Bell-lloc des d’aquest cenobi a la nova casa de la vila de Peralada.
El 30 de setembre de l’any 1392 el donzell Berenguer Sord, de Vilanova de la Muga, vengué al monestir el lloc de Mollet (de Peralada) en lliure i franc alou, per 25 000 sous. L’any 1461 hi ha notícies de la “casa de l’abat” d’aquest lloc de Mollet, la qual, juntament amb unes terres, fou establerta al batlle que hi tenia el monestir.
Del segle XV són les primeres notícies de la progressiva decadència del cenobi, provocada, en gran part, pel nomenament d’abats comendataris, que com que no residien als monestirs no es podien ocupar de fer complir la disciplina. D’altra banda, la degradació de la vida religiosa era acompanyada d’un gran d aïment material, ja que l’any 1441 es feia constar que el claustre mostrava un estat ruïnós en diversos llocs. Aquest estat de coses arribà fins al punt que, l’any 1592, a petició del rei Felip II de Castella, el papa Climent VIII ordenà l’agregació del monestir de Sant Quirc de Colera al de Sant Pere de Besalú, fet que comportà l’extinció de la comunitat de Sant Quirc, aleshores ja molt minvada.
Els abats de Sant Pere de Besalú hagueren de sostenir diversos plets per mantenir en el seu poder les possessions que, des de l’origen, havien estat de Sant Quirc de Colera, entre els quals cal esmentar el que interposaren l’any 1765 els ducs de Medinaceli, com a successors dels comtes d’Empúries, sobre la possessió del terme de Rabós.
Amb les lleis d’exclaustració i desamortització de l’any 1835, les propietats de Sant Pere de Besalú foren subhastades i les esglésies i les dependències de l’antic monestir de Sant Quirc foren comprades pel general empordanès Ramon de Nouviles, els descendents del qual en són encara actualment els propietaris. Ale ores a l’antic monestir s’instal·laren uns masovers que menaren les terres i utilitzaren les esglésies i les dependències com a estables, pallisses i magatzems. Als darrers temps els masovers també han abandonat el lloc, que ha estat habitat intermitentment. El conjunt monàstic havia estat declarat “Monumento Nacional” per decret de l’any 1931. Els anys setanta hom hi e rengué unes obres de consolidació que afectaren diferents sectors del conjunt, les quals anaren seguides d’una neteja de les parts ruïnoses i també d’excavacions en diferents indrets, el resultat de les quals no ha estat publicat.
Actualment, malgrat notícies sobre projectes del seu pas al patrimoni públic de la Generalitat, la situació del conjunt mon ental continua en estat d’abandonament; el lloc és deshabitat i l’estat dels edificis és de progressiva degradació.
En el gran conjunt d’edificacions, més o menys ruïnoses, del monestir de Sant Quirc de Colera hi ha construccions i vestigis d’èpoques diverses. Hi destaca, per les seves dimensions, l’e lésia, de planta basílical de tres naus, amb transsepte i capçalera triabsidal. A la seva banda de migdia resta una part del claustre, del qual roman enterament l’espai envoltat per construccions que corresponen a les diferents dependències monàstiques. A l’extrem nord-est d’aquest espai claustral s’han conservat uns fragments de l’església primitiva. A l’esplanada que hi ha vers llevant, hi ha vestigis d’un recinte fortificat.
Cal afegir a aquest conjunt agrupat, l’església romànica de Santa Maria, que n’és separada a poca distància vers ponent, on es dreça isolada, i alguns altres vestigis d’edificació molt malmesos. (JBH-MLIR)
Abaciologi de Sant Quirc de Colera
| Libuci | abans del 844? |
| Asinari | abans del 844? |
| Guiemon | 844? |
| Manuel | 927-935 |
| Guillem | 966 |
| Irminiscle | 976 |
| Amblard | 1012-1019 |
| Berenguer | 1061 |
| Pere | 1091-1093 |
| Berenguer | 1120-1123 |
| Guillem | 1128 |
| Berenguer | 1135-1138 |
| Guillem | 1198 |
| Bernat | 1204 |
| Berenguer | 1208-1223 |
| Berenguer Gerald | 1223-1242 |
| Pere | 1250-1264 |
| Ramon | 1270-1296 |
| Berenguer de Vilatenim | 1297-1320 |
| Pere | 1321 |
| Vicenç | 1322 |
| Pere | 1323-1355 |
| Donorori | 1356 |
| Guillem | 1359-1375 |
| Arnau | 1377-1384 |
| Pere Bosc | 1384 |
| Guillem | 1390-1399 |
| Joan Despujol | 1409-1421 |
| Benet | 1426 |
| Joan | 1429 |
| Albert | 1441-1443 |
| Berenguer | 1448 |
| Galzeran | 1461-1476 |
| Tomàs | 1488 |
| Galzeran de Rocabertí | 1488-1489 |
| Galzeran de Rocabruna | 1516 |
| Guillem Ramon de Mont-rodon | 1335 |
| Pere | 1547 |
| Gaspit de Paratge | 1549-1559 |
| Pere Vicenç | 1584 |
| (APF) | |
Cronologia del monestir de Sant Quirc de Colera
| ~ 800 | Orígens llegendaris del temps de Carlemany, amb els germans Libuci i Asinari, els primers abats, expulsats d’aquí pels sarraïns |
| 844 | Pretesa sentència de Carles el Calb que confirma el monestir i les esglésies que en depenien a Guiemon, fill d’Asinari |
| 927 | Hi ha constatació certa de l’existència del monestir, regit per l’abat Manuel |
| 931 | Els marmessors de Gausbert d’Empúries donen al monestir algunes terres a l’Albera i un sector de costa a les valls de Freixe i de Colera |
| 935 | El dia 9 de gener el bisbe Guiu de Girona consagra l’església del monestir, dedicada als sants Quirze, Andreu i Benet, la qual havia estat reedificada. En l’acta figura la dotació del monestir |
| 965-977 | Els comtes d’Empúries fan donació de diversos alous al monestir |
| 1091 | L’abat Pere i els seus monjos assisteixen a un judici sobre unes cel·les monàstiques entre els monestirs de Sant Esteve de Banyoles i de Sant Pere de Rodes, celebrat a Santa Maria de Castelló |
| 1123 | El 30 de setembre té lloc una nova consagració de l’església de Sant Quirc de Colera, feta pel bisbe de Girona, amb la presència dels de Carcassona i d’Elna. En aquest temps existeix ja la capella o veïna església de Santa Maria de Colera |
| 1198 | El comte Ponç III confirma la donació feta pel seu antecessor Gausbert l’any 931 |
| 1219 | Butlla del papa Honori III en la qual són confirmats els béns i, sobretot, set esglésies subjectes al monestir |
| 1242 | L’abat Bernat Gerald compra a Ramon d’Empúries tota la vila i el terme de Rabós |
| 1246 | El papa Innocenci IV per una butlla confirma al monestir la possessió del terme de Rabós |
| 1255 | L’abat compra a Ponç Hug III d’Empúries tots els masos, terres, censos i drets que aquest té a la vall i a la parròquia de Sant Quirc. El comte només es reserva els homicidis o la jurisdicció criminal |
| 1263 | El comte Ponç IV d’Empúries posa sota la seva protecció tots els béns del terme de Rabós, que abans li discutia Arnau de Morassac |
| 1285 | Les tropes de Felip l’Ardit, que envaeix com a croat Catalunya contra el rei Pere II el Gran, passen per la Maçana i acampen vuit dies prop del monestir, el qual, d’acord amb l’excomunió papal, era favorable al rei francès |
| 1288 | El monestir és ocupat i saquejat per les forces de Jaume de Mallorca que han envaït un sector de l’Empordà |
| 1349 | Sentència favorable a l’abat sobre la jurisdicció de Rabós que li disputava el comte d’Empúries, l’infant Ramon Berenguer |
| 1441 | El monestir es troba en una gran decadència espiritual i material. El claustre és en estat ruïnós |
| 1540 | El monestir no té pràcticament comunitat: un monjo, un clergue i alguns servents. L’abat viu a Castelló d’Empúries |
| 1592 | El papa Climent VIII, a petició del rei Felip II, uneix el monestir de Sant Quirc de Colera al de Sant Pere de Besalú. Ja no hi ha més comunitat. Un monjo de Besalú és anomenat cambrer de Sant Quirc |
| 1690 | El monestir es troba en estat ruïnós |
| 1835-1837 | Amb l’exclaustració i la desamortització el lloc passa a mans privades |
| 1979 | Fins aquesta data el monestir era habitat per una família de masovers i l’església havia estat convertida en pallissa o corral |
| 1985 | El propietari, senyor Fina i Nouvilas, inicia gestions per a cedir la propietat del monestir a la Generalitat de Catalunya |
| (APF) | |
Església

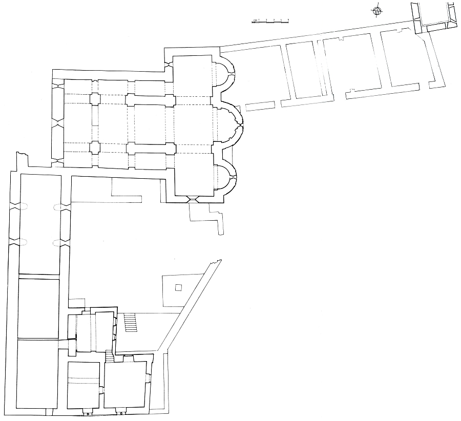
Planta, a escala 1:200, del conjunt monàstic conservat, a nivell de la planta baixa, amb l’església, el pati del claustre i les dependències que l’envoltaven.
J. Rodeja, J. Falguera, J. Torrent, Servei del Patrimoni Arquitectònic de la Generalitat de Catalunya

Planta, a escala 1:200, del conjunt monàstic conservat, a nivell del primer pis.
J. Rodeja, J. Falguera, J. Torrent, Servei del Patrimoni Arquitectònic de la Generalitat de Catalunya
A l’església primitiva de Sant Quirc, anterior a la gran basílica que avui roman dreta, pertanyen uns elements d’edificació situats a migdia del transsepte d’aquesta basílica i uns rastres de fonamentació d’un absis prop de la seva absidiola meridional. Aquestes restes pertanyen a la ca alera de l’esmentada església primitiva, i en part restaren int rades a les dependències monàstiques del costat oriental del claustre. Cal recordar que l’acta de consagració de l’any 935 e ressa d’una manera clara que hom enderrocà les parts inútils de l’església antiga fins als fonaments, però que es mantingueren unes parts aprofitables. Aquests rastres de l’antiga capçalera del temple anterior al que fou consagrat l’any 935, en temps de l’abat Manuel, devien ésser, gairebé sense dubtes, les parts esmentades que hom no enderrocà i aprofità de l’església renovada en aquest moment. La seva datació, per aquestes notícies documentals, és clara: ha d’ésser anterior a la quarta dècada del segle X, per raons òbvies, segurament força anterior.
De les restes d’aquesta església destaca en primer lloc una petita construcció de planta rectangular, que és, clarament, un absis de tipus pre-romànic i que conserva un fragment de la seva coberta de volta. Al costat de tramuntana de l’absis, entre aquest i el creuer de la basílica d’època posterior, hi ha un altre espai rectangular, com una mena de passadís molt estret que té volta de ferradura però que no es clou amb cap mur a l’extrem de llevant. El parament és, arreu, d’opus spicatum. Els dos espais recta ulars suara esmentats són avui dia les restes més visibles i identificables de l’antic temple, i per aquest motiu molts autors han suposat que aquesta església tenia tres absis rectangulars, en rengle. Això, però, no pot ésser, perquè altres vestigis que havien passat desapercebuts evidencien que la planta de la capçalera era força diferent i molt més complexa.
A més d’aquestes construccions hom hi pot veure els fragments d’un gran absis de planta semicircular que s’inicien al mur de llevant de l’absis rectangular abans esmentat; aquests fragments circumden exteriorment l’absidiola meridional “llombarda”, destruïts la basílica d’època posterior i van a perdre’s ja a l’interior d’aquesta basílica, on queden soterrats o destruïts. Malgrat tot, els fon ents semicirculars sobresurten encara en alguns punts del sòl uns 30 cm, la qual cosa permet de comprovar que l’absis destruït tenia aparell en opus spicatum, com els altres murs conservats de la primitiva església.

Una vista de l’exterior de l’església amb la capçalera.
A. Lajarín
Així, doncs, l’església vella de Sant Quirc de Colera tenia una capçalera formada per un absis central semicircular i dues petites absidioles rectangulars, de les quals només s’ha conservat una part important de la meridional, ja que l’absidiola del cantó de tramuntana, que lògicament, per simetria, també era rectangular, fou destruida en bastir la basílica d’època posterior. Creiem, d’altra banda, que l’estret passadís cobert amb volta ultrapassada, i que pel seu emplaçament era dins l’antic presbiteri central, és en realitat un segment de deambulatori o girola. És ben evident, pels vestigis conservats, que l’església primitiva de Sant Quirc tenia una capçalera triabsidal; l’absis central era semicircular, o potser de ferradura, i tenia deambulatori, o bé sengles estances o secretarium a cada costat. Les dues absidioles eren, en canvi, de planta rectangular o lleugerament trapezial. Ignorem si l’església era de tres naus o d’una sola nau amb transsepte, però, si jutgem per la complexitat de la planta del santuari, cal pressuposar l’existència d’una basílica de tres naus.
L’absidiola meridional, de planta rectangular, conserva gairebé enterament el seu mur de tramuntana, del qual arrenca un fragment de volta una mica ultrapassada que s’inicia en una lleugera banqueta. Al mateix mur, a la cara interior, hi ha una arcada de dimensions força grans i arc de mig punt, construït amb llosetes de llicorella llargues i primes, col·locades de manera radial. Aquesta obertura, que ha estat tapiada, originàriament donava al passadís o deambulatori. Era, doncs, una obertura entre l’absidiola i l’espai de l’absis major semblant a la comunicació que hi ha en altres capçaleres de les grans esglésies pre-romàniques de la zona empordanesa-rossellonesa. El mur de llevant de l’abs iola es manté en uns 4 m d’alçària a la seva banda de tramuntana; de la resta d’aquest llenç, només ha pervingut el basament en una alçària aproximada d’1 m. Sobre els fragments dels murs antics s’ha alçat una paret de lloses sense morter, feta segurament amb material procedent de l’enderroc de les velles construccions. Aquesta paret seca es distingeix clarament de l’aparell dels llenços de l’antiga església.
Al centre del mur de llevant de l’absidiola hi havia una finestra d’un sol vessant, de la qual només restava la meitat septentrional. Una restauració abusiva i errònia ha convertit aquesta resta de finestra d’església en una sagetera semblant a d’altres que hi ha a les dependències monàstiques. La forma de finestra, amb arc sobre banquetes, era clara abans d’aquesta intervenció. A la banda de ponent de l’absis, malgrat la paret de tanca de poca altura que hi fou afegida, és visible al tram de tramuntana la base del muntant de l’arc triomfal, feta amb carreus grossos. També és apreciable el basament d’un cancell. A l’interior l’absidiola manté restes d’un arrebossat de morter.

Una vista del conjunt amb les dependències monàstiques i l’església en primer terme i l’església de Santa Maria al fons.
A. Lajarín
Al cantó de tramuntana de l’absidiola, entre aquesta i el mur del creuer de la basílica posterior, hi ha el fragment del deambulatori que circuïa l’interior de l’absis central de l’església vella. Dels murs laterals d’aquest segment de girola, el de tramuntana ha restat encastat en el gran llenç del transsepte de la basílica posterior. L’amplada del deambulatori és d’1,40 m, mentre que la llargada del tram cobert amb volta que es conserva és de 3,70 m. A l’extrem de ponent, l’inici d’aquesta coberta és al mateix nivell que l’arc triomfal de l’absidiola que és al costat. És ben clar que en aquest lloc es conserva l’entrada meridional del deamb atori, ja que el començament de la volta és un arc de factura molt acurada que segueix la seva forma passada de radi. Fou construït amb lloses de llicorella estretes, molt llargues i sense treballar, però curosament escollides, les quals foren disposades en sentit radial.
De les altres estructures de l’antic temple, enderrocades ja al segle X, només són visibles els vestigis esmentats del fonament del mur de l’absis central, del qual hom pot comprovar perfectament que s’unia a l’absis lateral rectangular de migdia, prop de la cantonada nord-est. En aquest lloc d’unió la part externa de l’absis central tenia un curt tram rectilini que acababa en una cantonada on s’iniciava la curvatura del semicercle.
Els murs que encara avui es drecen de la vella església pr enten un aparell de lloses de llicorella sense treballar, molt primes i de mides semblants, disposades gairebé arreu en filades d’opus spicatum perfectament marcat. En general, tot i que no sempre, els rengles de lloses inclinades en un sentit i en l’altre són dividits per una altra filada de pedres posades planes, horitzontals. L’espiga apareix a l’absidiola rectangular, al deambulatori i a les restes del mur semicircular de l’absis major, on les lloses de llicorella alternen amb alguns còdols de calcària escapçats. Les cantonades han estat fetes amb les mateixes lloses estretes i llargues, sense escaire, material que també fou utilitzat en la con rucció de les voltes, on foren col·locades a plec de llibre. El mateix tipus de lloses fou utilitzat, així mateix, a l’arc d’entrada del deambulatori i a l’arc de la fornícula que hi ha a l’interior de l’absis lateral. En canvi, els muntants de l’arc triomfal d’aquest absis eren fets amb grans carreus de conglomerat, molt ben escairats. També fou construïda amb pedres ben tallades la finestra del seu mur de llevant.

Una vista del conjunt del monestir des del costat nord-occidental.
F. Tur
En resum, podem concloure que, per les parts constructives encara dretes o de les quals és visible alguna romanalla, tenim elements prou significatius de la primitiva església de Sant Quirc per a esbossar hipòtesis molt aproximades de com devia ésser l’e ructura de la seva capçalera. No coneixem res de les altres parts de l’edifici, si bé per la complexitat d’aquesta capçalera és lògic de suposar que tenia tres naus. Aquestes naus eren capçades a llevant per tres absis. El central, molt més gran, tenia una planta semicircular o de ferradura i contenia un estret i rudimentari deambulatori o bé unes estances a manera de passadissos laterals. Les absidioles eren rectangulars o lleugerament trapezials; c unicaven amb l’esmentat deambulatori per unes arcades. D’aquesta estructura resta, més o menys visible, la seva meitat meridional.
Alguna intervenció recent en l’absidiola meridional, l’únic sector que ha mantingut elements constructius importants, ha i roduït elements distorsionadors, que dificulten una interpretació correcta, per a la qual és millor tenir en compte l’estat de les ruïnes anterior a aquestes obres. Aquestes intervencions han afectat primordialment l’interior de l’absidiola, el sòl de la qual ha estat rebaixat amb excés, cercant, potser, un paviment, i la ja esmentada transformació de la finestra de llevant en una mena de sagetera.
No hi ha dubte que una desitjada campanya d’excavació i un aprofundit estudi arqueològic de les restes aportarien coneixements que permetrien de tenir una idea molt més clara d’aquestes restes, a més de posar al descobert elements avui soterrats. Com que aquest estudi no ha estat fet ni està en projecte, cal que hom parteixi de l’estat actual del monument en aquest sector. Aquesta situació obliga a precisar que les conclusions que se’n poden derivar han d’ésser forçosament provisionals, dins el camp de les hipòtesis, esperant les matisacions i, en definitiva, el coneixement complet que només una excavació metòdica pot proporcionar.
La coexistència, en aquesta església primitiva de Sant Quirc, de les absidioles carrades (rectangulars o trapezials), amb un absis major corbat (semicircular o en planta de ferradura) permet l’aproximació d’aquest edifici amb altres temples pre-romànics de la mateixa comarca empordanesa, com ara Sant Joan de Bellcaire i Santa Maria de Vilanant. En tots dos casos, esglésies que considerem datables dins el segle X, que presenten una relació dels absis, en planta, inversa a la de Sant Quirc. És a dir, absis centrals rectangulars i absidioles semicirculars o de ferradura. El mateix podem dir de la gran basílica monàstica de Sant Miquel de Cuixà, també del segle X, amb absis major rectangular i dobles absidioles semicirculars.
Ignorem si la distinta relació de plantes dels absis a Sant Quirc respon a la major antiguitat. Evidentment, si tenim en compte que l’antic edifici fou renovat per una nova església vers l’any 935, cal datar-lo dins el segle IX, o, com a molt, al començament del X.
L’element que potser cal considerar més significatiu, és el po ible deambulatori de l’absis major, element inspirat en els mausoleus de l’Antiguitat clàssica; o bé, si es tracta d’estances per a relíquies, com a reflex dels pastoforis o sagristies de les primitives basíliques paleocristianes.
Un altre element que cal considerar és la comunicació entre l’absidiola i el deambulatori, que es relaciona amb estructures semblants, de comunicació entre els absis de Sant Miquel de Cuixà, possiblement de Sant Pere de Rodes i, molt clarament, de Sant Genís de Fontanes.
Per tots aquests factors, les restes d’aquesta capçalera permeten d’establir una relació amb les grans esglésies del segle X de l’Empordà i el Rosselló. És un precedent que permet d’endevinar l’existència d’un substrat cultural, d’uns precedents arquitect ics, que expliquen l’existència, a la primera meitat del segle X, d’un edifici com la basílica de Sant Pere de Rodes, bastida, en el seu sector de capçalera i murs perimetrals, en temps de Tassi, el cappare del monestir. Tassi deixà enllestida abans de la seva mort, esdevinguda l’any 955, la gran basílica monàstica en les parts e entades, la qual comportava una capçalera triabsidal amb girola i cripta, dins unes dimensions excepcionals. Més tard, encara dins el segle X, en temps de l’abat-bisbe Hildesind, fill de Tassi, hom introduí aquesta obra elements classicitzants, que li donaren l’e ructura definitiva que avui encara podem veure, fruit dels co actes amb Roma i el món itàlic, bàsicament. Evidentment, la capçalera amb deambulatori o girola de l’època de Tassi té el seu precedent al mateix país, a Sant Quirc de Colera.
L’obra del temps de Tassi, la basílica de Sant Pere de Rodes, respon a la tradició constructiva d’arrel autòctona i a una forta influència de l’arquitectura postcarolíngia. Aquesta influència, en edificis de dimensions d’una certa importància, ja era present a la regió possiblement des del segle IX, com demostra l’església primitiva de Sant Quirc de Colera, segons es desprèn de les restes descrites. Aquestes restes arquitectòniques i la seva datació ajuden a comprendre l’existència d’edificis com els esmentats de Bellcaire i, sobretot, Vilanant, dins l’eclosió de l’arquitectura r igiosa de la zona, que en el transcurs del segle X recull la tradició local i principalment la influència d’arrel clàssica del món car ingi primer, i dels contactes directes dels magnats locals amb Roma i el papat més tard. En aquest sentit la complexa capçalera amb giróla del temple primitiu de Sant Quirc de Colera és un clar precedent de les grans esglésies de la regió com Sant Andreu de Sureda, Sant Genís de Fontanes i, com a exemple més important, Sant Pere de Rodes, a més de la mateixa basílica de Sant Quirc de Colera bastida vers l’any 935, de la qual queden també parts bastant considerables. (JBH)

Una perspectiva de l’interior de l’església a l’indret del creuer.
F. Tur

Vista de l’interior de l’església, del qual és perfectament visible l’estructura i la manera com ha estat resolta la volta i la comunicació de les naus.
F. Tur
L’església de Sant Quirc de Colera que actualment resta dreta és de planta basílical, de tres naus, amb un transsepte molt destacat en planta i tres absis semicirculars. La nau central és coberta amb volta de canó, com els braços del creuer. Les naus col·laterals, molt estretes, tenen voltes de quart de cercle, si bé en llurs tramades de l’extrem oriental presenten una curiosa estructura, amb voltes més baixes, també de quart de cercle. Els absis tenen voltes de quart d’esfera. Els arcs interns són de mig punt i les naus són separades per pilars cruciformes als quals s’adossen les pilastres dels arcs torals i formers. L’alçada considerable de les voltes col·laterals motiva que el conjunt de les tres naus tingués una sola coberta de doble vessant.
De primer antuvi hom pot constatar l’existència de dos tipus d’aparell ben diferenciats que corresponen a dues èpoques di intes; el que resta de la construcció més primitiva, bastida en opus spicatum, que cal atribuir a l’edifici consagrat l’any 935, i el que pertany a les modificacions de què fou objecte l’església al segle XI.
El frontis i el primer tram de ponent de les tres naus de l’església del segle X foren enderrocats ja en època antiga, i al segle XI fou construïda la nova façana al nivell dels primers arcs torals, deixant inutilitzats els trams que s’havien enfonsat, dels quals e ara resten vestigis amb la porta ben identificable i la seva escala d’accés, que ha estat descoberta per una excavació recent.
La reconstrucció de la nova façana del segle XI al nivell del segon tram comportà, doncs, un escurçament del temple. Hi fou oberta la porta, formada per dos arcs de mig punt en gradació amb una grossa llinda i l’espai del timpà omplert amb carreuada. Les dovelles dels arcs són reduïdes i ben tallades; els carreus de llurs muntants són també escairats. L’obertura fou tapiada en època tardana amb un mur espitllerat, cosa que fa pensar en moments de perill. Sobre la porta hi ha un gran finestral de doble esqueixada i arcs de mig punt que dóna llum a la nau central; dues finestres més de les mateixes característiques, però de mides molt més reduïdes, s’obren una a cada banda del finestral. El contorn superior de la façana és coronat de cap a cap per un campanar de cadiretafdel qual resten quatre grans pilastres rectangulars i el basament de dues altres.
El parament del frontis, idèntic al que hi ha en tots els murs pertanyents a les reformes del segle XI, és de pedres no gaire grosses ni gaire ben treballades que foren col·locades formant f ades seguides.
El mur meridional de les naus té adossada a l’extrem de ponent una part de les dependències de l’antic cenobi, i paral·lela a la part restant del mur hi ha l’única galeria subsistent del claustre del segle X.

Detall d’un dels murs de l’edifici en el qual és pe ectament visible l’aparell, en el qual sovinteja l’opus spicatum.
F. Tur
Al mur de migdia del temple, des de la base fins al punt on incideix la volta del claustre (de quart de cercle), l’aparell és més primitiu, amb opus spicatum. Més amunt hi ha el parament regular, de petit carreu i sense espiga, propi del segle XI. Prop de l’angle amb el creuer hi ha una porta d’un sol arc de mig punt, de dovelles ben tallades de llicorella. A ponent d’aquesta porta, encastats al mur, hi havia el relleu romànic i les dues làpides gòtiques que foren arrencades i portades, pel que sembla, a una casa particular.
El mur lateral de tramuntana de les naus presenta també la conjunció dels dos tipus d’aparell que hi ha en el monument. A l’e rem de ponent, a continuació de l’angle amb el frontis, hi ha una franja d’uns 3 m de llargada, de baix a dalt del mur, amb aparell del segle XI. Entre aquest lloc i l’angle del transsepte hi ha el parament antic, que només arriba fins al cim del mur en un curt espai proper al creuer. En aquest parament arcaic hi ha una porta lateral, actualment tapiada, molt enlairada respecte al sòl exterior de l’edifici; és estreta i formada per un sol arc de punt rodó, fet amb petites dovelles ben tallades, llinda monolítica i timpà de ca euada.
El creuer de Sant Quirc de Colera sobresurt molt respecte als murs laterals de les naus, de manera que la basílica té una planta de creu de braços força pronunciats. El braç meridional d’aquest creuer, en el seu mur encarat a ponent, presenta les mateixes característiques que el llenç de migdia de les naus; l’aparell primitiu hi apareix des de la base fins al punt on devia incidir-hi la volta del claustre, i a la part alta, a l’espai amb parament del segle XI, hi ha una finestra molt grossa de doble vessant i d’arcs de mig punt, construïda amb pedra calcària; no és una obertura romànica, sinó que és producte d’una reforma posterior. En el contorn superior es conserva una cornisa de secció incurvada i damunt seu es veuen vestigis, bé que escassos, d’un mur de fortificació.
L’ala septentrional sembla enterament reconstruïda al segle XI. Al mur encarat a ponent d’aquesta ala hi ha una finestra de doble biaix i arcs de mig punt; el seu vessant exterior és doble i en gradació.
La capçalera triabsidal de Sant Quirc de Colera, totalment renovada el segle XI, és l’única part de l’edifici amb decoració llo arda. Cal remarcar que els absis laterals són a una certa distància del central, completament separats d’aquest. L’absis major té un parell d’arcuacions a cadascun dels cinc espais entre lesenes i al centre de l’hemicicle hi ha una finestra de doble esqueixada i arcs de mig punt amb vessant exterior doble i en gradació.
L’absidiola de tramuntana té grups de tres arcuacions als tres espais entre lesenes; la seva única finestra és de doble esqueixada i arcs de mig punt. L’absidiola de migdia presenta la singularitat de tenir lesenes, però no arcuacions; té també una finestra de doble biaix. Els tres absis tenen el parament extern coronat per una cornisa bisellada; les lesenes, a tota la capçalera, s’inicien en unes altres socolades.
Als murs de llevant del transsepte, sobre les cobertes de les absidioles, hi ha sengles finestres d’un sol vessant i arcs de mig punt, molt estretes. Al mur oriental de la nau, damunt la coberta de l’absis central hi ha un ull de bou.
Entre l’absis major i l’absidiola de migdia fou construïda en època tardana, potser baix-medieval, una capella amb aparell de pedres sense treballar; té una obertura d’un sol vessant que exteriorment presenta l’aspecte de sagetera i a l’interior és d’arc de mig punt.
La basílica conserva una part de les velles cobertes de lloses de llicorella. Com ja hem dit, les tres naus de Sant Quirc de Colera foren cobertes amb voltes i separades per pilars cruciformes. La volta de la nau central és de canó i les laterals presenten la particularitat de tenir una doble volta al tram de llevant proper al transsepte, on la volta de quart de cercle es duplica a un nivell inferior per tal de permetre un millor engalzament amb el creuer, cobert amb volta de canó, com a fruit de les dues èpoques constructives que presenta l’edifici.
Les voltes de les naus tenen tres trams sostinguts per tres arcs torals, els quals a la nau central són de mig punt i recolzen sobre pilastres rectangulars adossades amb impostes bisellades. També els tres arcs formers per banda que separen les naus i els dos que comuniquen les ales del creuer amb la nau central són de mig punt, i, així mateix, sostinguts per pilastres de característiques idèntiques a les abans esmentades. Les impostes són majoritàri ent bisellades, llises, sense ornamentació, però hi ha unes excepcions als quatre arcs formers dels dos trams del sector occidental de l’edifici. Als dos arcs del costat de tramuntana, hi alternen les impostes bisellades amb d’altres de secció de quart de cercle excurvat decorades amb una motllura horitzontal, i, al costat de migdia, les impostes de l’arc situat més a ponent són també bisellades, però, a l’altre arc, n’hi veiem una amb motllura horitzontal i una altra amb decoració geomètrica en relleu, amb el típic tema de daus o escacat.
L’absis major s’obre per mitjà d’un plec de mig punt, doble i en gradació, amb impostes bisellades. Aquest absis presenta el mur de l’hemicicle decorat amb cinc grans arcuacions cegues suportades per columnes semicilíndriques adossades, que arrenquen d’una alta socolada. Les columnes tenen capitells, però llur decoració resta amagada sota una capa d’arrebossat de calç que cobreix tots els elements de l’interior del presbiteri. Fa uns quants anys, en uns treballs de reparació fou netejat un sol capitell i aparegué una ornamentació que insinua d’una manera molt esqu àtica i amb poc relleu un tema vegetal d’inspiració clàssica, de llunyana influència en el capitell corinti.
Les dues absidioles que s’obren als braços del transsepte tenen més amplada que les estretes naus laterals i no estan centrades en el seu eix. L’absidiola septentrional té el plec de mig punt doble, amb les mateixes característiques que el de l’absis major, mentre que el de l’absidiola de migdia fou modificat en època tardana i ara és un arc molt baix, de forma lleugerament rebaixada. Els tres absis són coberts amb volta de quart d’esfera.
Entre l’absis major i l’absidiola meridional fou bastida una capella, la qual forma com un petit absis de planta rectangular. És un afegitó tardà. El seu arc és apuntat i la seva volta segueix la mateixa forma.
L’església no ha experimentat cap altra modificació notable després del segle XI. Cal esmentar, però, un mur transversal d’uns 3 m, de pedruscall i argamassa, construït a nivell de l’arc toral de la nau central situat més a ponent. Sembla que correspon a una construcció del temps en què l’església serví d’estable.
La basílica de Sant Quirc de Colera actualment es troba, com tot el conjunt del cenobi, en un estat d’abandó molt deplorable, fet molt més accentuat al seu interior. Durant els darrers treballs de restauració fou consolidat el sector occidental de la volta amb un gros suport massís, ja que juntament amb el seu arc toral, amenaçava ruïna.
La basílica de Sant Quirc presenta la conjunció de dues etapes constructives que hom pot distingir clarament per l’existència de dos tipus d’aparell ben diferenciats als murs perimetrals de les naus i el braç meridional del transsepte. Les estructures fonamentals de l’edifici, tal com ha arribat als nostres dies, co esponen a la reforma que cal datar vers mitjan segle XI, o bé dins la segona meitat d’aquest segle. D’aquest moment és la reconstrucció de la basílica sobre importants elements de l’església anterior. Sobre aquestes estructures, aprofitant-les, hom bastí la basílica de tipus llombard, a la qual correspon enterament la capçalera triabsidal amb decoració llombarda al parament extern, i també a l’interior en el cas de l’absis central. El transsepte molt destacat i les naus foren reconstruïdes damunt murs anteriors. Així i tot pertany plenament al segle XI l’estructura de les voltes i la relació entre les naus, amb els arcs formers que les comuniquen i els torals de suport de les cobertes. La façana de ponent, bastida a un nivell reculat, després d’una ensulsiada dels trams antics de ponent, potser pertany a una reforma una mica posterior, que hipotèticament podríem situar al final del segle XI o ja entrat el segle següent.
Així, doncs, l’estructura fonamental de la basílica correspon a una construcció de tipus llombard, tanmateix atípica, principa ent perquè ha estat adaptada a les estructures antigues subsistents. Aquestes pervivències han configurat enterament la planta de les naus i el transsepte, molt sobresortint, característic de les esglésies basílicals dels segles X i XI de la regió. Hom pot comprovar aquesta condició poc típica a través d’altres elements com la decoració dels absis, on s’observa l’asimetria ja remarcada i, principalment, la curiosa doble volta dels trams de les naus col·laterals properes al transsepte. És una mostra més de l’adopció irregular i una mica forçada de les formes arquitectòniques llo ardes a l’arquitectura religiosa de l’Empordà i el Rosselló, on era molt forta la tradició constructiva d’arrel autòctona, de la qual són bons exemples els vestigis dels temples anteriors del mateix conjunt monàstic de Sant Quirc de Colera.
És dubtós que hom pugui relacionar amb aquesta reconstrucció la consagració celebrada l’any 1123, ja que és probable que la construcció sigui força anterior. Potser aleshores només fou consagrat l’altar de Santa Maria de Colera, tal com s’expressa en l’acta. També podia tenir relació amb l’obra d’escurçament de la basílica i la construcció de la nova façana. L’obra “llombarda” de Sant Quirc de Colera, té paral·lels en altres basíliques que es poden considerar de l’època apuntada —vers la meitat del segle XI—, de la mateixa zona, com poden ésser Sant Miquel de Cruilles, Sant Joan de Palau-saverdera o Santa Maria de Roses, aquesta darrera consagrada l’any 1053.
Com hem anat comentant, l’obra romànica del segle XI es dreçà damunt importants estructures de la basílica que fou consagrada l’any 935. D’aquesta mostra excepcional de l’arquitectura religiosa de la primera meitat del segle X, resten els murs perimetrals de les naus i de l’ala meridional del transsepte fins a una bona alçada, a més dels vestigis de la façana primitiva, amb rastres de la porta i una fornícula a l’extrem de migdia. La pervivència d’aquests paraments demostra que l’església tenia una planta de tres naus, amb transsepte destacat com l’actual i entrada a ponent. El basament semicircular visible a l’interior, com a fonament de l’actual absis central bastit al segle XI, pot ésser l’única i probable romanalla de la capçalera. Tanmateix, les característiques de la capçalera, com altres elements de la basílica del segle X desconeguts, només es descobririen mitjançant excavacions.
Els paraments que perviuen de l’obra del segle X resten ben evidents per la diferència dels aparells. Destaquen perfectament arreu, per les filadesd’opus spicatum fetes amb lloses curtes de llicorella, sense treballar.
Aquestes estructures de la basílica monàstica consagrada l’any 935, com les restes del temple anterior que hi ha al mateix lloc, són, doncs, d’un interès excepcional per a comprendre l’evolució de l’arquitectura anterior al mil·lenni, de característiques molt definides a l’Empordà i el Rosselló. (JBH)
Claustre

Planta i alçat d’un detall de la galeria del claustre, amb la indicació de les propo ions i les mides de les columnes i l’esquema estructural de composició d’elements.
J. A. Adell
El claustre del monestir de Sant Quirc de Colera era emplaçat a la banda de migdia de l’església. El seu espai quadrangular encara pot ésser identificat. És limitat a llevant, a ponent i a migdia per les diferents dependè ies, més o menys conservades o alterades. Era un claustre de dimensions força reduïdes.
L’únic sector d’aquest claustre que es conserva dret és un tram de la seva galeria i porxada septentrionals, paral·lela a la façana de migdia de l’església. La resta ha desaparegut totalment.
Al fragment conservat, el mur del porxo claustral és perforat per dues obertures, com dues grosses finestres geminades. Aquest mur té un aparell format per rengles de pedres inclinades i d’opus spicatum, idèntic al del parament més primitiu de la basílica en el qual recolza la volta de la galeria. Aquesta volta és de quart de cercle, feta amb lloses estretes, de llicorella, amb molt morter. Se n’ha conservat el tram corresponent al fragment de la galeria que subsisteix, però amb espais força destruïts. També hi ha vestigis de la coberta d’un sol vessant, d’enllosat.
Les dues obertures o finestrals que es conserven perforen el mur damunt un alt pòdium. Són separats per una grossa pilastra de carreuada. Els seus arcs són de mig punt, fets amb dovelles curtes, ben tallades i allisades, amb dues impostes monolítiques, força prominents, en secció de pla i bocell. El mainell consta d’una curta i grossa columna cilíndrica llisa i d’un gran capitell mensuliforme llis; és molt robust i desproporcionat. Un dels capitells, el del finestral situat més a llevant, presenta un cimaci molt destacat, de pla i bossell, que és una Peça monolítica i exempta. Al de l’altra obertura només s’insinua, molt erosionat, un cimaci força irregular, de forma indefinida, fet al mateix volum del capitell. Les bases tenen una forma difícil de precisar, ja que són molt erosionades; probablement eren tallades bastament, a manera de simple plint.
Els elements de les obertures són tallats en un conglomerat molt sorrenc, de color groguenc clar, llevat de les columnes que són de pedra calcària. Aquests elements contrasten amb la col ació fosca de la resta del mur, bastit amb llicorelles.
A l’extrem occidental de la galeria hi ha una arcada que és la resta de la comunicació amb l’ala de ponent del claustre, desapareguda.

Una vista de conjunt del recinte que ocupa el claustre, del qual avui s’ha perdut una part molt important.
A. Lajarín
El claustre de Sant Quirc de Colera és evidentment coetani de la basílica del segle X, consagrada l’any 935, al parament de la qual resta adossada la galeria que parcialment ha arribat a nosaltres. L’estructura de la galeria claustral es correspon perfectament amb aquesta datació reculada. Es tracta, per l’època i l’ev ució, d’un exemple excepcional de claustre anterior al mil·lenni.
Cal destacar el seu aspecte, de gran rudesa i feixugor, i la factura molt tosca de tots els elements, que revelen un evident primitivisme.
El porxo claustral era configurat, doncs, per una seqüència de finestrals geminats de poca alçada, espaiats, separats per grossos pilars i damunt una alta socolada. El mur manté, per tant, co iderables espais opacs. L’estructura d’aquest claustre del segle X és lluny encara dels claustres característics de ple romànic que presenten una absoluta preeminència del buit sobre el ple, a més de tenir tots els elements evolucionats, amb un destacat protagonisme de l’estructura i no solament dels elements arquitectònics com a Sant Quirc.
A la façana de les dependències que limitaven el sector occidental del claustre hom pot identificar el nivell on incidia una coberta de llosa i embigat de la galeria d’aquest costat, ara del tot destruïda. Els encaixos de bigues demostren que, almenys en algun moment, aquesta galeria tingué un tipus de cobriment diferenciat del que s’ha conservat al tram de tramuntana. Per alguns altres indicis i troballes, hom pot pensar com a força possible, que les ales desaparegudes del claustre, o una part d’elles, foren renovades en època romànica avançada, potser al segle XII, i que tenen una estructura pròpia dels claustres romànics d’aquesta època. Els capitells esculpits en foren espoliats. Els dos capitells romànics que hi ha col·locats a les finestres gòtiques de la façana exterior del costat de migdia de les dependències poden procedir d’aquesta part del claustre, com d’altres de coetanis que, segons notícies, aparegueren a l’àmbit del monestir fa alguns anys. (JBH-MLIR)

Fragment de galeria que resta del claustre del monestir.
J. Bonell
Dependències del monestir

Fragment de mur pertanyent a les antigues depenències monàstiques, de les quals ha desaparegut la major part.
F. Tur
Les dependències del monestir que limitaven el claustre mostren avui elements arquitectònics d’èpoques diverses.
A continuació de l’església vella, vers migdia, limitant el claustre per llevant, hi ha una petita construcció rectangular, molt arruïnada. Els murs, que es conserven irregularment, a iben a una alçària màxima de no gaire més de 2 m i presenten un aparell de lloses de llicorella sense escairar que en diferents punts formen opus spicatum. És un tipus de construcció, datable als segles IX i X, que ha de ser contemporània de l’església més antiga o bé del claustre. El seu parament extern és espitllerat.
L’edifici que limitava l’ala occidental del claustre és un magnífic exponent de l’arquitectura civil dels segles XII i XIII. La seva planta és rectangular, molt allargada, i incideix perpendicula ent en el mur meridional de la basílica. Malgrat que el sector meridional de la construcció és força malmès, puix que s’enfonsà la coberta i caigué la part alta dels murs, hom pot veure en un llarg tram del sector septentrional, molt ben conservat, la forma de la volta, que és apuntada i seguida.
El mur de llevant, que dóna a l’espai del claustre, era la façana principal; s’hi obre una porta d’arc de mig punt adovellat i a la seva vora hi ha una gran portalada, també d’arc de mig punt fet amb grans dovelles perfectament tallades i allisades. A la part superior de la façana resten dues finestres romàniques de doble esqueixada i arcs de punt rodó amb els vessants molt oberts. Tots dos finestrals són de grans dimensions. L’aparell dels murs és molt acurat, fet amb carreus de llicorella de la contrada de mida gran, perfectament escairats i polits.
El mur occidental d’aquest sector de les dependències dóna a l’exterior del cenobi i per aquest motiu hi ha alguns elements defensius, com el talús que forma el basament i una llarga espitllera. A la part encara coberta amb volta hi ha dues grans finestres de doble biaix, parelles i d’estructura idèntica a les de la façana de llevant. En el parament d’aquest llenç cal destacar l’existència d’unes incisions en les juntures dels carreus fetes per simular un perfecte escaire de les pedres, tot i que en aquest cas el parament ja és de carreus ben escairats. Cal destacar aquest element propi d’aparells més arcaics en aquesta construcció tardana.
L’aparell del frontis meridional d’aquest edifici és visible, una mica alterat, a continuació de la façana de les dependències del sector de migdia del conjunt monumental, lloc que ha servit d’h itatge dels masovers fins no fa gaires anys. El mur de tramuntana és el que s’adossa a l’església.
Aquesta construcció fa pensar, per les seves estructures, que havia estat el refetor del monestir. Tanmateix, atesa la llargada de l’edifici, hom pot admetre la possibilitat que fos dedicat a diverses funcions i que, a més del refetor, hi hagués el dormitori o alguna altra dependència monàstica.
A la banda de migdia hi ha un edifici força gran, i d’estructura complexa, que ha servit de masia fins no fa gaire. Hom considera que es tracta de l’antiga casa de l’abat. L’edifici té planta baixa i pis, però pel costat de tramuntana la part superior és a la mateixa alçària que el sòl del claustre, a causa del desnivell del terreny, en part artificial. La utilització continuada d’aquesta construcció com a habitatge explica les nombroses reformes que ha sofert, sobretot a l’interior.
Els murs presenten gairebé arreu un parament de pedruscall, propi d’una obra popular no anterior als segles XIV i XV. En diferents punts hi ha reutilitzats carreus ben escairats de pedra calcària, conglomerat o gres, procedents d’altres construccions del monestir que han desaparegut. La meitat inferior de la façana m idional, on les lloses tendeixen a afilerar-se, és d’una època força anterior.
A la façana de migdia de la suposada casa abacial hi ha, a la part inferior, d’aparell més antic, les restes de l’arc d’una porta que devia ésser de mig punt. Les dovelles són estretes i força ben tallades. Prop de la porta, que ara és un simple esvoranc, hi ha una llarga sagetera.

Un capitell d’una finestra de l’abadia.
F. Tur

Un capitell d’una finestra de l’abadia.
F. Tur
A la part superior d’aquesta façana de parament més antic hi ha oberts dos finestrals geminats, gòtics, amb arcs de forma tr obada i impostes incurvades. El mainell d’aquestes dues obertures era format per peces romàniques reutilitzades. També són romànics els dos capitells esculpits, les petites bases califals i les columnes cilíndriques, elements tots datables al segle XII. Els dos finestrals, per llur estructura, és evident que foren construïts al segle XIV, o, més probablement, al XV.
Quan, fa uns quants anys, aquest edifici restà deshabitat, hom no pogué evitar el robatori d’un altre capitell del segle XII, situat enmig del parament d’aquesta façana.
L’estanca inferior és coberta amb una volta de canó que conserva les empremtes de l’encanyissat i té dos arcs torals, fets amb dovelles llargues i estretes, força ben tallades. El mur que limita la sala pel costat de tramuntana presenta, en un llarg fragment, aparell en opus spicatum; es tracta de la paret de basament del terraplè del claustre, construïda al segle X o abans. La part i erior de la façana meridional i la sala de l’interior de la planta baixa presenten, en canvi, elements arquitectònics que podem considerar del segle XI, coetanis de la renovació de la basílica. Damunt seu, els murs, aixecats sense cap cura en la talla i la col·locació de les pedres, són posteriors, segurament del segle XV, de l’època de les dues finestres gòtiques. No obstant això, l’edifici ha estat objecte de nombroses reformes en dates molt més tardanes.
A l’esplanada que hi ha darrere de l’absis de la basílica hi ha les restes de fortificacions que delimiten un recinte que enllaçava amb el conjunt dels edificis monàstics. Sens dubte, cal relacionar aquestes obres de fortificació amb el domini temporal que a partir de l’any 1303 el cenobi de Sant Quirc de Colera posseí sobre la vall i la parròquia de Sant Quirc, puix que convertí el monestir en castell termenat i alhora en casa religiosa.
Des de l’angle nord-est de l’ala septentrional del creuer de la basílica sortia un tram de muralla que anava a parar a una torre angular emplaçada uns 30 m més a llevant. Avui dia resta un petit fragment d’aquest mur, just al punt en què incidia el creuer, on es conserva una llarga sagetera.
Un altre llenç paral·lel, a 8 m de distància de l’anterior, incideix perpendicularment sobre la part inferior de l’absis central de la basílica. Es tracta d’una façana que donava a l’interior, al pati d’armes de la fortalesa, i es conserva en una llargada d’uns 20 m, tot i que la seva alçada és irregular. Al sector immediat a l’absis, on es manté més alt, hi ha dues portes de factura idèntica, però de mides diferents; totes dues són d’arc de mig punt fet amb lloses estretes, treballades sense gaire cura. Entre les dues obertures hi ha una gran espitllera.
La torre angular que hem esmentat, és actualment la con rucció més vistent de les defenses del monestir. La planta és re angular i no es manté en tota l’alçària original, car en època ta ana s’hi construí una coberta de lloses que destruí l’antic emmerletat. Té tres filades de llargues espidieres al voltant. Al seu mur de migdia hi ha una obertura rectangular enlairada que potser comunicava amb el pas de ronda.
Les restes molt malmeses d’una altra torre rectangular són integrades a la paret de contenció de les terres de l’esplanada situada a llevant del monestir. D’aquesta torre, que és a uns 20 m a migjorn de l’anterior, només es pot veure el basament del llenç meridional.
Dels murs que unien les torres i del que enllaçava la darrera d’aquestes torres amb les dependències del monestir pràcticament no hi ha restes. L’aparell visible a tots els vestigis de la fortificació és de lloses de llicorella sense treballar que foren col·locades descuradament. Les cantonades de les torres són de carreus ben escairats, no gaire grossos. Creiem que, per les seves característ ues,. aquesta obra defensiva aixecada a llevant del cenobi pot ésser datada al segle XIV.
Altres restes molt minses d’edificis es poden veure a fora i a l’entorn del recinte monàstic. Destaca un llarg mur amb aparell d’aspecte arcaic a poques passes i a tramuntana de la fortificació darrerament esmentada. També hi ha els basaments d’un terraplenament i, potser, fortificació, a ponent de l’església.
Ja una mica més lluny, a poca distància i al nord-est de l’església de Santa Maria de Colera, hom pot veure el basament, amb murs que amb treballs destaquen del terreny, d’un edifici de planta rectangular molt allargada.
Les restes de construcció situades al nord del monestir, o bé potser amb més probabilitats, ja que les anteriors semblen molt antigues, les situades prop de Santa Maria, podrien pertànyer, per l’emplaçament fora del recinte claustral, a l’hospital que fou construït a partir de l’any 1348. Aquest any Jaume de Tortellà, de Castelló, instituí un benefici a sant Quirze i disposà la construcció de l’hospital a extramurs del cenobi. (JBH-MLIR)
Les obres de restauració o consolidació fetes al conjunt monumental de Sant Quirc de Colera vers l’any 1975, creiem que amb subvenció de la Dirección General de Bellas Artes, anaren seguides d’excavacions en diferents indrets. Segons l’aspecte d’aquests treballs sembla que es tractà de diferents cales o proves parcials, sense un programa preestablert. No s’ha publicat, que sapiguem, cap estudi amb els resultats d’aquestes excavacions.
Encara avui, com a fruit d’aquests treballs, romanen al descobert, en dos llocs del conjunt monàstic, grups de sepultures que aleshores foren explorades. Per desgràcia, les tombes foren excavades en un sòl terrós o de roca que es descompon fàcilment; això, junt amb el fet que es deixaren al descobert, fa que no puguem identificar amb claredat les característiques, les dimensions i la tipologia de les sepultures. Són buides i amb el contorn desfet, en molts casos la destrucció és gairebé total i és impossible, fins i tot, de precisar el nombre de sepultures que hi hagué en un espai determinat.
Un dels llocs on es descobriren sepultures i on encara se’n poden veure els rastres és a l’interior de l’església i concretament al braç meridional del creuer. Sembla que hi predominaven les tombes de simple fossa, molt grans i de formes rectangular o trapezial. Probablement es tracta de sepulcres tardans, alguns fins i tot postmedievals. No és impossible que n’hi hagués de més antics, però actualment hom no ho pot assegurar.
A l’edifici tardo-romànic situat a ponent del claustre s’excavà també una bona part de l’interior. El sòl avui resta en un estat caòtic. Hom hi pot veure fonaments de murs de pedres desbastades i morter, un dels quals segueix per sota els fonaments de l’edifici romànic i, per tant, demostra que és d’una construcció d’època anterior. Hi ha un gran nombre de sepultures fetes a terra. Són buidades i malmeses, molt desfigurades, situades sense ordre, molt apropades. Són, tanmateix, ben orientades, almenys les que permeten de comprovar-ho. Probablement hi ha alguna tomba de simple fossa rectangular, però hom pot comprovar encara que algunes tombes són antropomorfes; no és possible, però, fer-ne cap més precisió. Poden datar, per tant, dels segles IX i X, i ens de obreixen l’emplaçament de l’antiga necròpolis del cenobi, anterior a les dependències de ponent tardo-romàniques i amb la qual potser tenen relació els fonaments de mur esmentats. (JBH)
Làpida

Làpida procedent de sota la volta del claustre, actua ent d’ubicació descon uda. Presenta un abat entre un diaca i un sot iaca. És una Peça que cal datar entorn de l’any 1200.
F. de Quiroga
Sota la volta del claustre i encastades al mur meridional de l’església de Sant Quirc hi havia tres làpides. Ens interessa actualment la d’època romànica, que, com les altres dues, gòtiques, foren retirades del lloc origiari, i deu conservar-se en una casa particular(*).
Aquesta làpida és treballada en pedra calcària i presenta, una figuració esculpida en un marc rectangular, que és ornat a base d’un perlejat, interromput al costat inferior. A l’interior han estat representats tres personatges, drets i frontalment, amb els respectius caps proveïts de tonsura i imberbes. Els tres personatges, identificats d’esquerra a dreta com a diaca, abat i sots-diaca, sostenen una Peça de roba amb la mà esquerra, una mena de llenç o humeral, anomenat gremial, mentre que amb l’altra mà el diaca, que va vestit amb dalmàtica, pren un llibre, l’abat, representat amb casulla, sosté el bàcul, i el sots-diaca, amb tunicel·la, aguanta el llenç.
Cal recordar unes escenes similars en un capitell de la porta de l’antiga catedral de Roda de Ribagorça, datada al segle XIII en què el bisbe Odesind apareix consagrant l’edifici juntament amb dos clergues que el flanquegen(*), i també a la portalada de Sant Lleïr de Casavella (Solsonès), també de datació avançada(*), entre d’altres.
A part la temàtica, la Peça ens interessa igualment pels aspectes estilístics. El tractament dels cossos destaca per un interès pel detall que és limitat pels defectes tècnics, tal com s’observa en les irregularitats dels plecs de les vestidures o en el traçat matusser d’alguns elements com les mans. Això no obstant, el més sobr ortint és l’elaboració dels caps, que sembla fugir de la subjecció a condicionaments geomètrics, malgrat la seva fontalitat, per accentuar l’element anatòmic a les cares, a base d’unes galtes modelades amb relativa versemblança, llavis estrets i ulls profunds però globulars; el mal estat de la Peça impedeix d’observar-ne altres trets.
En conseqüència, la baixa qualitat en el tractament dels cossos no ha de fer oblidar una concepció estilística no aliena a les experiències dels voltants del 1200, de manera que podem situar la Peça en un moment difícil de precisar, no anterior a les primeres dècades del segle XIII. En aquest sentit, és difícil de trobar conjunts comparables per establir línies concretes d’influència, si bé, a primera vista observem una certa familiaritat amb obres com el timpà de Sant Maria de Vallbona de les Monges(*).
D’aquesta manera, no podem compartir una datació prim enca —feta partint de comparacions amb l’escultura de Sant Miquel de Fluvià (Alt Empordà) i de la catedral d’Elna (Rosselló)—, que situaria aquesta Peça vers el darrer terç del segle XI(*).
La pertinença al mateix conjunt, finalment, ens obliga a comparar el relleu amb un capitell que hi havia a Colera, presum lement provinent del claustre; en aquest sentit, hi ha una relativa similitud, sobretot quant al tractament del cap(*); també s’esmenta un altre capitell, aquest desaparegut, en què figurava un abat amb bàcul i mitra(*) que ens aproximaria a la Peça que tractem. (JCSo)
Pica
Procedent de l’església del monestir de Colera, a l’e lésia nova de Sant Quirc, edifici del segle XIX, hi ha guardada una pica baptismal. Ha estat encastada al mur de migdia de la nau i per aquest motiu només n’és visible la meitat. És monolítica, tallada en pedra calcària i la seva forma és de gran copa ovoide amb un curt peu cilíndric. La meitat i erior de la Peça és totalment llisa; a la part alta hi ha un ressalt, també llis, al voltant de la vora i, sota d’ell, una franja rebaixada en la qual hi ha un fris amb diferents motius esculpits. A l’espai d’aquest fris que actualment resta visible hi ha una grossa roseta, un relleu circular i llis i dues fulles que per llur forma recorden les de plàtan i que deuen voler representar uns pàmpols.
La pica ha estat força alterada en repicar-la amb buixarda; també té fragments escantonats a la part superior. És de datació difícil, si bé per alguns detalls de la senzilla decoració, com la roseta que recorda un tema molt corrent a les impostes i cimacis de capitells del gòtic civil del país, hom podria pensar en una època molt tardana. Com a hipòtesi podríem situar-la al segle XIII avançat. Tanmateix, hom no pot desestimar que es tracti d’una Peça en què perdurin les formes romàniques tradicionals, obrada encara més tard, dins el segle XIV. (JBH)
Altar
A la mateixa església nova de Sant Quirc hi ha dues ares d’altar que provenen també, sens dubte, del monestir de Sant Quirc. Ambdues ares són completament llises, rectangulars, ben escairades i polides, però sense cap mena d’ornamentació ni de motllura.
Una de les ares és col·locada en un altar lateral, al costat de migdia de la nau. És tallada en marbre blanc. L’altra, que és a terra, en una capella del costat de tramuntana, és de pedra calcària. (JBH)
Intervencions arqueològiques

Planta general del monestir, a escala 1:400, amb la necròpolis I els vestigis de l’absis preromànlc de l’església primitiva, descoberts durant les excavacions del 1997.
Servei d’Arqueologia de la Generalitat de Catalunya - M. Teixidor
El monestir benedictí de Sant Quirc de Colera fou cedit el 1995 pel seu propietari, el senyor Nouvilas Fina, a l’Ajuntament de Rabós d’Empordà. L’any 1997, el Servei d’Arqueologia del Departament de Cultura va dur a terme una intervenció arqueològica a l’antic cenobi, la qual s’inclou dins el projecte de recuperació i consolidació del monument, promogut per la Direcció General del Patrimoni Cultural de la Generalitat de Catalunya.
Els treballs arqueològics se centraren al claustre i a l’exterior dels absis central i meridional. A partir dels resultats obtinguts en aquesta primera campanya d’excavacions, s’ha pogut constatar l’evolució cronològica del monestir des dels seus inicis fins al seu abandó, quan va passar a mans privades amb la desamortització de Mendizábal (vegeu el volum IX de la present obra, pàgs. 753-773).
Primera fase. Segles IX-X
Dins aquesta fase s’ha pogut observar l’existència de tres àmbits: una església primitiva, unes estructures relacionades amb aquesta i una necròpolis.
De l’església primitiva únicament en resten —segons es desprèn de la intervenció arqueològica— un absis semicircular de grans dimensions i la part de llevant del mur de migdia de la nau. En l’estat actual de les excavacions no es pot determinar si aquest temple era d’una sola nau ni si l’absis presentava una planta de ferradura. Una intervenció arqueològica posterior a l’interior de l’església podria resoldre aquest dubte. Aquesta primera construcció està edificada directament sobre el sòl natural i feta amb pedra local, fil·lites disposades en opus spicatum.
Respecte de les estructures relacionades amb el cenobi cal dir que s’ha trobat una part d’una construcció o mur que s’imbrica amb l’extrem sud de l’absis en direcció a migdia. D’aquesta estructura, només en resta la cantonada. La seva funció no ha pogut ser determinada, ja que a sobre hi fou construïda una edificació posterior.
D’altra banda hi ha la necròpolis, que va lligada a la creació d’aquest monestir benedictí com a nucli de repoblament. Segons s’ha pogut constatar arqueològicament, aquesta necròpolis ocupava tot el vessant de migdia del turó. Així, vers l’est, s’estenia fins a l’exterior de l’absis; a la banda de ponent es troben estructures funeràries sota l’actual refectori, i al costat sud n’observem fins a tocar la casa de l’abat. No s’exclou el fet que aquesta necròpolis pugui tenir una superfície més gran.
Les tombes són antropomorfes, tallades a la roca. Hi ha una diferenciació tipològica apreciable entre les que es troben situades a migdia de la necròpolis i aquelles que són a tocar del mur meridional de l’església primitiva. Així, les del nord són grans tombes tallades a la penya, molt fondes, i amb unes espatlles i un cap molt marcats; en canvi, les que es troben a migdia són molt menys treballades, poc fondes i estretes. Totes les sepultures estan orientades est-oest, amb el cap de l’individu vers ponent.
La gran extensió coneguda d’aquesta necròpolis, juntament amb el fet que hi ha una representativitat demogràfica real, que inclou dones, homes i infants, fa pensar que probablement en aquest cementiri s’inhumava tota la població de la vall i no tan sols la comunitat monàstica. Els cossos s’inhumaven amortallats, en decúbit dorsal, i en cap cas no s’ha trobat aixovar funerari.
Segona fase. Segle XI
Igual que en la fase anterior, s’han documentat arqueològicament en aquest moment tres àmbits: l’església de nova planta, les construccions monàstiques i la necròpolis.
La construcció d’una nova església monàstica al segle XI, de tres naus, podria deure’s a un creixement econòmic (tal com descriuen els textos), que feu necessària l’ampliació del monestir. La nova església es construí sobre l’anterior, sense seguir exactament el mateix eix. Per a la seva edificació s’utilitzà majoritàriament pedra local, així com algunes peces d’aportació forana. Es reconeixen esquistos, fil·lita, marbre, quars, bretxa, calàries, nummulítiques i granits. Segons M. Vendrell, a la part basal de l’església s’utilitzà preferencialment fil·lita, que fou substituïda per esquistos a la part superior. S’alterna la disposició lineal amb el parament col·locat en opus spicatum.
En aquest període es produeix un important procés d’edificació al voltant del nucli de l’església. Es construeix el primer claustre, del qual només resta dempeus el podi de la galeria nord i les seves arcades, així com la base dels murs intern i extern de la galeria de llevant. El parament utilitzat és novament de fil·lites sense treballar, disposades en paret seca i combinades amb bretxa. Els capitells també són tallats amb bretxa, sense cap tipus de decoració i de forma piramidal inversa. Els fusts de les columnes són de marbre.
El claustre del segle XI presenta tres galeries: la de tramuntana, la de llevant i la de ponent. La galeria oest la retrobem a partir de l’alçat intern del costat ponentí de la galeria nord. En aquest parament s’observa l’arrencada de l’arcada de la volta de la galeria, que actualment es troba tapiada. No hi ha evidències del seu mur extern. De la galeria del costat est s’ha localitzat la cantonada nord del mur del podi. Al sud hi ha un mur de tancament del claustre, el qual actua bé com a mur de contenció o de delimitació de la necròpolis, bé com a estructura d’aterrassament per a salvar el pendent sobre el qual s’edificà el claustre.
Correspon a aquesta fase la construcció d’un accés al claustre des de l’exterior. L’entrada és situada al sud d’una edificació monàstica de petites dimensions, ja utilitzada al segle XI i reutilitzada en època moderna com a cisterna (la funció que aquesta dependència acomplia en el moment de la seva construcció és impossible de determinar). Des d’aquí, l’accés es desvia cap al nord en direcció al transsepte, i entra a l’angle nord-est del claustre mitjançant un llindar obert al mur extern de la galeria est.

Vista general de la necròpolis altmedieval a l’àmbit del claustre, des del nord-oest.
Servei d’Arqueologia de la Generalitat de Catalunya - d. Callis
La necròpolis, durant el segle XI, queda limitada a l’interior del claustre i les inhumacions es realitzen tant a les galeries com al pati. En aquest moment no es reconeix cap espai de circulació ni cap senyalització exempta de les sepultures. També tenen lloc les primeres reutilitzacions de les tombes antropomorfes, algunes de les quals apareixen amb cobertes d’esquistos. S’observa una reinhumació constant, que es presenta en forma de: dipòsits secundaris de petites dimensions al costat de la tomba reutilitzada, on apareixen els ossos agrupats en un farcell, totalment inconnexos; dipòsits secundaris dins la mateixa tomba, amb els ossos inconnexos situats sobre els peus o en un racó de la tomba de l’últim individu inhumat; dipòsits secundaris totalment barrejats amb el reompliment, on hi ha diversos individus; aquests reompliments sempre són a sobre de l’últim individu enterrat.
Tots els individus inhumats en aquest moment apareixen orientats est-oest, amb el crani a ponent, en decúbit dorsal i sense aixovar funerari.
Tercera fase. Segle XII
De la mateixa manera que en les dues fases anteriors, també en aquesta hi ha tres àmbits molt diferenciats: l’àmbit de l’església, amb les seves reformes, la construcció de noves dependències monàstiques i l’abandó gairebé total de l’espai intern del claustre com a necròpolis.
Reformes de l’església: es produeix l’esfondrament i la posterior reconstrucció de l’angle nord-oest de l’església abacial, així com part de la volta de la coberta de l’edifici. Amb aquesta reconstrucció, però, es redueix la longitud de la nau fins als darrers pilars de sustentació. Per a aquesta obra s’aprofitaren nombrosos carreus caiguts, com es pot observar a la façana de ponent, descurant-ne, però, la disposició original, en la qual l’element de bretxa tenia un paper decoratiu. S’afegiren alguns elements ornamentals a les finestres de l’absis, revestint-les amb esquistos, que contrasta amb la pedra vermellosa, i s’obrí una finestra circular a la capçalera de la nau, per sobre de la coberta de l’absis central.
Les noves dependències monàstiques: és en aquest segle que s’aixeca l’edifici rectangular del refectori, partint de l’angle sud-est de l’església i salvant un important desnivell del sòl natural.

Capitell de pedra calcària, amb relleus zoomorfs, que fou trobat durant les excavacions del 1997 i que procedeix del claustre del segle XII.
Servei d’Arqueologia de la Generalitat de Catalunya - J. Callis
La renovació del claustre també té lloc en aquest moment. Es manté l’estructura i els elements decoratius de la galeria nord, i es construeix una nova galeria a ponent, de la qual ha estat localitzada la fonamentació del podi. A aquesta galeria hi corresponen l’arcada que es conserva al mur nord, les lloses de coberta visibles al mur per sobre l’arcada, el mur extern que coincideix amb el mur est del refectori i els capitells calcaris que coneixem amb representacions zoomorfes, antropomorfes i vegetals. La galeria de llevant aprofita les mateixes estructures que les del període anterior, conservant la fonamentació dels murs intern i extern, així com alguna llosa de coberta, visible encara al mur extern del transsepte meridional. Pel que fa a la galeria sud, l’únic indici de la seva existència es troba al mur meridional, que podria correspondre al podi intern, sense que s’hagi conservat una referència correcta del mur extern.
L’accés al claustre des de l’exterior es troba desplaçat al nord, de manera que queda situat entre el mur sud del transsepte i l’antiga dependència monàstica del sector est, transformada en cisterna. El paviment d’aquest accés correspon al que resta de la fonamentació del mur de la nau de l’església dels segles IX-X.
La necròpolis: l’espai del cementiri es troba restringit a l’interior de les galeries i al pati central i constitueix la darrera fase funerària. En aquest moment les tombes són fetes amb lloses dretes i coberta, i molt sovint es produeixen reinhumacions en sepultures de períodes anteriors (segles IX-XI). Els individus apareixen inhumats en decúbit dorsal, orientats est-oest, i sense aixovar funerari.
Quarta fase. Segle XIII
En aquest moment tingué lloc la construcció de l’edifici que tanca el conjunt monàstic pel sud, destinat a dependències monacals, bé com a sala capitular, bé com a habitatge de l’abat, o ambdues funcions al mateix temps. Aquesta edificació comportà la remodelació de l’espai meridional del claustre amb la construcció d’un accés que comuniqués el nou edifici amb l’església. És amb aquesta finalitat que s’obrí un pas al mur sud que delimitava el claustre, adaptant una estructura esglaonada que salvava el desnivell del sòl natural i conduïa fins al mur de migdia de l’església.
La funció sepulcral de la zona del claustre és ja només esporàdica, i es limita a dues tombes de planta rectangular, de grans dimensions i molt fondes, tallades a la roca, que han estat localitzades al sector est de la galeria nord. Aquestes sepultures actuen com a osseres, i s’ha pogut observar la utilització de taüts de fusta, dels quals s’han conservat els claus de ferro.
Les accions bèl·liques del final del segle XIII inicien una època de conflictes continuats i provoquen la fortificació del monestir. La manifestació d’aquesta funció defensiva es pot observar en la construcció d’un fossat a l’est dels absis de l’església. Aquest fossat, tallat a la roca mare, segueix la silueta dels absis del monestir; al nord i a llevant el seu tall és completament vertical, i al sud està tancat per un mur de pedra seca.
Al segle XIII aquest fossat funcionà com a dipòsit de bales de catapulta, projectils esfèrics de grans dimensions tallats en pedra calcària granítica, destinats a la defensa del monestir.
Cinquena fase. Segles XV-XVI
EI segle XV és un període de decadència marcat per la marxa i la posterior instal·lació a Castelló d’Empúries de l’abat de Sant Quirc; en aquest moment només hi vivien al monestir tres monjos. És segurament durant aquest segle que tingué lloc l’amortització del fossat i el seu reompliment.
L’any 1592, per un decret de Felip II, el conjunt monàstic de Sant Quirc de Colera passà a dependre de Sant Pere de Besalú. Ja al segle XVII, la casa de l’abat, igual que totes les dependències adjacents, restaren convertides en masia. És en aquest moment que es construí un pou al centre del fossat, el qual fou construït amb pedra seca.
Conclusions
Les contínues transformacions del monestir estan directament relacionades amb les circumstàncies històriques que li tocà viure al llarg dels segles. Des de l’establiment de la comunitat monàstica benedictina i la seva expansió als segles IX-X, passant per un moment àlgid tant políticament com econòmicament als segles XI i XII, fins que les conteses bèl·liques li prengueren el caràcter religiós per a transformar-lo en un important enclavament militar a partir del segle XIII.
Així veiem que la planta ideal del monestir, que s’assoleix en el moment de plenitud del romànic, queda inoperant davant el nou caràcter defensiu que s’imposà des de la darreria del segle XIII en el conjunt de Sant Quirc. (DCR-BAF-MTM)
Bibliografia
Bibliografia sobre l’església
- Pèire de Marca: Marca hispanica, sive limes hispanicus, col·l. “Baluze”, París 1688, c. 484, 488, doc. CLXXXII; c. 1016, doc. CCCX; c. 1192.
- Jeroni Pujades: Crónica Universal del Principado de Cataluña, vol. V, Barcelona 1829, llibre VIII, cap. XVIII, pàgs. 210-213.
- A. Merino i J. de la Canal: España sagrada…, vol. 45, Madrid 1832, ap. XXIX.
- Jaume Villanueva i Astengo: Viage literario a las iglesias de España, vol. XV, Madrid 1851.
- Antoni Balmanya: Notes interessants sobre Espolla, Culera, Sureda y Bausitjas, “Memoria de l’Associació Catalanista d’Excursions Científicas”, vol. II, 1878.
- Josep Pella i Forgas: Historia del Ampurdàn…, Barcelona 1883, pàgs. 377-379.
- Fidel Fita i J. Vilanova: Espolla y Colera. Antigüedades protohistòricas e históricas de aquella región pirenaica en la provincia de Gerona, “Boletín de la Real Academia de la Historia”, núm. 17, Madrid 1890, pàgs. 136-152.
- Francesc Monsalvatje i Fossas: Noticias históricas, vol. VIII, Olot 1896.
- Josep Puig i Cadafalch, Antoni de Falguera i Josep Goday i Casals: L’arquitectura romànica a Catalunya, vol. III, Institut d’Estudis Catalans, Barcelona 1911, pàgs. 206-209, 338-339 i 427.
- Josep Puig i Cadafalch: La geografia i els orígens del primer art romànic, Barcelona 1930, pàg. 268.
- Josep Rius i Serra: Rationes decimarum Hispaniae (1279-1280), vol. I, CSIC, Barcelona 1946.
- Eduard Junyent: Catalogne romane, vol. I, col·l. “Zodiaque”, Sainte-Marie de la Pierre-qui-Vire, Yonne 1960, pàg. 33.
- Alexandre Deulofeu: L’Empordà, bressol de l’art romànic, Barc ona 1961, pàgs. 64 i 109-114.
- Ramon d’Abadal i de Vinyals: Els primers comtes catalans, ed. Vicens-Vives, Barcelona 1965, pàg. 264.
- Ramon Muntaner: Crònica, a les quatre grans cròniques, edició a cura de Ferran Soldevila, Ed. Selecta, Barcelona 1971, cap. CXXII-CXXIII, pàgs. 779-782.
- Walter Muir Whitehill: L’art romànic a Catalunya. Segle XI, Edicions 62, Barcelona 1973, pàg. 39.
- Ramon Vall i Rimblas: El monestir de Sant Quirze de Colera, S adell 1974.
- Antoni Pladevall: Colera, monestir de Sant Quirc de, dins Gran Enciclopèdia Catalana, vol. 5, pàg. 306.
- Joan Badia i Homs: Aportacions a l’estudi del pre-romànic empordanès, “Revista de Girona”, núm. 78, Girona 1977, pàg. 25.
- Joan Badia i Homs: L’arquitectura medieval de l’Empordà, vol. II-B (Alt Empordà), Diputació de Girona, Girona 1981, pàgs. 156-173, 182-188 i 190; Girona 1985, 2a. ed., Notes a la segona edició, pàgs. 599-605.
- Xavier Barral i Altet: L’art pre-romànic a Catalunya. Segles IX-X, Edicions 6, Barcelona 1981, pàgs. 207-208.
- Eduard Junyent: L’arquitectura religiosa a Catalunya abans del romànic, Curial Edicions Catalanes - Publicacions de l’Abadia de Montserrat, Textos i Estudis de Cultura Catalana, núm. 3, Ba elona 1983, pàg. 106.
- Ignasi Baiges i M. Lluïsa Cases: Catàleg de documents en pergamí de l’arxiu de la comtal vila de Besalú, (inèdit).
Bibliografia sobre la làpida
- Francesc Monsalvatje i Fossas: Noticias históricas, vol. VIII, Olot 1896, pàg. 75.
- Joan Badia i Homs: L’arquitectura medieval de l’Empordà, vol. II-B (Alt Empordà), Diputació de Girona, Girona 1981, pàg. 172.
Bibliografia sobre l’altar
- Joan Badia i Homs: L’arquitectura medieval de l’Empordà, vol. II-B (Alt Empordà), Diputació de Girona, Girona 1981, pàgs. 174-175.
Bibliografia sobre les intervencions arqueològiques
- Eschapasse, 1963; Baig, 1987, pàgs. 231-273; Heitz, 1987; Vendrell.