Situació

Part del mur de migdia, amb la porta d’entrada d’arc de mig punt, avui aparedada.
ECSA - J. Ponsich
L’antiga església parroquial de Nils, avui completament desafectada, s’ha convertit en una dependència d’un habitatge particular. Nils es troba a llevant de Pontellà, arran de la Canta-rana.
Mapa: IGN-2548. Situació: Lat. 42° 37’ 45,6” N - Long. 2° 50’ 49,2” E.
S’arriba a Nils des de Pontellà per la carretera D-23. (PP)
Història
El vilar de Nils (villa Asinilos) és esmentat el 930 en el testament del prevere Ànsila, el qual donava a Santa Eulàlia d’Elna l’alou que hi tenia. L’església d’Elna rebé altres donacions d’alous a Nils els anys 946, 957 i 986, i Sant Pere de Rodes n’hi posseïa també el 982.
Els templers del Masdéu adquiriren, entre el 1133 i el 1270, l’essencial del territori de Nils; la senyoria els fou reconeguda l’any 1271. Els hospitalers els succeïren (1309) com a senyors del terme fins a la fi de l’antic règim.
L’església de Santa Maria de Nils és esmentada per primera vegada l’any 986, en una donació d’un mas situat a Nils que afrontava amb el camí que conduïa a Santa Maria.
Al segle XVII es construí un nou temple parroquial i l’antiga església es desafectà. Avui resta sense culte. (PP)
Església

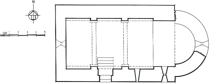
Planta d’aquesta església, amb el traçat originari de l’absis, avui arruïnat.
R. Mallol, segons informació de J. Foguet
És una església d’una sola nau coberta amb una volta de canó sobre tres arcades laterals per banda i reforçada per tres arcs torals. Era capçada a llevant per un absis semicircular que tenia volta de quart d’esfera. Actualment l’absis és en ruïnes i la nau ha estat força transformada en convertir-se en dependència d’un habitatge. L’interior resta dividit en dues plantes per un pis de fusta.
Exteriorment són visibles els murs de migdia i de ponent de la nau i les restes de l’absis. Al costat de tramuntana s’afegeixen construccions posteriors, que també han afectat la part alta dels altres murs i l’actual teulat, d’un sol vessant.
La porta d’entrada és situada a l’extrem occidental de la façana de migdia. És d’un arc de mig punt fet amb dovelles curtes i amples, sobre el qual queden restes d’haver estat extradossat. Actualment és tapiada.
En aquest mateix mur hi ha dues finestres romàniques que, curiosament, són de factura ben diversa. Una d’aquestes finestres és d’un sol biaix, molt estreta, a mena de sagetera amb llinda monolítica d’arquet. L’altra és de doble esqueixada i de vessants força oberts, amb arcs de mig punt de dovelles de mida petita. En el frontis o façana de ponent hi ha una única obertura al centre: un ull de bou força gran de doble esqueixada.
De l’absis, en resta poc menys de la meitat del mur en el sector de migdia, fins a l’arrencada de la volta.
Els arcs interns són de mig punt. Els laterals, adossats als murs de la nau, tenen impostes de bossell. Les impostes dels arcs torals tenien decoració esculpida. En queda, especialment, una que presenta dues arcuacions de relleu molt destacat.
L’aparell dels murs d’aquesta església es caracteritza per l’ús de còdols, trencats o sense treballar, que s’han disposat en rengles força seguits i, sovint, inclinats. El morter és molt aparent en els junts. En alguns espais del parament de migdia s’han conservat les incisions imitant carreuada, a base de línies simples. Aquest aparell, força rústec, contrasta amb la talla i el poliment molt acurat dels carreus i altres elements de pedra sorrenca que formen les cantonades, les arcades i els marcs de les obertures. També era tallada amb el mateix tipus de pedra la cornisa de secció incurvada de la qual queden restes sobre el parament extern del mur meridional de la nau.
Per les característiques formals i d’estil podem pensar que aquesta interessant església correspon a un moment de transició entre l’arquitectura de la segona meitat del segle XI dels comtats nord-orientals catalans i la que serà pròpia del segle XII. (JBH)
Nosaltres la considerem del segle XI, a banda d’algunes modificacions al costat oest degudes als Templers (particularment, la creació d’una tribuna occidental sobre permòdols esculpits amb una creu dins un cercle). (PP)
Construcció
A poques passes de l’església antiga de Santa Maria de Nils, vers l’est i el sud-est, sobresurten poc del sòl les restes d’una edificació segurament d’època medieval. S’hi observen vestigis de diferents murs, de molt gruix, ara molt colgats per terres i vegetació, i en part destruïts pels edificis moderns d’aquest lloc. Possiblement una part dels fonaments correspon a la base d’una torre de planta semicircular, afegida a uns llenços o murs de fortificació. La construcció és a base de blocs voluminosos de pedres només desbastades i lligades amb morter.
Només una exploració arqueològica podria fer llum sobre aquestes restes. Pel seu emplaçament vora l’església i els indicis de pertànyer a un edifici fortificat, es pot tractar del casal que segurament els templers i més tard els hospitalers, senyors del lloc, tingueren a Nils. (JBH)
Bibliografia
- Monsalvatje, 1915, vol. 24, pàgs. 206-207
- Cazes, 1990, pàg. 37.