Situació

Detall d’absis on es remarquen, sota l’arrebossat modern, les arcuacions cegues i les bandes llombardes.
M. Catalán
El veïnat de Penedes, amb l’església dedicada a sant Ampèlit, és a l’extrem nord del terme de Llagostera, al o peu de la carretera de Llagostera a Calonge.
Mapa: L39-13(334). Situació: 31TDG962321. (MLlC)
Història
El topònim de Penedes, que significa “castell roquer”, fa sospitar de l’existència d’una fortificació d’aquest tipus en aquest indret. L’església, antiga parròquia del veïnat de Penedes i sufragània de Sant Feliu de Llagostera, no surt documentada fins al 1362, com a “Sancti Polei de Panadesio” (JVV).
Església
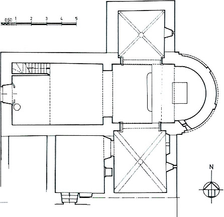
L’església és un edifici d’una sola nau coberta amb volta de canó de mig punt, reforçada per un arc toral de perfil apuntat, i capçada, a llevant, per un absis semicircular que s’obre directament a la nau, amb un curt tram presbiteral, que no es reflecteix en la planta. Aquesta estructura fou modificada, posteriorment, amb l’afegit de diverses construccions, especialment de dues capelles laterals, una a tramuntana, i l’altra a migdia, cobertes amb volta de creueria, que formen una mena de transsepte.

Planta d’aquesta església sufragània rural ampliada amb capelles que li donen una aparença de fals creuer.
Ramon Castells i Robert Vidal
A la part de migdia de l’absis s’obre una finestra de doble esqueixada reformada a la part interior. Les altres finestres que actualment té l’edifici són a les capelles laterals, i la porta s’obre al mur de ponent, que és coronat per un campanar d’espadanya d’un sol ull, també reformat.
Per les pervivències que resten a la façana de l’absis podem suposar que aquest devia tenir originàriament tres finestres, de les quals avui dues són aparedades, i la tercera, ja esmentada, fou molt modificada o bé no és al seu lloc original.
L’interior de l’església és totalment encalcinat, la qual cosa no permet escatir-ne el parament original ni l’abast de les reformes de què fou objecte l’edifici primitiu, visibles no solament a les dues capelles afegides, sinó també en el traçat de l’arc toral i a la façana de ponent. Hom no pot descartar, però, la hipòtesi que l’església fos allargada, o almenys que s’arribessin a fer reformes també en aquest sector.
Exteriorment, l’edifici és arrebossat, aspecte que probablement també correspongui a la construcció original, la part més vistent de la qual es concentra al sector de llevant, on és visible el volum de l’edifici original, per sota les ampliacions i sobrealçats, i molt especialment l’absis, que conserva la decoració amb els clàssics motius llombards del fris d’arcuacions, dividides en sèries de quatre per sengles lesenes.
És difícil, en el seu estat actual, escatir la història constructiva de l’església de Sant Ampèlit, però els elements del seu absis permeten situar l’origen de les parts visibles dins les formes de l’arquitectura pròpia del segle XI, amb una plena adopció dels modes llombards. (MLlC-JAA)
Bibliografia
- Monsalvatje, XVI, 1908, pàgs. 269-270.