Situació

Una perspectiva aèria de Sant Joan les Fonts, vora el riu Fluvià, amb la capçalera.
J. Todó-TAVISA
El poble de Sant Joan les Fonts, on es troba emplaçada l’església, és a 342 m d’altitud, al centr de la comarca, a tramuntana d’Olot, entre el riu Fluvià, que és a la seva esquerra, i la carretera que va a Castellfollit de la Roca, a la Vall de Bianya, al brancal de la Canya que la uneix amb Olot iamb la carretera d’Olot a Girona.
Mapa: 257M781. Situació: 31TDG605740.
Sant Joan les Fonts és a 4 km d’Olot per la carretera que va a Besalú. L’església del monestir és a 5 minuts del poble, a la vora del riu Fluvià, a la part inferior de la població. (JVV)
Història
Al mateix lloc on s’alça avui l’antiga i bella església prioral de Sant Joan les Fonts, la documentació parla de l’existència d’un temple anterior consagrat l’any 958 pel bisbe de Girona Arnulf. Consta, segons l’acta de dedicació, que aquesta església tenia com a titulars “Sancti Stephani Martir et Sancti Mikaelis Arcangelis et Sancti Johannis Babtista” i havia estat reedificada pel levita Wisandus, els seus germans Oliba, Sunifred i Morgadus i el seu nét Wandalgaude; a més de les donacions que l’esmentat levita li va fer amb motiu d’aquest acte solemne, el bisbe Arnulf li atorgà, com era acostumat, els delmes, les primícies i les oblacions dels fidels.
Acta de consagració de l’església de Sant Joan les Fonts (10 de gener de 958)
Arnulf, bisbe de Girona, consagra l’església de Sant Esteve, Sant Miquel i Sant Joan les Fonts, situada al comtat de Besalú, a la vall de Bianya, que ha estat reedificada pel levita Guisad i els seus germans. l’església és dotada amb ornaments, llibres i terres i el bisbe li cedeix els delmes, les primícies i les oblacions.
"In nomine domini Dei eterni. Anni DCCCCLVIII, IIII idus ianuarii, feria I, veniens vir reverentissimus, domnus Arnulfus sanctae Ierundensis ecclesiae humilis episcopus ad consecrandas ecclesias quae sunt sitas in comitatum Bisuldunense, in locum quae nuncupant valle Biania, iusta flumen Fluviano. Et sunt ipsas ecclesias in onore sancti Stephani martir et sancti Mikaelis arcangelis et sancti Iohannis babtista, quem rehedificavit Wisandus levita cum fratibus suis, id est: Oliba et Sonifredus et Morgadus et suo nepoto Wandalgaude.
Cunctorum fidelium devocioni congruit ut ad celestem patriam toto desiderio anelent, quatenus sancti monitis inerendo, coelestium bonorum pociantur effectibus. Hunc igitur secuti sunt morem, ab exordio sanctae Ecclesiae omnes religiosi sanctique viri, qui in ipsa ecclesiastica edocati piis operibus insudare et ipsa Ecclesia et nutrire et augmentare satagerunt. Horum itaque forma sequentes oportet nos ita celestia inspicere ut ad caduca respuentes ad sublimia manencia toto ad nisu tendere valeamus(*).
Denique in Dei nomine habent ipsas ecclesias de ministerio ecclesiastico albas III, amictos II, stolas III, kasullas II, manipulos III, kalicen I, cum sua patena, fecestergulos duos cum sirga, misales III, lecionarios II et alios misales minores II et sposito. Et ego Teudericus presbiter dono antiphanario I. Et ego Wisandus suprascritus dono ad ipsas ecclesias aulodo quem habeo in ipsa paroquia, id est: kasas cum curtes et ortos et ipsos arbores quod ibidem sunt, et terras quod emit de Trasovado et de uxore sua Chintilone, et ipsos II kampos quae ego emit de Belone, sicut in ipsas meas scripturas resonant. Et ego Teudericus presbiter cum fratre meo Aurucio donamus kampum I, quod est super ipsas ecclesias; afrontat de oriente in ipsa via quod pergit a domum Sancti Stephani, ipsa nostra porcione. Et ego Poncius et uxor mea Fachilo donamus kampum I in ipsa Molaria; habet afrontacione de orientis in terra Sancti Stephani. Et ego Wisandus levita et Wandalgaudes et Amelius, quod sumus elemosinari de Vingilane condam, donamus de vinea semodiata I, in locum quae dicunt quae dicunt Kabriolo. Et ego Amelius dono pecia I de terra, ad ipse […] Betedone(*), afrontat de orientis in ipso semitario quod inde pergit. Et ego Ato cum uxor sua Persona donamus kampo I, ad ipsa Revoira, quod afrontat de oriente in terra de nos donatores. Et ego Walberts dono campos II, quod sunt iusta ribulo Fluviano et afrontat de orientis in terra de Sancta Maria de Riopullo, propter remedium animae seniori meo Mironi levita. Et ego Argemirus com uxore nomine Quindiberga et Giskafredus cum uxore Flamulia donamus clauso I, cum suis arborius; afrontat de oriente in ipsa estrada. Et ego Froila et Eldovadus et Leopadria et Animia donamus campo I, in locum que vokant Moleira, ipsa nostra porcione, quod afrontat de oriente in ipso torrente. Et ego Ermemirus et uxor(*) sua Ermetructe donamus terra quod est ad ipsas Fontes; afrontat de oriente in terra de Cixilo vel heredes suos. Et ego Mazanella cum filio meo Sesuvigius et Visaleigo donamus terras in ipsa Kalmo, quod afrontat de oriente in terra de Gargila vel suos heredes. Et ego Fruila cum filio vel filia, terra in ipsa Kalmo, quod afrontat de oriente in terra de Sonifredus. Et ego Barone et uxor sua Servunia et ego Mesendus et uxor sua Arcedonia donamus kampo I in Campu Longo, quod afrontat de oriente in terra de Teudaleigo, ipsa nostra porcione. Et ego Wisandus presbiter et frater meo Bradila et Guisila donamus terra in ipsa Plana de Sancti Stephani, quod afrontat de oriente in ipso torrente, ipsa nostra porcione. Et ego Oriolus et Saborido et Maskarone donamus de vinea sesteratas(*) V, in locum Solano, quod afrontat de oriente de nos donatores. Et ego Vidale et Trasovado donamus de terra semodiata I, quod afrontat de oriente in ipsa estrada. Et ego Adroavo et Argesindo et Ermegilde et Sonifredus et Alaricus et Giscafredus et Alsendus donamus terra in ipsa Plana, quod afrontat de oriente in ipsa estrada. Et ego Lupus dono de terra sesteratas V, in ipsa Moleira; afrontat de oriente in terra Olíbano.
Quapropter et ego Arnulfus gratia Dei episcopus dono atque concedo ad ipsa ecclesiae auprascripta decimas et primicias et oblaciones fidelium de villas quae nominat […](*)."
Original: Perdut.
Jaume Villanueva i Astengo: Viage literario a las iglesias de España, vol. XIII, Madrid 1850, apèndix 13, pàgs. 249-250.
Francesc Monsalvatje i Fossas: Noticias históricas…, vol. IV, Olot 1892, apèndix IX, pàgs. 191-193.
Maria de Bolòs: La comarca de Olot, Barcelona 1977, apèndix 13, pàg. 465.
Traducció
"En nom del senyor Déu etern. L’any 958, el dia 4 de l’idus de gener, dilluns, vingué un home molt reverend, el senyor Arnulf humil bisbe de la santa església de Girona, per consagrar les esglésies que hi ha al comtat de Besalú, al lloc que anomenen vall de Bianya, al costat del riu Fluvià. I les esglésies són en honor de sant Esteve màrtir, sant Miquel arcàngel i sant Joan Baptista, les quals va reedificar el levita Guisad amb els seus germans Oliba, Sunifred i Morgat i el seu nebot Guandalgot. És adequat a la devoció de tots els fidels que anhelin amb ple desig la pàtria celestial, de manera que, atrets pels consells dels sants, assoleixin amb les virtuts els béns celestials. Així, doncs, han seguit aquest costum, des del començament de la santa Església, tots els religiosos i homes sants, educats en les coses eclesiàstiques, a fer bones obres i esmerçar-se a tenir cura de l’església i a augmentar-ne [els béns]. Així, doncs, seguint les normes d’aquests, cal que nosaltres siguem capaços d’esguardar les coses celestials, de manera que rebutgem les coses caduques i tendim amb totes les forces cap a les coses de dalt, que són duradores.
En fi, en nom de Déu, aquestes esglésies tenen amb relació al ministeri eclesiàstic, 3 albes, 2 amits, 3 estoles, 2 casulles, 3 maniples, 1 calze amb la seva patena, dos mocadors de seda(*), 3 missals, 2 leccionaris i 2 altres missals menors i 1 llibre “expòsit”(*). I jo Teuderic prevere dono 1 antifonari. I jo Guisad, esmentat més amunt, dono a les esglésies un alou que tinc a la parròquia, format per cases amb corts i horts i els arbres que hi ha, i terres que vaig comprar a Trasuad i a la seva muller Quíntilo, i els dos camps que jo vaig comprar a Bell, tal com són esmentats en les meves escriptures. I jo Teuderic prevere amb el meu germà Auruç donem la nostra part d’un camp que hi ha sobre les esglésies; afronta a llevant amb la via que mena a la casa de Sant Esteve. I jo Ponç i la meva muller Fàquilo donem un camp a la Molera; afronta a llevant amb una terra de Sant Esteve. I jo Guisad levita i Guandalgot i Ameli, que som almoiners del difunt Guígila donem mitja mujada de vinya, al lloc anomenat Cabriol. I jo Ameli dono una peça de terra a […]; afronta a llevant amb el corriol que hi va. I jo At amb la seva muller Persona donem un camp a la Rovira, que afronta a llevant amb la terra de nosaltres donadors. I jo Gualberts dono dos camps que són al costat del riu Fluvià i que afronten a llevant amb la terra de Santa Maria de Ripoll, per a remei de l’ànima del meu senyor Mir levita. I jo Argemir amb la muller anomenada Quindiberga i Giscafred amb la muller Flamúlia donem un clos amb els seus arbres; afronta a llevant amb l’estrada. I jo Froila i Eldovat i Lleopàdria i Anímia donem la nostra part d’un camp al lloc que diuen Molera, el qual afronta a llevant amb el torrent. I jo Ermemir i la seva muller Ermetruit donem una terra que és a les Fonts; afronta a llevant amb la terra de Quíxilo i dels seus hereus. I jo Maçanella amb el meu fill Sesovigi i Guisaleic donem terres a la Cau, que afronten a llevant amb una terra de Gàrgila o dels seus hereus. I jo Fraila amb el meu fill i la meva filla dono una terra a la Cau que afronta a llevant amb una terra de Sunifred. I jo Baró i la seva muller Servúnia i jo Mesend i la seva muller Arcedònia donem la nostra part d’un camp a Campllong, que afronta a llevant amb una terra de Teudaleic. I jo Guisad prevere i el meu germà Bràdila i Guísila donem la nostra part d’una terra a la Plana de Sant Esteve, que afronta a llevant amb el torrent. I jo Oriol i Saborit i Mascaró donem 5 sesterades de vinya al lloc dit Solà, que afronten a llevant amb una terra de nosaltres donadors. I jo Vidal i Trasuad donem una mitja mujada de terra, que afronta a llevant amb l’estrada. I jo Adroer i Argesind i Ermegild i Sunifred i Alaric i Giscafred i Alsend donem una terra a la Plana, que afronta a llevant amb l’estrada. I jo Llop dono 5 sesterades de terra a la Molera; afronta a llevant amb la terra d’Oliba. Per la qual cosa, jo Arnulf, bisbe per la gràcia de Déu, dono i concedeixo a l’església més amunt escrita, els delmes i les primícies i les oblacions dels fidels en relació amb les viles anomenades (…)."
(Trad.: Jordi Bolòs i Masclans)
El temple, situat dins els dominis dels vescomtes de Besalú, després de Bas, passà aviat a ésser conegut amb la sola advocació de Sant Esteve i Sant Joan, i encara amb el pas del temps, sota aquesta darrera denominació.
A l’últim terç del segle XI, en concret l’any 1079, els vescomtes de Besalú Udalard Bernat de Milany i la seva muller Ermessenda, feren donació de l’església de Sant Joan al monestir benedictí de Sant Víctor de Marsella i al seu abat Ricard, per tal que hi edifiqués un priorat; segons s’expressa en el text de l’escriptura, els esmentats vescomtes cediren “Sancto Victori, Massiliensis cenobii, nostrum proprium alodium, videlicet aecclesiam Sancti Johannis de Fontibus, cum omnibus suis directis”. També, acompanyant la donació, Udalard dotà el priorat benedictí acabat de fundar amb l’església de Santa Eulàlia de Begudà, mentre que la vescomtessa Ermessenda, previ consentiment del seu espòs, li atorgà les de Sant Martí de Capsec, Sant Cristòfol les Fonts, Sant Pere de Lligordà i Santa Maria de Castellar de la Muntanya. El primer prior de les Fonts, Gunarri, fou nomenat el mateix any, ja que la seva signatura figura en una carta d’establiment d’un mas a la parròquia de Capsec, en benefici de Guillem Arnal de Llastostella.
Donació de Sant Joan les Fonts a Sant Víctor de Marsella (darrer quart del segle XI)
El vescomte Udalard i la seva muller Ermessenda donen a l’església de Sant Joan les Fonts a l’abadia de Sant Víctor de Marsella. També s’esmenten les esglésies que depenien de la de Sant Joan.
"Notum sit cunctis quod nos, id est Udalardus uicecomes et Ermessindis uicecomitissa, dedimus Sancto Victori, Massiliensis cenobii, nostrum proprium alodium, videlicet eclesiam Sancti Iohannis de Fontibus, cum omnibus suis directis, in quibus neque episcopus neque ulla ecclesiastica secularisve persona aliquid habet uel habere debet. Episcopus vero nullum usaticum, nullum censum ibi unquam habuit nec habere debet, nec unquam quesivit, nisitantum crisma et oleum sanctum et consecrationes altarium et ordinationes clericorum. Predicte ecclesie Sancti Joannis dedimus ecclesiam Sancte Eulalie Bagudani. Ego uero Ermessindis uicecomitissa, superstes uiri mei predicti Udalardi, dedi eidem Sancto lohanni ecclesiam Sancti Christofori de Fontibus Superioribus et ecclesiam Sancte Marie de Castellario et ecclesiam Sancti Petri Logordani. Ecclesiam uero Sancti Martini de Cuili Sicco dederunt alii boni homines, quorum erat proprium alodium."
Original: Perdut.
Guerard: Collection de documents inédits sur l’Histoire de Trance, núm. 701.
Francesc Monsalvatje i Fossas: Noticias históricas…, vol. XI, Colección diplomática del condado de Besalú, Olot 1901, doc. 345, pàgs. 322-323.
Traducció
"Sigui conegut per tothom que nosaltres, Udalard vescomte i Ermessenda vescomtessa, donàrem a Sant Víctor, cenobi de Marsella, el nostre alou propi, això és l’església de Sant Joan les Fonts, amb tots els seus drets, dels quals ni el bisbe ni cap persona ni eclesiàstica ni secular no en té ni n’ha de tenir cap. El bisbe mai no hi ha tingut ni hi ha de tenir cap usatge, ni cap cens, ni mai no ho ha demanat, llevat de la crisma i de l’oli sant i de les consagracions d’altars i les ordenacions de clergues. A la dita església de Sant Joan li donàrem l’església de Santa Eulàlia de Begudà. Jo Ermessenda vescomtessa, amb permís del meu marit, el dit Udalard, vaig donar a la mateixa Sant Joan l’església de Sant Cristòfol les Fonts i l’església de Santa Maria de Castellar i l’església de Sant Pere de Lligordà. Uns altres bons homes donaren l’església de Sant Martí de Capsec, dels quals era alou propi."
(Trad.: Jordi Bolòs i Masclans)
A partir d’aquesta data se succeeixen a través de la documentació nombroses donacions a favor del priorat de Sant Joan, de les quals cal destacar, per exemple, l’efectuada l’any 1094 pels mateixos vescomtes Udalard i Ermessenda, els quals li cediren dos masos i una borda situats a la parròquia de Capsec, amb tots els drets que d’ells se’n derivessin. També aquest any, un personatge dit Ademar Ramon, senyor d’Aiguanegra, llegà en testament “ad cenobio Sancti Johannis et Sancti Estephani de Fontes subteriores, corpus meum cum mea parte de ipso manso de alodio que vocant Estevaneche”. Sabem, doncs, mitjançant aquesta acta testamentària, que Ademar Ramon li cedí, ultra altres béns explicitats en l’escriptura, el seu cadàver per tal d’ésser-hi sepultat, i la part que li corresponia del mas aloer d’“Estevaneche”, pertanyent a la parroquia de Capsec. És important fer notar com en alguns instruments dels segles XI i XII l’església de Sant Joan (i/o Sant Esteve) és anomenada de les “Fontibus” o “Fontes inferiores”, o a vegades “subteriores”, com és el cas que acabem d’esmentar, per tal de distingir-la de la de Sant Cristòfol les Fonts, correntment escripturada de les Fonts “superiores”.
Donació al priorat de Sant Joan les Fonts (17 de juliol de 1100)
Irudgarda, dona, i els seus fills, Pere Cabrer i Maria, fan lliurament a Sant Joan les Fonts d’un alou que tenien al comtat de Besalú, a la parròquia de Sant Esteve les Fonts, al lloc anomenat la Plana. S’esmenten les condicions en les quals ho podran continuar posseint.
"In nomine Domini. Ego Irudkards femina et filio meo Petro Cabrer et filia mea Maria donatores sunt domino Deo et Sancti Iohannis de Fontes alodem nostrum quem habemus in comitatu Bisuldunense, in parrochia Sancti Stephani de Fontibus, in locum que vocant ad ipsa Plana sive per suas adiacentias, et advenit nobis per vocem parentorum nostrum vel per donatione aut per comparatione aut per qualicumque voce. Habet affrontaciones ipsum alodium supra scriptum de parte orientis in Kastro Fullit, de meridie in serra de Molera, de occiduo in fluvium de Rivodazer, de circi in montem de Palomeras. Quantum infra istas IIII affrontaciones nos habemus vel habere debemus per ullasque voces sic donamus et tradimus in potestate Deo et Sancti Iohannis qui supra dictus est, totu ab integru, et manifestum. In tali videlicet conventu vel racione ut nos teneamus et potestasita nostra et donamus tascham de blad et quart de vino, perna I, spatulas I, parilio I de gallines, parilio I de fugaces, tertia parte de qussura, per unnumquemque annum.(*) De nostro iure(*) in potestate Sancti Iohannis tradimus dominio et potestate, ita ut ab odierno die [et tempore… nos] donatores nec ullus ex nostris filiis […] vel ex aliis quibuslibet ex personis hanc nostra donationem frangere vel in aliquo dirumpere non adeamus vel audeant.(*) […] qui facerunt in duplo prescriptum hereditate componat. Actu est hoc XVI kalendas augusti, anno XL regni Phillippus regis. Sig + num Irudkards, sig + num Petri, filio suo, sig + num Maria, qui hanc carta fecimus et propriis manibus firmamus ac testes firmare rogavimus. Sig + num Arnallus Guazalli. Sig + num Raimundus Bernardus. Sig + num loan Mir […]. Petrus, qui oc scripsit prahefato die et anno."
Original: A començament del segle XX, era a l’Arxiu de la Delegació d’Hisenda de Girona.
Francesc Monsalvatje i Fossas: Noticias históricas…, vol. XI, Colección diplomática del condado de Besalú, Olot 1901, doc. 391, pàgs. 368-369.
Traducció
En nom del Senyor. Jo Irudgarda dona, i el meu fill Pere Cabrer i la meva filla Maria som donadors al senyor Déu i a Sant Joan les Fonts del nostre alou que tenim al comtat de Besalú, a la parròquia de Sant Esteve les Fonts, al lloc anomenat la Plana o a la seva rodalia, que ens prové dels nostres pares o per donació o per compra o per qualsevol altra procedència. Aquest alou té les afrontacions a llevant amb Castellfollit, a migjorn amb la serra de Molera, a ponent amb el riu de Ridaura, a tramuntana amb la muntanya de Palomeres(*). Tot allò que tinguem dins d’aquestes quatre afrontacions o haguem de tenir-hi per qualsevol dret així ho donem i cedim en potestat a Déu i a Sant Joan, com és dit més amunt, íntegrament, i és manifest. d’acord amb el següent pacte o raó: Que nosaltres ho tinguem i sigui nostra la potestat, i donem la tasca dels cereals i el quart del vi, un pernill, una espatlla, un parell de gallines, un parell de fogasses, la tercera part de la cossura de cada any. Ho cedim del nostre dret a la potestat de Sant Joan, amb el domini i la potestat, de tal forma que de avui endavant [lliurement, en nom de Déu, hi tingui potestat, i que ni nosaltres] donadors, ni cap dels nostres fills o qualsevol altra persona no gosin o no gosi trencar o destruir aquesta nostra donació, [però si ho fessin] pagui el doble del preu de la dita herència. Això ha estat fet el dia 16 de les calendes d’agost de l’any 40 del regnat del rei Felip. Signatura d’Irugarda, signatura de Pere fill seu, signatura de Maria, que férem aquesta carta i la signem amb les mans pròpies i hem pregat els testimonis que la signessin. Signatura d’Arnau Guadall. Signatura de Ramon Bernat. Signatura de Joan Mir […]. Pere que ho escrigué el dia i l’any dits més amunt."
(Trad.: Jordi Bolòs i Masclans)
Al començament del segle XII, l’any 1106, hi ha la confirmació per part del bisbe de Girona Bernat Humbert de la donació feta uns anys abans pels vescomtes Udalard i Ermessenda de l’església de les Fonts al monestir de Marsella; en aquesta carta de ratificació atorgada en favor de l’abat de Sant Víctor, l’esmentat prelat posa de manifest que els vescomtes “cederunt et gratuito animo concesserunt ecclesiam Sancti Johannis de Fontibus inferiores S. Victori martyri Massiliensi, ad construendum ibi coenobium monachorum”, és a dir, que Udalard i Ermessenda feren la donació amb la tàcita condició que hi fos bastit un cenobi. També en aquesta mateixa escriptura el bisbe Bernat Humbert confirmà al monestir benedictí de Marsella totes les esglésies amb què havia estat dotat el priorat de Sant Joan, afegint-hi a més noves donacions. Pocs anys després, el 1127, s’enregistrà, amb un contingut similar, una nova confirmació efectuada pel bisbe de Girona Berenguer Dalmau, a favor de Bernat, aleshores abat de la comunitat de Marsella.
Segons indiquen diversos autors, la nova església monacal de la comunitat de Sant Joan fou consagrada l’any 1117, any en què molt probablement començà a ésser utilitzada com a parròquia. Al llarg dels segles XII i XIII el priorat augmentà considerablement les seves propietats, gràcies a les donacions fetes per part d’alguns nobles de la contrada, però molt especialment per les que efectuaren-diversos membres de la casa vescomtal de Bas a través de testaments o simples cartes de donació. També gaudí de certs privilegis, com el que li atorgaren l’any 1191 Ponç II de Cervera, vescomte de Bas, i la seva muller Marquesa de Ribelles, pel qual tant els monjos com els clergues que habitaven al priorat i a les parròquies vescomtals de Santa Eulàlia de Begudà i Santa Maria de Castellar de la Muntanya, poguessin moldre el gra als molins de la seva propietat amb certes condicions.
Cal destacar entre les donacions les realitzades per Bernat de Bellvespre, militar de l’exèrcit de Mallorca, mitjançant la seva acta testamentària atorgada l’any 1229; hi disposa que si la seva mort s’esdevenia en terres del bisbat gironí el seu cos havia d’ésser sepultat al cementiri de Sant Joan les Fonts, i llegà a la seva església 300 sous per tal que nit i dia cremés una llàntia a l’altar de Santa Maria. Així mateix féu donació a la comunitat d’un mas situat a la parròquia de Capsec, juntament amb la quantitat de cent sous i altres cinc per cadascun dels clergues que tenien cura del temple.
D’altra banda el cenobi benedictí de les Fonts figura esmentat els anys 1279 i 1280 dins la relació de temples que contribuïen amb el delme al sosteniment de les croades, el qual cenobi és escripturat ambdós anys respectivament com a “prioratu de Fontibus’” i “prioratu Sancti Iohannis de Fontibus”. De l’any següent, el 1281, data un capbreu que el prior Gaucelm manà fer de la parròquiade Sant Martí de Capsec, els béns de la qual, juntament amb els que la comunitat posseïa a la de Santa Margarida de Bianya, foren venuts l’any 1296 pel prior Joan a favor d’Huguet Despujol i la seva muller Elisenda, estipulant-se per la venda un preu de setze lliures i mitja.
Al priorat de Sant Joan residí els primers segles de la seva existència una comunitat formada aproximadament per cinc monjos, que quedaren reduïts a dos en el transcurs del segle XIV. Durant l’esmentada centúria sovintegen, entre la documentació generada pel monestir, els capbreus fets confegir per diversos priors, a fi d’inventariar les propietats i les terres que el cenobi posseïa; també són freqüents les cartes de reconeixement d’homes propis i sòlius a favor dels priors. La copiositat d’aquests tipus d’instruments pot trobar-se en part relacionada per la necessitat de conèixer els danys causats en les possessions i els homes del priorat després de la gran epidèmia de la pesta negra.
L’any 1372 el rei Pere III de Catalunya, per tal d’atendre les despeses ocasionades per la guerra amb Sardenya, vengué a diversos abats i priors de cenobis catalans els drets de bovatge que li eren propis en nombroses viles, castells i llocs, entre els quals és citada en l’escriptura la “parrochia Sancti Johannis de Fontibus”, i també el nom del prior d’aleshores, anomenat Bertran. En un altre ordre de coses, l’església de les Fonts apareix esmentada dins els nomenclàtors de la diòcesi de Girona confegits al final d’aquest segle, com a “Ecclesia parrochialis Sancti Iohannis de Fontibus qui est prioratus”.
Una última referència corresponent al segle XIV indica que el rei Joan I de Catalunya, en compensació per les gran sumes de diners que Hug Ademar de Santa Pau li havia prestat per a la conquesta de Sicília, li vengué l’any 1393 en franc alou les jurisdiccions de diverses parròquies, entre les quals és esmentada la de “Sent Joan Desfons”, pel preu total de 2 000 florins.
Al segle XV el monestir ja no tingué comunitat, i la parròquia, adscrita al priorat, passà a ésser regida per un vicari perpetu. Possiblement a causa de l’esllanguiment de la seva vida religiosa, el papa Martí V encomanà el cenobi de Sant Joan, per una butlla datada l’any 1424, al monestir de Sant Pere de Besalú, prenent aleshores el càrrec de prior Pere de Mata, monjo candeler de l’esmentada abadia. A partir, doncs, d’aquesta data el priorat restà definitivament separat de la comunitat benedictina de Sant Víctor de Marsella.
Amb posterioritat, el rei Joan II, a petició dels homes de Castellfollit, Sant Jaume de Begudà, Sant Pere de Montagut, Santa Maria de Castellar i “Sent Joan Çesfonts”, incorporà, l’any 1463, la jurisdicció d’aquests llocs i tots els seus termes a la corona, amb la prohibició expressa d’alienar.
Ja al final del segle XVI, el papa Climent VIII ordenà, l’any 1592, la unió dels priorats de Santa Maria de Ridaura i Sant Joan les Fonts al monestir de Sant Pere de Camprodon; tanmateix en el moment de la seva incorporació a aquest cenobi, si bé es cert que la vida religiosa hi era molt escassa, el priorat tenia encara nombroses propietats, les rendes de les quals serviren per a contribuir al manteniment de la parròquia.
A l’interior de l’església i decorant l’absis central hi ha unes pintures murals fetes l’any 1957 per Núria Llimona.
L’església prioral de Sant Joan les Fonts fou restaurada després de l’any 1939, però gairebé és exempta de culte des que perdé la titularitat de parròquia. L’any 1981 fou declarada monument nacional. (MLIR)
Priorologi del monestir de Sant Joan les Fonts
Vegeu a continuació el priorologi del monestir de Sant Joan les Fonts, extret de Francesc Caula: Les parròquies i comuns de Santa Eulàlia de Begudà i Sant Joan les Fonts, Sant Joan les Fonts 1930, pàgs. 20-21.
| Gunarri | 1079 |
| Arnau | 1137 |
| Oliver | 1189-1191 |
| Pere | 1198 |
| Dalmau | 1206-1214 |
| Pere | 1215 |
| Guillem Pere | 1218-1219 |
| Bernât de Sant Joan | 1222-1226 |
| Guillem | 1233 |
| Bertrán | 1241 |
| Guillem | 1241-1242 |
| Eustaqui | 1243 |
| Deodat | 1251 |
| Tomás | 1252 |
| Bertrán | 1257-1263 |
| Bernât d’Esparc | 1268 |
| Gaucelm | 1269-1281 |
| Joan | 1292-1296 |
| Huguet de Vimenet | 1305-1315 |
| Joan de Montuell | 1325-1333 |
| Bartomeu Abalma | 1336-1356 |
| Guillem de Gal-liat | 1366-1374 |
| Bertrán de Tremat | 1375-1385 |
| Pere de Balsareny | 1384-1392 |
| Ramon de Socarrats | 1395 |
| Guillem de Pontons | 1398 |
| Pere de Fort | 1409-1417 |
| Guillem de Sant Joan | 1417-1423 |
| Pere de Mata | 1424-1430 |
| Vicenç | 1453 |
| Ramon Sala | 1459 |
| Joan Mainau | 1499-1500 |
| Miquel de Biure | 1507-1509 |
| Miquel de Queixàs | 1529-1548 |
| Francese de Corts | 1561-1567 |
| Galceran de Corts | 1574 |
| Pere de Mena | 1578 |
| Pau Costa | 1583-1601 |
Església

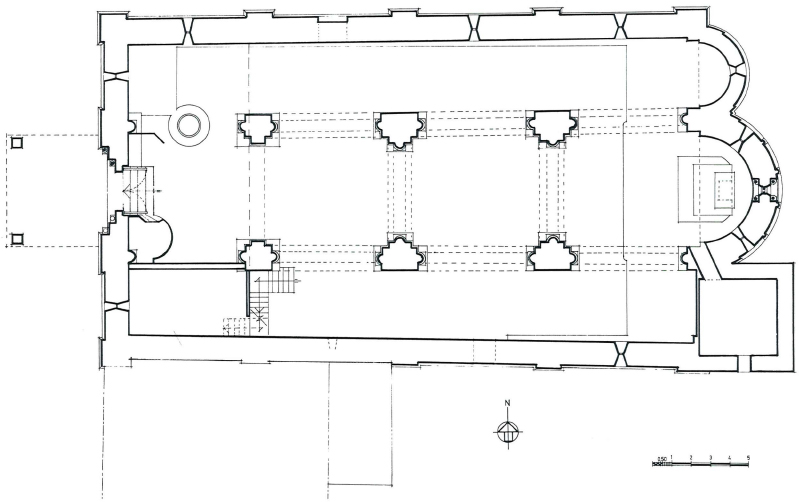
Planta, a escala 1:200, de l’església, de planta basilical amb tres naus, separades per arcs torals, capçades a llevant per tres absis semicirculars.
J. Marguí-G. Anglada
L’edifici segueix una disposició basilical de tres naus, sense transsepte, acabades amb els seus corresponents absis semicirculars. La nau central, d’unes dimensions més grosses, és coberta amb una volta de mig punt apuntada, mentre que les naus laterals es cobreixen amb sengles voltes de quart de cercle. Els pilars de suport tenen una secció en forma de T amb columnes adossades, tant a la recepció dels arcs formers com a la sustentació dels arcs torais. Aquests divideixen la nau central en quatre trams iguals, a l’últim dels quals és detectable l’absència de columnes adossades a les cares dels pilars, corresponents a la nau central.
L’absis central té tres finestres, una de central, de notable presència, de doble esqueixada, tant a l’interior com a l’exterior, i amb dues petites columnes amb capitells esculpits. A tots dos costats d’aquesta finestra i a una major altura hi ha dues finestres simples sense cap ornamentació. Als absis laterals l’única il·luminació consisteix en una finestra central a cadascun d’ells. Tres finestres de doble embocadura il·luminen la nau lateral de tramuntana, a la paret superior de la qual hi ha diversos carreus encoixinats que semblen indicar l’aprofitament de materials d’un primitiu monument romà(*). Al cantó de migjorn actualment dues de les tres finestres han restat tapades pels afegitons posteriors del costat de migjorn. Dues parts, una a cadascuna de les dues façanes de tramuntana i de migjorn, han restat tancades amb el temps.

Vista exterior de la capçalera de l’església.
A. Martí
Per a la decoració exterior de l’absis central han estat utilitzades unes arcades que són sostingudes per columnes que aguanten una cornisa amb mènsula i dents d’engranatge, anàloga a la que hi ha a la part superior de les façanes. Els absis laterals han estat decorats amb unes arcuacions seguides sota la cornisa amb dents de serra.
A la façana de ponent hi ha l’accés a l’edifici, el qual s’efectua després de franquejar una porta d’arcs llisos en gradació que aixopluguen un doble joc de columnes amb estries verticals i una arquivolta decorada amb temes florals. Actualment un petit porxo amb coberta de doble vessant serveix de protecció a l’entrada. Completen la composició de la façana les dues finestres que hi ha situades als peus de l’església, al final de les naus laterals, la rosassa que hi ha just damunt la porta i les finestres obertes al campanar, situat a l’angle sud-oest de l’edifici. El campanar, que té l’entrada a l’interior des del lateral de migjorn, fou reformat al segle XVIII i convertit en una torre hexagonal acabada en punta. Sota una de les seves finestres hi ha inscrit l’any 1792, data que correspon probablement a l’ampliació efectuada al temple en aquest moment(*).

Vista exterior del mur de tramuntana. Cal notar-hi la manera com ha estat decorat.
E. Pablo
Sant Joan les Fonts representa un dels tipus característics del segle XII. Bé que el tipus d’edificació és senzill, una basílica de tres naus, hi han estat introduïts diversos elements nous, els quals denoten una clara influència francesa, tant en la substitució de lesenes i arcuacions llombardes per columnes i capitells, com per una major profusió escultòrica, que és visible tant des de l’interior com des de l’exterior. En aquest sentit la portada mostra una clara voluntat compositiva amb la introducció de diverses arcades.
La portada de Sant Joan les Fonts es troba entre les que presenten un cert grau d’elaboració i que tingué en les portades del final del segle XII i del començament del XIII (Lleida, Agramunt, etc.) la seva més alta expressió.
L’aparell, amb la introducció de carreus de gres vermellós, sense arribar a la gran perfecció en la disposició de les filades que hi ha als absis de Sant Martí Sarroca, al campanar de Santa Maria de la Seu d’Urgell o a l’església de Santa Maria de Bell-lloc, prop de Santa Coloma de Queralt, té una gran regularitat, harmonitzant amb la mateixa expressió decorativa dels murs.
Igual com succeeix a les esglésies provençals, la diferència d’altura entre les naus es fa evident al frontispici. Aquesta diferència d’altura no permet d’obrir finestres a la petita superfície que en resulta, tal com succeeix a la propera església de Sant Pere de Besalú, amb una dimensió suficient per adoptar aquesta solució. En els models francesos que presenten una diferència d’altura similar entre les naus, la il·luminació de la nau central era resolta amb la introducció d’un trifori. Un exemple clar n’és l’església de Notre Dame de Purt, a Clarmond-Ferrand, de la primera meitat del segle XII(*).
Resta per subratllar un aspecte d’una gran importància, considerat per J. Puig i Cadafalch(*) com un dels trets definitoris dels tipus més característics de les construccions catalanes durant el segle XII: la incorporació de la columna adossada als pilars. Aquest element apareix a l’església de Santa Maria de Vilabertran (1100), adossat a les tres cares del pilar, i s’estén amb posterioritat a d’altres esglésies: Sant Joan les Fonts, Sant Esteve d’en Bas (1115), etc., Santa Maria de Solsona i més tard s’introdueix a les quatre cares dels pilars, com a Santa Maria de Besalú o Santa Maria de Gerri. També podem observar la seva utilització a les esglésies de Provença i l’Alvèrnia, des d’on es devien irradiar a Catalunya, fruit de les constants relacions que hi havia entre els monestirs francesos i els catalans. (JLAV)
Escultura
Escultura interior
L’escultura de l’interior de l’església de Sant Joan les Fonts es limita als capitells i als àbacs de la nau i de la finestra central de l’absis i a la cornisa que segueix el perímetre de l’absis lateral esquerre i que continua pel mur de tramuntana.
La finestra central de l’absis és decorada amb dues columnes coronades per sengles capitells i amb una arquivolta. Els capitells són de tipus corinti i estan ornamentats amb fulles d’acant repartides en dos registres. La part superior de les arestes dels capitells és decorada amb petites volutes. Les fulles d’acant tenen l’extrem superior arrodonit i presenten una incisió molt superficial vertical de la qual surten unes estries en diagonal també incises. L’àbac del capitell esquerre és decorat amb un tema vegetal format per una línia ondulant de la qual parteixen una sèrie de fulles molt estilitzades. L’arquivolta presenta, també, un tema ornamental de tipus vegetal compost per una tija ondulant que genera uns espais omplerts amb fulles lobulades.

Imposta ornamentada amb una sanefa situada a la darrera columna del costat de tramuntana.
A. Mazcuñan-J. Junyent
La cornisa que ressegueix el perímetre de l’absis i que continua per la paret de tramuntana de l’església presenta un motiu vegetal entrellaçat, amb els espais buits omplerts amb fulles i ocells.
Per tal de no caure en la repetició a l’hora de fer la descripció i l’anàlisi dels capitells de la nau, els hem dividits en dos grups: els capitells de tipus corinti i els capitells zoomòrfics.
No tots els capitells de tipus corinti responen a un mateix model sinó que hi ha una sèrie de diferències, degudes en gran part al grau de rusticitat i simplicitat. La majoria dels capitells d’aquest grup són decorats amb fulles d’acant repartides en dos registres. Les fulles són planes i amb l’extrem superior bé arrodonit bé cargolat cap enfora; la majoria presenten una incisió vertical que divideix la fulla en dues parts i, en algunes, d’aquestes incisions parteixen unes línies diagonals. Són del mateix tipus que els capitells de la finestra de l’absis. D’altres presenten, a l’extrem superior de la fulla, un motiu esfèric. Hi ha un petit nombre de capitells que malgrat ésser de tipus corinti com els altres presenten un grau d’ornamentació més complex. En aquests, les fulles, repartides també en dos registres, presenten una tija central que genera unes fulletes allargades i primes, ordenades simètricament a banda i banda de la tija. L’extrem superior de les fulles d’acant és cargolat cap enfora i té els cantells cisellats. En alguns dels capitells ha estat esculpida, al centre de la part superior, una màscara humana amb uns trets força grotescos.
El segon grup és format per dos capitells decorats amb una temàtica eminentment zoomòrfica. Hi ha representats grius disposats simètricament i units pels flancs. A la part central superior hi ha el cap d’un animal, suposadament un lleó, amb les faccions exageradament grotesques.
Els àbacs d’alguns capitells són decorats amb motius de caràcter vegetal o geomètric. D’altres resten llisos.
Podem constatar que el capitell corinti té una forta tradició a la comarca de la Garrotxa i a les veïnes del Gironès i de l’Alt Empordà. Així, per exemple, el tipus de capitell més senzill i rústic, del qual hi ha una mostra força àmplia a Sant Joan les Fonts, és present a Sant Esteve d’en Bas i a Santa Maria de Besalú. Del tipus més treballat i desenvolupat hi ha exemples a Sant Pere i a Santa Maria de Besalú, a Santa Maria de Lledó i a Sant Pere de Rodes (en aquest cas, del segle XI).
J. Puig i Cadafalch(*) assenyala que hi ha un grup de capitells que són una imitació del capitell corinti clàssic o de les seves variants; cita els de Sant Pere de Rodes i de Sant Pere de Besalú i parla d’una col·laboració provençal a la zona. Indica també que els caps humans a la part central superior dels capitells substitueixen la rosàcia central característica dels capitells corintis.
Pel que fa als capitells amb representació de grius i lleons cal destacar, en primer lloc, que segueixen un esquema compositiu molt freqüent a l’època romànica definit com a simetria axial. Malgrat que les figures representades no siguin les mateixes, podem establir una sèrie de paral·lels, pel que fa a l’aspecte compositiu, amb altres capitells de la regió, com ara un capitell de Sant Joan de les Abadesses, el capitell esquerre de la portada de Sant Pol de les Abadesses, un capitell d’una finestra de Sant Pere de Besalú, etc. Ja dins la Catalunya Nord, podem citar com a paral·lel un capitell de la tribuna de Serrabona, que, a més, té l’àbac decorat amb el mateix tema vegetal que ornamenta l’àbac d’un dels capitells zoomòrfics de Sant Joan les Fonts. Al marge de la regió d’influència gironina podem esmentar un capitell del claustre de Santa Maria de l’Estany, on apareixen dos lleons en disposició semblant als grius de Sant Joan les Fonts.
El griu, definit com un animal fabulós amb bec, urpes i ales d’àguila, cos de lleó i cua semblant a la d’una serp, ha estat utilitzat per la tradició cristiana com un símbol, el sentit del qual és molt ambigu. Pot ésser interpretat a la vegada com a signe diví i malèfic(*). Tanmateix, segons V. H. Debidour(*), la majoria de representacions de grius responen, fonamentalment, a criteris ornamentals. Diu aquest autor que el griu és un dels animals del bestiari medieval més inestable quant a la seva figuració, atès que a vegades es fa difícil distingir-lo del lleó alat.
Quant a l’ornamentació, cal dir que el repertori de temes utilitzat a Sant Joan les Fonts gaudeix d’una difusió molt àmplia a tot el període romànic i a tots els àmbits de les arts plàstiques. Ja hem esmentat el paral·lel de Serrabona pel que fa al motiu ornamental de l’àbac d’un dels capitells zoomòrfics de la nau; aquest motiu és el mateix o molt similar al núm. 183 dels temes classificats per E. Carbonell a l’estudi que fa de l’ornamentació a la pintura romànica catalana(*). El tema d’entrellaç esculpit a l’àbac de l’altre capitell zoomòrfic és idèntic al de l’arquivolta de la porta principal d’entrada de l’església de Sant Pere de Besalú.
A manera de conclusió podem dir que els lligams establerts amb altres conjunts escultòrics de la regió demostren el que ja ha estat dit per E. Carbonell(*): que hi ha una unitat d’estil, al marge de diferenciacions qualitatives i tècniques puntuals, entre les diverses manifestacions escultòriques de la regió —Santa Maria de Porqueres, Sant Esteve d’en Bas, Sant Joan les Fonts, Sant Pere de Galligants, Sant Joan de les Abadesses(*)—, amb unes característiques comunes amb arrel a Sant Pere de Rodes, que pot constituir l’escola local de Girona i que deu ésser la continuació d’un artautòcton que s’erigiria com una alternativa a la tradició llombarda. D’altra banda, J. Gudiol i J. A. Gaya(*) prenen en consideració la possibilitat que l’escultor arcaitzant de Sant Pol de les Abadesses hagués intervingut a Sant Joan les Fonts. Cal constatar que l’escultura de Sant Joan les Fonts és d’una qualitat força inferior a la d’alguns dels conjunts esmentats, llevat, potser, dels dos capitells de temàtica zoomòrfica, que s’allunyen de la rusticitat i arcaisme de la resta del conjunt. Aquesta diferència qualitativa fa pensar en la intervenció de més d’un escultor o en la presència d’un taller, el mestre al càrrec del qual hagués executat els dos capitells esmentats.
Pel que fa a la datació de les escultures de Sant Joan les Fonts ens remetem al que diem de la portada de la mateixa església, atès que l’afinitat d’estil amb aquella i amb els conjunts esmentats porta a pensar que foren executades en un mateix temps: entre el segon quart i mitjan segle XII. (EBC)
Escultura exterior
A l’exterior de l’edifici, adossat al mur, hi ha un bloc de pedra amb la representació esculpida d’un quadrúpede. L’estat avançat de degradació no en permet una anàlisi molt profunda. Per les característiques que presenta —potes acabades en urpes i cua llarga amb l’extrem entortolligat— és possible que es tracti d’un lleó. Les faccions de la cara són molt marcades; recorden les dels animals representats als capitells de l’interior del temple; probablement es tractaria del mateix escultor que executà aquells o d’un artista del mateix taller.
És possible que aquesta representació hagués format part, originàriament, del conjunt escultòric de la portada. La presència del lleó en aquest indret de l’edifici és força freqüent a l’època romànica; no hem d’oblidar, però, el cas de Sant Pere de Besalú, on hi ha dos lleons flanquejant una finestra. Es tracta d’un símbol ambivalent que pot ser sotmès a diverses lectures segons el context on es trobi. (EBC)
Escultura de l’absis
L’absis de l’església de Sant Joan les Fonts presenta també decoració esculpida a la finestra central i als capitells de les columnes adossades al mur de la conca absidal.
La finestra és decorada amb dues columnes a banda i banda coronades per sengles capitells, damunt els quals descansen els extrems d’una arquivolta. Són capitells de tipus corinti, amb fulles d’acant repartides en dos registres. Presenten la mateixa factura que els capitells interiors de la finestra; estan força degradats per l’erosió exterior. Els àbacs i l’arquivolta no presenten cap tipus d’ornamentació.
La conca absidal és animada amb quatre columnes semicilíndriques unides per arcs de mig punt. Els capitells que les coronen són de tipus corinti; es troben molt malmesos, fins al punt que no és possible fer-ne una anàlisi de la factura. (EBC)
Portada

Porta d’entrada a l’església, oberta a la façana de ponent.
A. Mazcuñan-J. Junyent

Planta, alçat i secció de la porta d’entrada a l’església.
A. Mazcuñan-J. Junyent
La portada de l’església de Sant Joan les Fonts, orientada a ponent, és formada per tres arcs de mig punt en gradació, llinda i timpà. La decoració es limita a una arquivolta, situada a l’arc interior, a quatre capitells, dos a cada banda de la portada, i a l’espai existent entre capitell i capitell. Si ens atenim a l’estructura que presenta podem deduir que del conjunt original hi ha una arquivolta i les dues columnes que sustentaven els capitells del costat dret de la portada. Tant el timpà com la llinda no presenta cap tipus de decoració.
L’estat de conservació de la porta és força dolent; a més de les peces que hi manquen, els capitells exteriors de les bandes dreta i esquerra manifesten un alt grau de deteriorament, fins al punt que la decoració originària resta gairebé totalment esborrada.
L’arquivolta, de secció cilíndrica, és ornamentada amb un tema geomètric format per línies entrellaçades i estriades que generen uns espais triangulars. Els espais buits són omplerts amb motius circulars i florals de dimensions molt reduïdes.
Els capitells són de tipus corinti, decorats amb fulles d’acant i volutes; són ordenades en dos registres. Les fulles, l’extrem superior de les quals es doblega cap enfora, estan formades per una tija central de la qual neixen petites fulles disposades simètricament al llarg d’aquest eix central. La decoració dels espais intermedis entre els capitells és una continuació del motiu ornamental d’aquests.
Pel que fa a la tipologia de la portada cal dir, en primer lloc, que respon al tipus de portades de les esglésies de la comarca, malgrat que, la majoria, no presenta cap mena de decoració. Els trets més característics que defineixen aquesta tipologia són la presència del timpà i llinda llisos i la gradació en arcs de mig punt. Podem esmentar com a paral·lels més pròxims la portada de Sant Joan les Fonts, la de l’església de Santa Maria de Lledó i la de Sant Joan de les Abadesses. Tant l’una com l’altra responen a les mateixes característiques definitòries que hem assenyalat, malgrat que a la de Santa Maria de Lledó s’observa un major desenvolupament ornamental.
Podem constatar també una relació amb algunes de les portades del Rosselló i del Conflent; la de Vilafranca de Conflent, per exemple, presenta les mateixes característiques tipològiques que les anteriors. P. Ponsich, a l’estudi que fa de l’evolució del portal al Rosselló(*), explica que aquest tipus de portal, que amb el temps esdevindria clàssic de l’escola rossellonesa, apareixeria al Conflent, probablement al primer terç del segle XII, i dins l’àmbit d’influència de l’abadia de Cuixà. Assenyala com a primer exemple cronològic el portal de Sant Jaume de Vilafranca de Conflent i com a antecedent la portada de Santa Maria de Vilarmilà, de la fi del segle XI.
Amb relació al tipus de decoració present a la portada de Sant Joan les Fonts i pel que fa en concret al motiu ornamental de l’arquivolta, encara que no hem trobat cap exemple on es repeteixi idènticament aquest tema d’entrellaç, sí que podem citar algunes peces on apareixen motius similars. Als exemples més amunt esmentats de Santa Maria de Lledó i Sant Joan de les Abadesses hi ha esculpit un tema d’entrellaç semblant a les arquivoltes, tot i que més complex. D’altra banda, i ja en un altre àmbit, el de la pintura sobre fusta, podem citar el frontal de Mosoll, al Museu d’Art de Catalunya, de Barcelona, i el de Lluçà al Museu Episcopal de Vic, on apareixen motius si bé no idèntics sí molt pròxims al de l’arquivolta de l’església de Sant Joan les Fonts(*).

Un detall de la porta d'entrada, amb els capitells del cantó esquerra, segons la visió de l'espectador.
A. Mazcuñan-J. Junyent

Un detall de la porta d'entrada, amb els capitells del cantó dret, segons la visió de l'espectador.
A. Mazcuñan-J. Junyent
Els capitells corintis que completen la decoració esculpida de la portada presenten les mateixes característiques ornamentals que un grup de capitells de l’interior de l’església. És un tipus que gaudeix d’una àmplia difusió en aquesta contrada i que també trobem present en altres esglésies, com són la de Santa Maria de Besalú o la de Lledó.
Si ens atenim a les dates donades per P. Ponsich de l’inici del desenvolupament de les portades rosselloneses que presenten la tipologia descrita, primer terç del segle XII, a la datació proposada per a la construcció de l’actual església romànica de Sant Joan les Fonts —entorn del 1126, any de la segona confirmació de la dependència del priorat benedictí respecte a Sant Víctor de Marsella(*)— i a la de les esglésies citades com a paral·lels —dates que oscil·len dins de la primera meitat del segle XII o entorn de mitjan d’aquest segle—, podem datar l’execució de l’escultura de la portada de Sant Joan les Fonts entre el segon quart i mitjan del segle XII. (EBC)
Pica

Pica baptismal, conservada a l’interior de l’església.
J. M. Melció
A l’església de Sant Joan les Fonts es conserva una pica baptismal de grans dimensions, formada per un gran cos semisfèric que recolza damunt una base de secció troncocònica. La superfície exterior del cos és decorada amb una sèrie de motius ornamentals i figuracions que descriurem a continuació. El perímetre inferior és resseguit per una franja prima decorada amb un motiu de soga.
Iniciarem la descripció de les representacions desenvolupades a la superfície exterior d’aquest cos amb una figura humana flanquejada per dos motius ornamentals idèntics. El personatge representat va vestit amb una túnica amb mànigues amples i cenyida a la cintura; una franja ornamental amb motius circulars voreja l’extrem inferior de les mànigues. Té les mans col·locades al davant, a l’alçada de la cintura; el cap resta totalment esborrat. Al costat dret de la figura, a la part superior, hi ha esculpides les lletres gregues alfa i omega. Els motius ornamentals que flanquegen el personatge són formats per quatre lòbuls generats per unes tiges estriades que tanquen sengles palmetes. L’escena representada a continuació, si seguim en direcció a la dreta, és composta per dos personatges. El de l’esquerra és calb i porta barba; amb la mà dreta subjecta una espasa i amb l’esquerra els cabells del personatge següent, el qual és imberbe i va vestit amb una túnica llarga que presenta a les mànigues el mateix motiu ornamental que el personatge descrit anteriorment; sembla com si amb la mà esquerra agafés quelcom circular. Seguidament hi ha representada una figura humana inserta en un arc; va vestida amb túnica i, com l’anterior personatge, té les vores de les mánigues decorades amb el mateix motiu circular. Mentre que amb la mà esquerra agafa unes claus, amb la dreta fa un gest de benedicció; no se n’ha conservat el cap. Entre aquest personatge i el següent, inscrit també dins un arc, hi ha una franja vertical estreta, decorada amb un motiu de soguejat. Aquest personatge és representat amb barba. Les mànigues de la túnica que porta presenten el mateix motiu ornamental que la dels personatges precedents. Té les mans esteses al costat del cos amb els palmells disposats frontalment. Seguidament hi ha esculpit un personatge alat flanquejat, a la part inferior, per dues aus. Porta una túnica amb els plecs formant angle, decorada a l’extrem inferior amb una franja horitzontal amb petits cercles seguits. A continuació hi ha representat un lleó que es llepa una de les potes davanteres. Entre aquesta figura i el personatge següent hi ha una franja vertical força gruixuda omplerta amb un tema vegetal format a partir d’una tija ondulant que genera unes fulles lobulades, les quals ocupen els espais buits formats per les corbes de la tija. El personatge representat més enllà és imberbe i porta una túnica sense cap mena de cenyiment; és inscrit dins un arc. Seguidament ha estat esculpit un tema vegetal compost per una tija central vertical que genera a banda i banda una sèrie de branques acabades en fulles. A continuació, ha estat representat un personatge dins un arc, del qual només es veu el rostre, barbat, i part dels braços i les mans. Aquestes estan aixecades a l’alçada del pit i amb els palmells cap enfora. Les mànigues són decorades amb el mateix motiu geomètric descrit anteriorment. Seguidament ha estat esculpit un tema vegetal format per una fulla estriada amb una tija central. El darrer personatge representat és inscrit també en un arc i va vestit amb una túnica que no presenta cap tipus d’ornamentació. No porta barba; té les mans recollides a l’alçada del pit i sembla com si hi portés alguna cosa. Entre aquest personatge i el motiu ornamental següent, que separa aquest de la figura descrita en primer lloc, hi ha inscrites les lletres MNA.

Calc dels motius que decoren la pica baptismal.
A. Mazcuñan-J. Junyent
Aquesta peça no ha estat sotmesa, encara, a un estudi analític que pugui donar resposta a la sèrie d’interrogants que planteja la iconografia aquí representada. Tot i que alguns dels personatges figurats puguin ésser identificats pels seus atributs, no tenim dades suficients per donar una lectura completa del que s’ha volgut significar. En primer lloc, la figura flanquejada pels dos motius ornamentals compostos per quatre lòbuls no presenta cap atribut que ajudi a la seva identificació, dificultat agreujada pel fet que el cap ha desaparegut. Les lletres alfa i omega condueixen a pensar en la possibilitat que es tracti de la imatge de Crist; ara bé, si és així, l’actitud del personatge no és gens característica pel que fa a les fórmules iconogràfiques que se li atribueixen. J. Camps(*) assenyala la relació entre l’actitud dels personatges d’un capitell de Santa Maria de Cervià i la de dos dels personatges aquí representats; suposem que es refereix a aquest que estem tractant i al que està situat just a l’esquerra. L’escena en què un personatge agafa amb una mà una espasa i amb l’altra els cabells d’una altra figura humana ha estat interpretada per F. Caulà(*) com la representació de la degollació dels sants innocents; tanmateix, si tenim en compte que l’església és dedicada a sant Joan Baptista, creiem que hauria d’identificar-se més aviat amb l’escena de la degollado d’aquest sant. L’única figura que no sembla que presenti cap dubte quant a la seva identificació és la del personatge que porta unes claus a la mà; aquest atribut és característic de la iconografia de sant Pere.


Detalls de la pica baptismal.
J. M. Melció
F. Caula interpreta els altres personatges com a figures orants i parla de dos homes i una dona. No hem pogut identificar entre les figures la d’una dona; ara bé, és cert que les actituds de dos dels personatges representats, els que tenen els palmells cap enfora, recorden les dels orants. En una pica conservada a l’església de Palau de Cerdanya hi ha un motiu vegetal que recorda un dels representats a la pica de Sant Joan les Fonts: la tija central, de la qual parteixen unes branques disposades simètricament a banda i banda i que tenen els extrems acabats en fulles lobulades. M. Delcor(*), que fa una lectura iconogràfica de les escenes representades al cubell de Palau, interpreta aquest motiu vegetal com una representació de l’arbre de la ciència. La figura del lleó és un símbol ambivalent, el significat darrer del qual és donat, normalment, per l’actitud que pren i pel context on es troba. En aquest cas, i atenint-nos al fet que és representat en una pica baptismal, pensem que podria ésser entès com a símbol de redempció a través del sagrament del baptisme(*). Cal citar, en darrer lloc, una pica baptismal procedent de San Vicente de la Sonsierra (Logronyo), en la qual és representada una sèrie de personatges separats per arcs, amb una actitud similar al personatge que té els braços estesos al costat del cos de la pica de Sant Joan les Fonts.
El motiu ornamental, format per una palmeta oberta en forma de ventall inscrita en un lòbul format per una línia esgrafiada, tingué una àmplia difusió al període romànic; podem citar com a paral·lel un capitell exterior de la capçalera de l’església de Sant Joan de les Abadesses, o un altre de procedència desconeguda conservat al Museu d’Art de Girona(*). El motiu format per una fulla estriada amb una tija central es repeteix en un capitell de la finestra de l’absis de l’església de Sant Salvador de Bianya. Pel que fa al tema vegetal format per una tija ondulant i fulles lobulades, és molt semblant al que es desenvolupa a l’àbac d’un dels capitells zoomòrfics de l’interior de l’església de Sant Joan les Fonts.
No sabem amb certesa a què corresponen les lletres MNA inscrites a la pica baptismal, ni podem assegurar que corresponguin a l’època d’execució de la pica, encara que, basant-nos en criteris de simetria, es correspon, a l’altre costat del tema vegetal lobulat, amb un motiu simple d’entrellaç. Suposem que F. Caula es refereix a aquestes lletres quan parla que hi ha esculpit el nom del Salvador, Emmanuel(*).
Estilísticament, cal destacar com a característiques principals una gran rusticitat i arcaisme tècnics. Les figures no segueixen un cànon de proporcionalitat sinó que l’escultor ha subratllat les parts del cos que més li han interessat en detriment de les altres. No hi ha, tampoc, una diferenciació entre els diferents personatges a partir dels trets dels rostres. El tractament dels plecs dels vestits no respon a criteris naturalistes sinó de paral·lelisme i de simetria. Creiem que l’arcaisme i la rusticitat patents en aquesta peça vénen justificats més per una data primerenca dins el període romànic, pel fet que es tracta possiblement d’un escultor local que, malgrat l’expressionisme de les figures, no ha sabut solucionar el problema d’espai que planteja una superfície circular continuada. Així, doncs, creiem que es pot atribuir a la mateixa data que la construcció de l’església actual i que l’execució de l’escultura de l’interior i de la portada de l’església, és a dir, entorn del segon quart i mitjan segle XII. (EBC)
Majestat

Un detall de la majestat procedent d’aquesta església i conservada al Museu d’Art de Girona, on és inventariada amb el núm. 12.
J. Vigué
Procedent de l’antic priorat de Sant Joan les Fonts, el Museu d’Art de Girona guarda una imatge de majestat vestida, de talla sobre fusta policromada de 108 × 99 cm. Té un buidat de túnica de 21 cm d’on pengen part de les cames i els peus, i n’ha conservat la creu original, bellament decorada, de 198 × 126 cm.
Dins el grup de majestats que són considerades com a sorgides del taller de Ripoll, és aquesta la que potser s’aparta més de l’esquema normal; l’estructura general és la mateixa, però l’execució sembla més aspra, més barroera, i no té la precisió escultòrica de la majestat Batlló. Però és, sobretot, més enigmàtica; els pòmuls sortints, la cella junta i poblada, la boca pronunciada amb grossos llavis closos, mirada vers l’infinit, sense dolor ni enuig, donen a aquesta cara tosca un posat més sorrut que sever. Tanmateix, hi ha tanta pasta i tanta pintura damunt d’aquest rostre que es fa molt difícil assegurar quina fou l’expressió que li donà el tallista.
Observem també, com a detalls que l’aparten de la generalitat de les altres, que el cabell gairebé tapa tot el front i, en caure pel clatell, s’uneix directament amb les trenes, que tenen així una continuïtat que no es veu a les altres imatges, les quals porten unes trenes que sorgeixen convencionalment. La distribució del pèl segueix l’esquema general, però els rínxols de la barba i del bigoti no obeeixen al mateix criteri. Els cabells del cap són descuidats al dors, i en general el treball és menys sensible. Però la diferència principal potser és que aquesta imatge porta un preparat per a la policromia, amb l’addició de tela i guix, com és normal en els frontals pintats, però és un detall tècnic que acostuma a mancar a les majestats.
Hem vist fotografies on aquesta imatge només té el braç dret, i Manuel Trens parla també “del braç que subsisteix” en el seu llibre editat l’any 1967. A l’exposició L’Art Romànic (Barcelona, 1961), on figurà amb el núm. 243 del catàleg, i on poguérem estudiar-la còmodament, duia tots dos braços; però el catàleg de l’exposició informava que el braç esquerre era modern. (Una foto de l’Arxiu Mas de l’any 1916, C-13728, mostra encara els braços sencers).
Joaquim de Gispert, que abans de l’any 1895 l’examinava encara al lloc d’origen, “primer altar a la dreta de l’església romànica de Sant Joan les Fonts”, la descriu “de mida regular”, i afegeix que no desdiu de les altres representacions de majestats; però interessa sobretot la descripció de la policromia: “La gonella és d’un color vermell bastant fosc, tal vegada pel transcurs del temps, i encara que en sensible estat de vellúria s’arriba a veure en ella les incrustacions o mostres d’or que l’adornaven, de molt bon estil de l’època, i la franja de la mateixa classe amb què s’acaba la faldilla, fent pujar d’aquesta manera el valor i riquesa del trajo. El cinturó és així mateix un cordó d’or que s’obre en dues llargues caigudes”. M. Trens confessa no haver vist mostres de vermell enlloc, i menys encara mostres d’or; nosaltres tampoc no en veiérem, i hem de suposar que hi havia una policromia moderna que desaparegué o que fou objecte d’un repintat més recent.
La túnica presenta un color verd fosc, que probablement no és el primitiu, i porta unes sanefes més fosques a la vora final, a les bocamànegues i a l’escotat; és pràcticament llisa, i només té, de cintura en avall, un plec a cada costat, i les mànegues tenen només marcades tres incisions; molt cenyida i estreta, porta una corretja, lligada amb doble nus de bona factura, que cau formant dues llargues tires, gairebé paral·leles.
A. K. Porter, com la majoria dels historiadors, considera aquesta imatge indiscutiblement eixida del mateix taller que les de Bellmunt (Trinitat) i Beget, i la data al primer quart del segle XII, com creiem nosaltres.
G. de Francovich, en canvi, per “la modelado magra i ja molt verídica del rostre, de les mans i dels peus”, la considera de la fi del segle XII o de principi del XIII; M. Trens també la data al segle XII; i W.W.S. Cook i J. Gudiol, tot i atribuir-li un concepte hieràtic d’inferior qualitat, n’assenyalen el parentiu amb les escultures monumentals de l’escola de Ripoll de mitjan segle XII.


Detalls del revers de la creu: a dalt, un dels animals del Tetramorf representat dins d'un cercle, en un dels extrems de la creu; a baix, element ornamental de tipus vegetal.
J. Vigué
La creu, bellament decorada, és un bon exemplar de l’art romànic; a la part de davant té pintades unes faixes llises, i al braç superior porta escrita en sentit vertical la inscripció IHS NAZARENVS RX IVDEORVM, amb caràcters de lletra molt artístics i magnífica cal·ligrafia. El dors és decorat als quatre ramatges florits, el tetramorf als quatre extrems dels braços i, l’encreuament, la representació de l’Anyell, voltat d’una inscripció amb el següent hexàmetre lleoní: FORMA DEI MAGNI || SVB IMAGINE PINGITVR AGNI.
La mida de la majestat encaixa perfectament amb la creu, i no hi ha cap motiu que demostri que no són contemporànies. (RBP)
Treballs de restauració
Aquest antic priorat benedictí fou restaurat entre els anys 1991 i 1995 a càrrec de la Generalitat de Catalunya, la Diputació de Girona, la Caixa de Barcelona i l’Ajuntament de Sant Joan les Fonts. Les obres més importants consistiren en la reconstrucció de les cobertes de forma similar a l’original i la consolidació dels murs. A l’interior de l’edifici s’enderrocà el cor, per tal de deixar a la vista els pilars i capitells que estaven dins l’extradós de les voltes, i també s’ha refet l’angle sud-oest, que estava trencat per l’accés a la rectoria. Finalment, es feren unes cates interiors per trobar la fonamentació de l’absis desaparegut. (MLIR)
Bibliografia
Bibliografia general
- Monsalvatje i Fossas: Noticias históricas, vol. IV, Olot 1892, pàgs. 50-56 i ap. IX, pàgs. 192-193; vol. X, Olot 1899, pàg. 242; vol. XI, Olot 1901, pàgs. 38, 192, 318, 322, 340-341, 348, 350, 357, 360, 361, 368, 373, 415, 431, 442 i 504; vol. XII, Olot 1902, pàgs. 36, 40, 56, 71, 83, 84, 85, 91, 94-95, 114-115, 135, 174-175, 192-193, 197, 197-198, 260-261, 296, 366, 372, 377-378, 387, 454, 461, 509, 514, 517, 520-521, 565-566; vol. XIV, Olot 1909, pàgs. 132-133 i vol. XIX, Olot 1908, pàgs. 10, 24, 26, 27, 250 i 265.
- Joaquim Botet i Sisó: Província de Gerona, dins Geografia General de Catalunya, Barcelona, s.d., pàgs. 726-727.
- Francesc Caula: Les parròquies i comuns de Santa Eulàlia de Begudà i Sant Joan les Fonts, Sant Joan les Fonts 1930, pàgs. 15-21.
- Josep Rius i Serra: Rationes decimarum Hispaniae, vol. I, Consejo Superior de Investigaciones Científicas, Barcelona 1946, pàgs. 76 i 89.
- Josep M. Pons i Guri: Nomenclátores de la diócesis gerundense en el siglo XIV, “Anales del Instituto de Estudios Gerundenses”, Girona 1964-65, pàg. 69.
- Antoni Pladevall i F. Català Roca: Els monestirs catalans, Edicions Destino, 1968, pàg. 115.
- Diversos autors: Els castells catalans, vol. III, Rafael Dalmau, Editor, Barcelona 1971, pàgs. 51, 134, 135 i 136.
- Francesc Caula i Vegas: Recull d’articles i treballs, vol. I, “Amics de Sant Joan les Fonts-Amics de Besalú”, Sant Joan les Fonts 1983, pàgs. 48-80.
- Josep Murlà i Giralt: Guia del romànic de la Garrotxa, Olot 1983, pàg. 82.
Bibliografia sobre l’església
- Josep Puig i Cadafalch, Antoni de Falguera i Sivilla i Josep Goday i Casals: L’arquitectura romànica a Catalunya, 3 vols., Institut d’Estudis Catalans, Barcelona 1909-18; Institut d’Estudis Catalans - Departament de Cultura de la Generalitat de Catalunya, Barcelona 1983 (2a. ed. facsímil).
- Eduard Carbonell i Esteller: L’art romànic a Catalunya. Segle XII, 2 vols., Edicions 62, Barcelona 1974-75.
- Eduard Junyent i Subirà: Catalunya romànica. L’arquitectura del segle XII, 2 vols., Publicacions de l’Abadia de Monserrat, Barcelona 1975-76.
- Josep Murlà i Giralt: Guia del romànic de la Garrotxa, Olot 1983.
- Núria de Dalmases i Antoni José i Pitarch: Els inicis i l’art romànic. Segles XI-XII, dins Història de l’art català, vol. I, Edicions 62, Barcelona 1986.
- John Kenneth Conant: Arquitectura carolingia y románica 800/1200, Ediciones Cátedra, Madrid 1987. (JLAV)
Bibliografia sobre l’escultura de l’absis
- Josep Puig i Cadafalch, Antoni de Falguera i Sivilla, Josep Goday i Casals: L’arquitectura romànica a Catalunya, vol. III-l, Institut d’Estudis Catalans, Barcelona 1918; Institut d’Estudis Catalans - Departament de Cultura de la Generalitat de Catalunya, Barcelona 1983 (2a. ed. facsímil).
- J. Gudiol i Ricart i J. A. Gaya Nuño: Arquitectura y escultura románicas, dins Ars Hispaniae, vol. V, Madrid 1948.
- Eduard Carbonell i Esteller: L’art romànic a Catalunya. Segle XII, vol. I, Edicions 62, Barcelona 1974. (EBC)
Bibliografia sobre la pica
- F. Caula: La parroquia y el priorato de San Juan Las Fonts. Tesoro artístico del templo actual, “La Tradició Catalana”, núm. 582, Olot 1928.
Bibliografia sobre la talla
- Joaquim Gispert i de Ferrater: Una nota d’arqueologia. La indumentària en los crucifixs, Barcelona 1895, pàg. 54.
- Manuel Trens i Ribas: Las “Majestades” catalanas y su filiación iconográfica, Barcelona 1923, pàg. 33.
- Arthur Kingsley Porter: La escultura románica en España, Barcelona 1928, vol. II, pàg. 11, fig. 65.
- Francesc Caula i Vegas: Les parròquies i comuns de Santa Eulalia de Begunyà i Sant Joan les Fonts, Sant Joan les Fonts 1930, pàg. 182 (1981. 2a. ed. facsímil).
- Geza de Francovich: II Volto Santo di Lucca, Lucca 1936.
- Joan Subías i Galter: Imágenes españolas de Cristo, Barcelona 1943, pàgs. 36 i 37, làm. II.
- Walter William Spencer Cook i Josep Gudiol i Ricart: Pintura e imaginería románicas, Madrid 1950, dins Ars Hispaniae. vol. VI, pàgs. 204 i 296 i figs. 172, 173 i 293.
- Marcel Durliat: Christs romans, Perpinyà 1956, pàg. 28, nota 35.
- L’art roman. Catalogue, Barcelona 1961, pàg. 183, núm. 243.
- Eduard Junyent i Subirà: Catalogne romane, vol. II, coll. “Zodiaque”, Yonne 1961, vol. 13, pàg. 269.
- Manuel Trens i Ribas: Les majestats catalanes, dins Monumenta Cataloniae, vol. XIII, Barcelona 1967, pàgs. 128-129 i làms. 24 i 25.
- Rafael Bastardes i Parera: Les talles romàniques del Sant Crist a Catalunya. Artestudi Edicions, col·l. Art Romànic, núm. 9, pàgs. 118-122. (RBP)