Situació

Vista de l’església de Sant Salvador de l’Avencó des del sector sud-est.
M. Anglada
La capella queda prop de la població d’Aiguafreda i a la vegada de la riera de l’Avencó, que coincideix amb el límit del terme municipal. És situada en una cota de 450 m a la costa esquerra de la vall, enmig d’edificacions disperses d’una urbanització suburbial.
Mapa: L37-14(354). Situació: 31TDG389244.
A l’extrem de migjorn de la població d’Aiguafreda hi ha el carrer de l’Avencó, que continua amb una pista que porta a la capella al cap d’un quilòmetre. Queda al costat de tramuntana separada uns 30 m del camí. En guarden la clau uns veïns que viuen uns 40 m cap a ponent. (MAB)
Història
L’Avencó és el nom d’un riu i d’una vall que fa de límit entre els municipis d’Aiguafreda i de Tagamanent. El 898 tenia el nom d’Avencó una vil·la o vilar rural sotmès a l’església de Sant Martí d’Aiguafreda o del Congost.
La capella existia l’any 1154, quan l’ecclesia Sancti Salvatori” és esmentada en una delimitació de masos situats al seu rodal. De nou és mencionada el 1272 i molt sovint en els testaments del 1309 en endavant. L’edifici ha sofert molt poques transformacions. Els visitadors canònics del 1686 i el 1701 manaren arrebossar i emblanquinar l’interior i altres disposicions que no afectaren l’estructura de l’edificació. Aiguafreda hi anava en processó els dos primers dies de lletanies i el 6 d’agost, dia de la Transfiguració, festa patronal de la capella.
Fou profanada el 1936 i de nou restaurada i oberta al culte el 1967. El seu redós s’ha omplert de cases i de xalets d’estiueig i per això sovint s’hi celebra el culte durant els mesos d’estiu. (APF)
Església

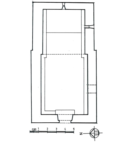
Planta de l’església de construcció tardana i absis carrat.
M. Anglada
Es tracta d’un edifici d’una nau, capçada a llevant per un absis rectangular i coberta amb voltes de canó força apuntades, sense altre element arquitectònic destacable que les dues finestres absidals i la de la façana de ponent damunt la portalada, que es va construir posteriorment. Hi ha senyals de la primitiva entrada, un arc adovellat que queda a la façana de migjorn. També sembla de l’edifici primitiu el campanar de cadireta a la façana de ponent, tot i que la coberta fou refeta. Cal remarcar el ràfec amb motllura senzilla que recorre la nau principal. La finestra de doble esqueixada de la façana de ponent queda lleugerament descentrada, com també el campanar de cadireta. Les dues finestres absidals restants, construïdes amb tres peces cada una, són idèntiques vistes des de l’exterior, tot i que una està mig tapada i l’altra és d’esqueixada simple.
L’aparell de carreus grossos de roca arenisca vermellosa fa que hom pugui situar-ne la construcció dins el segle XII. La coberta és de teula ceràmica. Els paraments interiors deixen a la vista l’aparell i, com s’ha dit, els senyals de la portalada adovellada de migjorn, que resta tapada. El campanar es manté en bon estat de conservació. (MAB)
Bibliografia
- Solà, 1932, pàgs. 73-77
- Pladevall, 1972