Situació

Aspecte que ofereix avui dia aquesta interessant esglesiola, a desgrat d’estructures adossades que n’alteren el primitiu volum.
ECSA-E. Pablo
L’església de Sant Pere Sasserra presideix un petit llogaret situat al nord-est de Biosca. És al costat de la masia anomenada el Mas.
Mapa: 34-13 (329). Situació: 31TCG675379.
Per a arribar-hi, cal prendre una pista que surt de Biosca en direcció nord i es dirigeix a Lloberola. A uns 4 km cal desviar-se a l’est fins a arribar després d’uns 3,5 km al petit nucli de Sant Pere Sasserra. (XSB)
Història
Aquesta parròquia fou una dependència del monestir de Sant Llorenç de Morunys. El primer document que es refereix a aquesta capella és del 1050, any en què consta entre els béns i drets del monestir de Sant Llorenç de Morunys l’església de Sant Pere Sasserra, el delme de la parròquia i dues parellades de terra i vinya al mateix indret. Durant tota l’edat mitjana, Sant Llorenç de Morunys va tenir, com a senyor directe, importants possessions a l’indret, com la casa Povia. La parròquia de Sant Pere Sasserra havia d’abonar vint-i-quatre sesters de blat cada any al prior de Morunys. Aquesta obligació ocasionà un procés el 1583 davant la cúria metropolitana de Tarragona.
El 1268 el prevere Guillem Sasserra signà un document atorgat per Berenguer de Camporrells, que era senyor de Vallferosa i altres llocs veïns. L’església de Sant Pere Sasserra, tot i ser originàriament parròquia, esdevingué amb el pas dels segles una sufragània de la parròquia de Vallferosa. (ABR)
Església

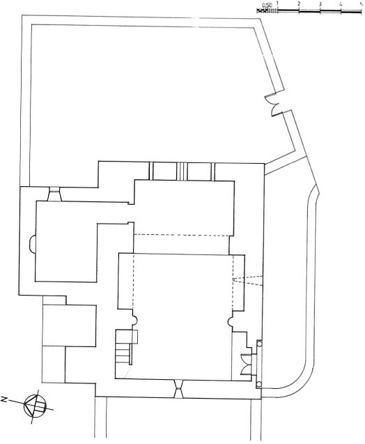
Planta de l’església, sensiblement rectangular, amb un presbiteri o santuari de la mateixa amplada que la nau.
X. Solé
Es tracta d’un edifici que hom pot datar entre els segles XII i XIII i que és compost per una sola nau, coberta amb volta de canó seguit, capçada a llevant amb un santuari de planta rectangular cobert amb volta apuntada i obert a la nau mitjançant un arc. A banda i banda de l’obertura de l’absis hi ha buidats al mur dos arcosolis. Els seus arcs de mig punt arrenquen de l’arc d’obertura de l’absis i de sengles columnes semicirculars amb capitells d’ornamentació geomètrica adossades als murs sud i nord de la nau. Una cornisa superior ressegueix els murs laterals de la nau. Al cantó nord de l’absis s’obrí una porta que dóna accés a la sagristia, tardana.
A la façana sud hi ha la porta d’entrada, composta per dues arquivoltes en degradació i un guardapols. L’arquivolta exterior descansa sobre impostes, capitells i columnes adossades. A la mateixa façana hi ha una finestra d’una sola esqueixada amb llinda monolítica d’arc de mig punt. Al mur de llevant, envoltat pel cementiri, hi ha tres finestres petites, dues simples espitlleres i una d’elles en forma de creu. Un campanar d’espadanya de tres ulls corona aquesta façana. A la façana oest, que té adossades construccions, hi ha una finestra de doble esqueixada que il·lumina el cor de l’església. Dos contraforts reforcen el mur a la façana nord. Als murs laterals de la nau, l’aparell és fet de carreus ben escairats i irregulars, disposats en filades uniformes. A la resta del temple l’aparell és més irregular i desordenat. (XSB)
Portada

Portada de l’església, a l’extrem de ponent del mur de migdia, l’element més notable de tota la construcció.
ECSA-E. Pablo
A la portada situada al mur sud de l’església de Sant Pere Sasserra hom troba una sèrie d’elements que presenten un cert interès. La portada consta, a la part exterior, d’una arquivolta-guardapols que recolza sobre l’extrem de les impostes. És de secció trapezoidal amb bisell, composta per vuit dovelles, i està decorada per una triple filera de triangles d’empremta positiva i negativa alternant, semblants als que apareixen a l’interior de l’església del Llor. D’altra banda, aquest és un tema freqüent a les comarques de la Segarra i el Solsonès (vegeu Vidal-Vilaseca, 1981, pàg. 152). A continuació, hi ha una arcada també llisa i plana, de dovelles rectangulars, que solament presenta una petita canal en la seva part inferior. Aquesta arcada descansa també únicament sobre les impostes. I en darrer lloc una arquivolta motllurada que recolza a les impostes i capitells decorats, subjectats per fusts llisos.
Aquest tipus arquitectònic de portada correspon, segons Puig i Cadafalch (1909-18, vol. III (II), pàgs. 757-758), a la segona meitat del segle XII en llocs de poca envergadura artística.
L’estat de conservació dels elements esculpits que es troben a l’arquivolta-guardapols, impostes i capitells, és deficient. Treballats en pedra calcària, presenten un estat de desgast i abandó especialment acusat en el cantó dret, on la imposta està molt malmesa i el capitell, mutilat. La part esquerra es manté en millor estat, tot i que la imposta mostra també desgast.
Les impostes presenten la mateixa decoració, una fulla de palmeta invertida, formada per cinc lòbuls, el central més allargat, amb incisions que imiten nervis. L’extrem del pecíol es bifurca i encercla la fulla amb una cinta vegetal. Presenta en relleu només el perfil del dibuix.


Impostes i capitells dels brancals esquerre i dret, respectivament, de la porta d’entrada a l’església, amb relleus esculpits de tipus vegetal força estereotipats.
ECSA-N. Baqué
Aquest motiu vegetal apareix en disposicions i treballs, llocs i temps diferents. Sovinteja arreu en decoracions pictòriques murals i de taula; n’és exemple una sanefa de les pintures murals de Sant Esteve d’Andorra. En escultura es troba en cimacis com el de Sant Serni de Tolosa de Llenguadoc, Sant Martí del Canigó, en frisos com a la seu d’Elna, en capitells com el del claustre de Santa Maria de l’Estany, i també en una imposta de la seu romànica de Barcelona conservada al Museu d’Història de la Ciutat.
Els capitells tenen cistella troncopiramidal amb astràgal rodó i àbac llis, tot treballat en un sol bloc de pedra. El de la dreta, mutilat, fa aproximadament 33,5 cm d’alt × 27 cm d’ample (part mutilada) × 16,5 cm (a l’intradós). La decoració que resta del capitell sembla que correspon a un motiu d’entrellaços vegetals emmarcat al cantó dret per una tija acabada en voluta. Podrien ser similars a uns capitells de la seu de Lleida o a un de Concabella.
El capitell esquerre fa 31,5 cm × 24,5 cm. Té també tema vegetal: unes grans fulles d’acant esquematitzades ocupen els angles; del centre de les cares surt una tija amb nervis i incisions que es bifurca emmarcant una mena d’oval. Hom veu el mateix esquema en un capitell del claustre de la catedral de Roda d’Isàvena, encara més auster, i en els de la porta de Sant Pere de Riuferrer.
Les portades i els elements esmentats amb relació a Sant Pere Sasserra ens remeten a una datació del segle XII; pensem en Sant Pere de Riuferrer, Santa Cecília de Bolvir, Santa Maria d’Agullana o Sant Esteve de Guils, de mitjan segle XII. És per això que les peces de Sant Pere també es poden atribuir al mateix moment cronològic. (NBP)
Bibliografia
Bibliografia sobre l’església
- Riu, 1981, IV, doc. 7, pàgs. 205-206; Vidal-Vilaseca, 1981, pàg. 300.
Bibliografia sobre la portada
- Puig i Cadalfalch, Falguera, Goday, 1909-18, vol. III (II), pàgs. 757-758; Vidal-Vilaseca, 1981, pàg. 152; Gavín, 1987, vol. 20, pàg. 27.