Situació

Vista de l’església des del sector sud-est, amb l’absis ornat per un fris escacat sota el qual es disposen les arcuacions cegues.
ECSA - J.A. Adell
L’església de Sant Sebastià centra el poble de Vilarrué, situat a la riba dreta de l’Isàvena, aigua amunt de les Paüls.
Mapa: 32-10 (213). Situació: 31TCH021061.
Per a anar-hi cal agafar una pista de terra que surt de les Paüls en direcció nord. Durant 1,6 km la pista remunta la ribera dreta de l’Isàvena fins a trobar les poques cases que formen el poble de Vilarrué. (MAF-XFG)
Història
L’indret de Vilarrué fou donat l’any 1004 per la comtessa Toda de Ribagorça al monestir de Sant Maria d’Ovarra. Vers mitjan segle XII, en concret l’any 1143, l’església de Vilarrué fou consagrada pel bisbe Gaufred de Roda-Barbastre. Al segle XIII, tot i que consta a l’indret alguna petita propietat del monestir d’Ovarra, les rendes parroquials pertanyien al bisbat de Lleida.
Jurisdiccionalment, a la baixa edat mitjana Vilarrué formà part de la baronia de Benavent.
Amb la creació del bisbat de Barbastre l’any 1571, l’església de Sant Sebastià fou annexada a aquesta diòcesi. (JBP)
Església

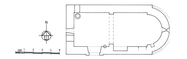
Planta de l’església.
X. Fresneda i M.À. Font
L’església de Sant Sebastià és un edifici d’una sola nau capçada a llevant per un absis semicircular, que ha sofert modificacions en diverses èpoques; les reformes més recents daten de la dècada dels vuitanta d’aquest segle, època en què es procedí a l’enderrocament de les edificacions que amagaven la capçalera, això és, la sagristia i la rectoria.
Exteriorment, la capçalera de l’església descansa sobre una plataforma que fou feta per a anivellar el terreny. La part superior de l’absis és ornamentada, sota el ràfec, per un fris escacat sota el qual es disposen un seguit d’arcuacions cegues que descansen sobre mènsules tallades en cavet. Al centre de l’hemicicle absidal s’obre una finestra de doble esqueixada i arc de mig punt.
La porta actual, d’arc escarser, data de l’any 1885 i és situada al mur de migjorn. Als murs de ponent i de tramuntana hi ha, cegades, sengles portes d’arc de mig punt adovellades força estretes. Sobre la façana de ponent s’aixeca un campanar d’espadanya de dos ulls amb coberta de dues aigües.
Els murs de l’església, a l’interior, han estat totalment arrebossats, a excepció de l’hemicicle absidal, que ha estat repicat en la darrera restauració esmentada deixant a la vista els carreus nus.
La nau és coberta amb volta de canó de perfil semicircular i és dividida en dos trams separats per un arc toral que descansa sobre sengles pilars adossats als murs. La primitiva volta de quart d’esfera de la conca absidal ha desaparegut, i ha estat substituïda per una de perfil semicircular que continua, sense interrupció, la volta de canó de la nau. En el sector oest resten els vestigis del cor que s’avançava fins a l’arc toral; sota l’escala d’aquest cor hi ha una pica baptismal amb una senzilla decoració.
Exteriorment, al mur de migjorn encara es pot veure una porta tapiada que és l’últim testimoni que ha restat de la sagristia, enderrocada, com ja s’ha dit, durant les darreres reformes practicades a l’església.
Per les seves característiques arquitectòniques i tipològiques, l’església de Sant Sebastià de Vilarrué pot ser datada com una construcció de mitjan segle XII. (MAF-XFG)
Bibliografia
- Martín Duque, 1965, docs. 20 i 36
- Iglesias, 1985-88, vol. I/3, pàgs. 200-203