Situació

Església parroquial de la població situada a la seva part alta.
ECSA - F. Junyent i A. Mazcuñán
L’església, juntament amb el cementiri, s’alça en un pendent de la muntanya sobre el poble de Montanissell, que s’agrupa en un lloc elevat (1 134 m), al peu dels relleus calcaris de la serra de Sant Joan.
Mapa: 34-11(253). Situació: 31TCG555735.
L’itinerari per a arribar a l’església és el mateix que condueix a l’antic poble de Montanissell. Tenen la clau a ca la Lola, casa situada al mateix poble de Montanissell. (FJM-AMB)
Història
El lloc de Montangoncello és un dels indrets permutats l’any 988 pel comte Borrell, la seva muller i el seu fill, amb el bisbe Sal.la i els canonges de Santa Maria de la Seu, en canvi de certes esglésies situades al Berguedà i al Ripollès. L’any 996 és documentat el castell de Montanissell, on la mitra també hi tenia propietats. En la butlla del papa Silvestre II, expedida el 1001 a petició del bisbe Sal·la, es confirma la propietat de Santa Maria de la Seu sobre la vila de Montanicello, confirmació que es repetirà en la butlla de Benet VIII del 1012. En el seu testament, datat l’any 1003 (o 1005), el bisbe Sal·la deixà a Santa Maria de la Seu el blat i la dècima que rebia d’aquest lloc.
Montanissell és esmentat de nou en un document del 1036, com a límit, per llevant, de Sallent; i en una donació del 1110, com a límit, pel N, de Nargó.
Fins fa poc s’havia identificat el topònim de Montanione amb el terme de Montanissell, vinculant-lo amb Arnau Mir de Tost. Alguns estudis recents, però, desestimen aquesta identificació i vinculen Montanione amb el terme de la Guàrdia d’Ares.
L’any 1253 el comte de Foix i vescomte de Castellbò comprà els drets que C. de Sallent tenia sobre el castell i lloc de Montanissell, i l’integrà al vescomtat. En el Spill… d’aquest, del 1519, Montanissell, juntament amb Sallent, formaven una batllia del quarter d’Organyà, que incloïa a més els llocs de Galleuda, de Fenollet, de Carreu de Gavarra, de Centinyà i el mas de la Pera. No s’esmenta el lloc de Cuvilare que en la documentació dels segles X i XI apareix vinculat a Montanissell. Actualment el terme de Montanissell comprèn, a més, l’antic poble de Sallent d’Organyà, Valldarques, Pera-rua, i les caseries dels Prats i Estremós i l’antic terme de Fenollet.
En un document datat entre el 1040 i el 1060, apareixen esmentats els altars de Sant Climent i Sant Joan a la vall de Nargó. El primer es correspon a l’església de Coll de Nargó, però quant al segon, hi ha la possibilitat, no molt fonamentada, que fes referència a Sant Joan de Montanissell.
En el llibre de la dècima de la diòcesi d’Urgell del 1391, el capellà de Montainicell consta dins del deganat d’Urgellet. El 1758 tenia com a sufragània l’església de Sant Andreu de Sallent. Actualment és supeditada a la parròquia d’Organyà. (MLIC)
Església

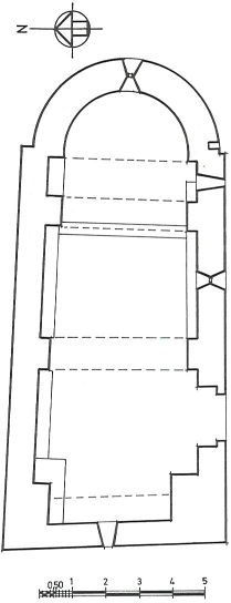
Planta d’aquest edifici, amb la nau sensiblement trapezial.
F. Junyent i A. Mazcuñán
Edifici, simple i humil, compost d’una única nau de murs lleugerament convergents, amb l’additament d’un absis semicircular obert al costat de llevant, el qual s’uneix directament a la nau, sense que hi hagi cap plec de reducció entre tots dos elements arquitectònics, diferenciats només per les mides de la nau, lleugerament més ampla que l’absis.
La nau és coberta amb una volta apuntada, reforçada amb arcs torals que recolzen en uns ressalts encastats als mur perimetrals; l’absis, atès el seu perímetre semicircular, accepta una volta d’un quart d’esfera.
L’església és il·luminada per quatre finestres, de les quals només dues (la del centre de l’absis i la del mur sud) semblen originals. Aquestes, d’idèntiques característiques, s’obren amb doble esqueixada i són rematades amb arcs de mig punt, fets amb dovelles de pedra tosca. Les dues restants, refetes, són espitllerades i s’obren al mur de ponent i a l’inici del mur sud, a frec de l’absis.
La porta, rematada amb un simple arc de mig punt adovellat, fet, com els arcs de les finestres, amb pedra tosca, dóna entrada a la capella al capdavall del mur sud.
El mur de ponent és coronat amb un campanaret d’espadanya d’una sola obertura, refet posteriorment.
La nuesa dels paraments només és trencada per un fris continu d’arcuacions sobre petites mènsules (algunes s’han desprès del mur), que circueix la part superior de l’absis, sota el ràfec de la teulada. L’aparell ha estat fet amb blocs de pedra, de mides relativament mitjanes, els quals només han estat escantonats, bé que els de pedra tosca, que hom hi ha introduït, són més ben carejats. Aquests, a més de participar en la composició dels arcs, també s’insereixen als murs de la nau i especialment a l’absis, on les darreres filades són fetes de pedra tosca, present també en la totalitat de les voltes.
L’edifici és reforçat amb un contrafort per a salvar la integritat de la construcció que, en un moment donat, es devia malmetre poc o molt, com semblen demostrar els murs de tramuntana i de ponent, reestructurats parcialment.
A desgrat de la decoració llombarda persistent a la capçalera, probablement aquest edifici, si valorem tot el conjunt, és una obra que es pot incloure dins el segle XII, encara més si la volta de la nau n’és solidària.
Recentment hom hi ha iniciat restauracions, consistents a fer una nova teulada de llosetes de pissarra i a reconstruir part de la volta de l’absis.
L’edifici és ben conservat, i més encara després d’haver estat restaurat. (FJM-AMB)
Bibliografia
- ACU. Llibre de Visites, 1758, núm. 111, f. 18-20; Miret I Sans, 1915-16, doc. 44; Vidal-Vilaseca, 1977, pàgs. 82-83; Bertran, 1979, vol. II, pàg. 282; Baraut, 1980, vol. III, doc. 214, pàg. 45, doc. 246, pàgs. 78-79, doc. 271, pàgs. 100-101, doc. 288, pàgs. 120-121; Buron, 1980, pàg. 75; Baraut, 1981, vol. IV, doc. 324, pàgs. 38-40; Baraut, 1982, doc. 490, pàg. 28; Tragó, 1982, pàgs. XIII i 34-37; Gran geografia comarcal de Catalunya, 1984, vol. 16, pàg. 136; Baraut, 1988-89, vol. IX, doc. 1 255, pàgs. 86-87.