Situació

Vista des del costat sudo-est de l’església, amb el mur ponentí coronat per un petit campanar d’espadanya.
ECSA – J.A. Adell
L’església de Sant Martí centra el petit nucli urbà de Biscarbó, inclòs a l’antic terme municipial de Castellàs. Ha estat tradicionalment vinculat al Pallars Sobirà, però la seva situació geogràfica, a la capçalera del riu de Solans, el fa pertànyer plenament a l’Alt Urgell, a l’àrea de les Valls d’Aguilar.
Mapa: 34–10(215). Situació: 31TCG543901.
Per anar-hi cal prendre un camí que surt, en direcció sud, del cim mateix del port del Cantó, entre Adrall i Sort, i porta a Castellàs, passant per Biscarbó, on es junta amb un altre camí que ve des de Guils del Cantó, per Solans i Vila-rubla. (JAA)
Història
Els anys 1024 i 1045, en sengles donacions de la vila de Llacunes o de terres situades en aquesta, s’esmenta, com a límit, el coll de Biscarboni o de Bischarbono. L’any 1071, en la publicació sacramental del testament de Ramon, aquest deixà el lloc de Bescarbon a la seva muller i als seus fills Gerbert, Guillem i Tedball, mentre que el seu fill Pere era objecte d’altres llegats.
L’any 1081 els fills Gerbert Ramon i Guillem Ramon feien conjuntament testament en favor de la seva mare i del seu germà Tedball Ramon. L’any 1096, Gerbert, possiblement el mateix que feia testament l’any 1081, en feia un de nou, i entre altres deixes llegava dècimes i terres que tenia a la parròquia de Sant Martí, que eren tras castello, parròquia que podria correspondre a Sant Martí de Biscarbó. L’any 1139, Arnau Guillem de Cuberes i la seva muller Dolça donaven al monestir de Gerri de la Sal un alou situat “in kastro de Vescarbo”, alou confirmat com a possessió del cenobi en la butlla del papa Alexandre III de 1164.
Al final del segle XV i l’inici del XVI en el Spill… del vescomtat de Castellbò, consta com el lloc formava part de la batllia de Castellàs, del quarter de Castellbò, i que la carlania era de Gabriel Caminal d’Organyà, com a successor de Pere de Noves de Castellbò.
En la visita pastoral del 1575, el visitador manà obrir una espitllera que donés claror a l’altar; mentre que en la visita del 1758 es fa constar que Biscarbó “és del priorat de Malta. No ha estat visitada pel bisbat”. L’església de Sant Martí, tradicionalment sufragània de la parroquial de Castellàs, ha estat restaurada recentment i oberta al culte. (MLIC)
Església

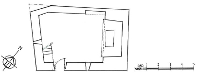
Planta de l’església, d’extrema simplicitat, però de detalls interessants sobretot a les finestres.
J.A. Adell
L’església de Sant Martí de Biscarbó és un edifici estrany, que per les seves proporcions generals no s’avé amb les formes més comunes d’església medieval, com també és molt singular la seva tipologia. Aquesta s’avé, però, amb les esglésies de Sant Serni de Vila-rubla, de Sant Quiri de Berén, Sant Lluc d’Anyús o Santa Coloma d’Argestues, edificis que, en conjunt, constitueixen una fórmula tipològica molt singular i pròpia, en tot cas, de la regió de l’Alt Urgell, i encara concentrada en l’entorn proper de la vall del riu de Castellàs. Els clars elements medievals de Sant Serni de Vila-rubla o Santa Coloma d’Argestues són elements que donen peu al caràcter medieval del grup, que per la simplicitat arquitectònica resulta de datació molt dubtosa, tot i que la hipòtesi que pertanyi als segles X i XI sembla la més raonable.
Dins aquest grup, l’església de Sant Martí de Biscarbó és l’edifici que, per les seves proporcions, s’allunya més dels cànons que inspiren gairebé tots els edificis medievals, però, en canvi, presenta elements —com la porta i la finestra de doble esqueixada, de la façana sud— de clara filiació medieval, però que no podem descartar que siguin reaprofitats en un procés de reconstrucció d’un hipotètic edifici original, com també semblen reaprofitats dos carreus amb incisions i un altre amb un gravat d’una creu encerclada, que es troben en les cantonades del mur nord de l’edifici.
El temple consta d’una nau rectangular, però que és gairebé quadrada, l’angle nord-oest de la qual fou escapçat; a llevant té un absis rectangular, més ample que fondo, (com a Sant Quiri de Berén o Sant Lluc d’Anyús, i a l’inrevés del que és comú en edificis alt-medievals) i més estret que la nau, cobert amb una volta de canó, de perfil semicircular rebaixat (d’alçada inferior al radi) que arrenca de dues banquetes longitudinals, que formen un repeu. La diferència d’amplades entre la nau i l’absis s’aconsegueix mitjançant l’engruiximent dels murs en el sector absidal, que, exteriorment, no es diferencia del cos de la nau, amb el qual forma un únic volum construït.

Interior d’aquesta singular església, que ha originat una teoria que no compartim, d’un estil romànic característic d’aquestes valls.
ECSA – J.A. Adell
La porta, d’arc adovellat, es troba a la façana sud, prop de l’angle sud-oest, i sobre d’ella hi ha una finestra de doble esqueixada. A la mateixa façana sud hi ha una finestra d’una sola esqueixada, refeta, i en el mur de ponent, coronat per un senzill campanar d’espadanya d’un sol ull, hi ha una altra finestra d’una sola esqueixada. L’interior és totalment arrebossat i emblanquinat, com a conseqüència de la recent restauració, i l’aparell constructiu només és visible a l’exterior, on es veuen els paraments construïts amb un reble molt irregular i desordenat, amb interposició d’abundants peces de pedra tosca, que formen la porta, i la llinda retallada en arc. Aquests elements, juntament amb la finestra de doble esqueixada, i la presència de peces gravades, ja esmentades, resulten un conjunt constructiu molt impersonal, que és difícil de classificar, com el conjunt de l’edifici. (JAA)
La singularitat de l’església de Biscarbó ja fou posada en relleu en el llibre El romànic de l’Alt Urgell dels Srs. Vidal-Vilaseca, obra sense data d’aparició, bé que va aparèixer entorn l’any 1977. Vidal-Vilaseca, que es basen en l’anàlisi d’aquesta petita església, defineixen un art romànic singular i autòcton, anterior segons ells al moviment romànic descrit per Puig i Cadafalch, com a primer romànic o romànic de característiques llombardes, que estudien en el capítol segon del seu llibre sota el títol d’El romànic de Biscarbó o romànic d’absis quadrat. Per a la cronologia de l’edifici es basen en l’acta de consagració de la catedral d’Urgell, que aquí consideren encara del 839, tot i que en treballs seus posteriors admeten que és del 819, la data que consta en realitat en aquest polèmic document; segons ells, a la comarca de l’Alt Urgell hi ha esmentades en l’acta 38 esglésies que mantenen encara l’absis quadrat.
Ni la direcció ni els redactors d’aquesta obra admeten o comparteixen aquests criteris, sobretot en veure que els autors presenten com a absis quadrats del tipus de Biscarbó presbiteris i capelles laterals rectangulars de data molt posterior als segles IX i X, i fins sovint posteriors a l’època romànica.
Fem aquest aclariment perquè el lector no cregui que desconeixem o deixem d’esmentar per cap raó, fora de les purament acadèmiques, el treball dels Srs. Vidal-Vilaseca, del qual es fa un petit comentari al final de la bibliografia del marc històric de la comarca. (APF)
Bibliografia
- ACU. Llibre de Visites, 1575, núm. 32, fol. 21; ACU. Llibre de Visites, 1758, núm. 111, fols. 230–233; B, 1981, vol. IV, doc. 392, pàgs. 100-101; Baraut, 1982, vol. V, doc. 585, pàgs. 113–114; Tragó, 1982, pàgs. 22–24; Baraut, 1983, vol. VI, doc. 838, pàgs. 194–195.